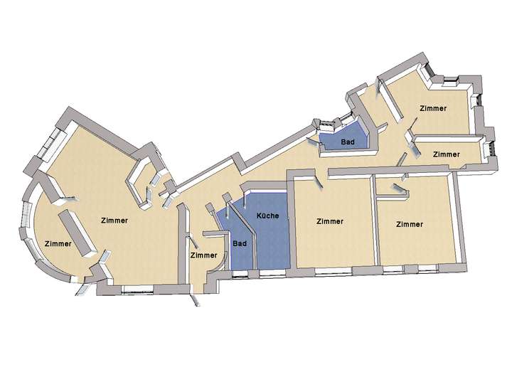
Diese 2022 vollständig sanierte Wohnung präsentiert sich mit einer komfortablen und familienfreundlichen Zimmerstruktur. Circa 50 m2 großzügig ist der lichtdurchflutete Wohn- und Essbereich. Daneben stehen eine sehenswerte Einbauküche, drei geräumige Schlafzimmer, drei kleinere Zimmer, zwei Bäder, ein Flur und zwei Windfänge zur Verfügung. Sie ermöglichen einen stufenlosen Zugang
zum herrlichen Garten für die Gemeinschaftsnutzung.
Ausgangssituation waren zwei in etwa gleich große Wohnungen mit eigenen Grundbuchblättern. Eine bauliche Trennung kann wieder-hergestellt werden. In dem beeindruckenden Bauwerk sind in den vergangenen Jahren größere Instandhaltungsarbeiten durchgeführt worden, wie z.B. eine Trockenlegung und 2023 der Einbau einer effizienten Gas-Kaskadenheizung. Unter den ca. 2,50 Meter hohen Zimmerdecken – zum Teil mit Originalstuck – brilliert ein sehr angenehmes und stilvolles Ambiente. Vorhanden sind charaktervolle Altbautüren mit antiken Messingbeschlägen, Holzdoppelkastenfenster im Wohnzimmer sowie Holzfenster mit Doppelisolierung im Nebenzimmer. In den Kinderzimmern gibt es Kunststofffenster. Charaktervoll sind die neuen Landhausdielen aus Eiche, die nach einer Bodensanierung mit neuem Estrich verlegt wurden. In einem der Schlafzimmer liegen spanische Terrakottafliesen. Das moderne tagesbelichtete Duschbad ist mit Fliesen in Holzoptik ausgestattet. Auch das größere Badezimmer ist tagesbelichtet und ästhetisch ausgestattet, u.a. mit einer Wanne. Sehr ansprechend ist die hochwertige Einbauküche von Häcker im Landhausstil, die weiße Metrofliesen, ein Spülbecken von Villeroy & Boch sowie Geräte von Bosch bietet. Dazu gehören u.a. eine Kühl-/Gefrierkombination, ein Kombibackofen, eine Mikrowelle und eine Spülmaschine.
Dieser sehr sympathischen Wohnung ist ein Kellerraum zugeordnet. Ein Fahrradabstellraum ist auch vorhanden. Haustiere sind erlaubt. Erstklassig ausgebaut und exquisit ausgestattet ist diese generöse Wohnung ein ideales Refugium für eine vierköpfige Familie. Auf der Suche nach einer barrierefreien Wohnung in einer der besten Lagen Berlins sollte diese sehr charmante Immobilie auf der Besichtigungsliste an erster Stelle stehen.
IMMOBERLIN.DE – Toplage! Sehr charmante Altbauwohnung mit stilvollem Ambiente
14129 Berlin
Die vollständige Adresse der Immobilie erhalten Sie vom Anbieter.
Auf Karte anzeigen
Die vollständige Adresse der Immobilie erhalten Sie vom Anbieter.
Finanzierungszertifikat
In nur zwei Minuten zu Ihrem persönlichen Finanzierungszertifkat.
Infos
| Wohnfläche ca. | 187 m2 |
|---|---|
| Zimmer | 6 |
Kosten
| Kaufpreis |
949.000 € |
|---|---|
| Provision |
3,57 % inklusive der gesetzlichen Mehrwertsteuer |
Finanzierungsrechner:
Kaufpreis:
600.000 €
Eigenkapital:
600.000 €
Monatliche Rate
0 €
Effektiver Jahreszins
0 %
Sollzinsbindung
10 Jahre
Bausubstanz & Energieausweis
| Heizungsart | Öl-Heizung |
|---|---|
| Wesentliche Energieträger | Öl |
| Energieausweis | liegt vor |
| Energieausweistyp | Verbrauchsausweis |
| Energieverbrauchskennwert | 143,3 kWh/(m²*a) |
| Energieeffizienzklasse | E |
143,3
kWh/(m²*a)
Energieeffizienzklasse E
- A+
- A
- B
- C
- D
- E
- F
- G
- H
- 0
- 25
- 50
- 75
- 100
- 125
- 150
- 175
- 200
- 225
- >250
Beschreibung des Objekts
Sonstige Angaben
Falls Sie IMMOBERLINER*IN werden wollen, bewerben Sie sich bitte jetzt:
https://www.immoberlin.de/immoberliner-werden/
Zahlreiche weitere Immobilienangebote finden Sie bei uns:
https://www.immoberlin.de/home
Folgen Sie uns auch auf Instagram:
https://www.instagram.com/immoberlin.de/
Adresse
14129 Berlin
Interessante Orte
Preis- und Lageinformationen
Preistrend für Bestandsimmobilien in Nikolassee (Zehlendorf)