Außergewöhnliche 3-Zimmer-Eigentumswohnung mit eigenem Eingang und zwei Stellplätzen – seltene Gelegenheit in Frankfurt-Bockenheim
Diese Eigentumswohnung überzeugt bereits auf den ersten Blick durch ihre besondere Struktur und Eigenständigkeit. Mit separatem Eingang und eigener Hausnummer vermittelt sie das Gefühl eines kleinen Stadthauses innerhalb einer gepflegten Wohnanlage – ein Wohnkonzept, das in dieser Form nur selten angeboten wird.
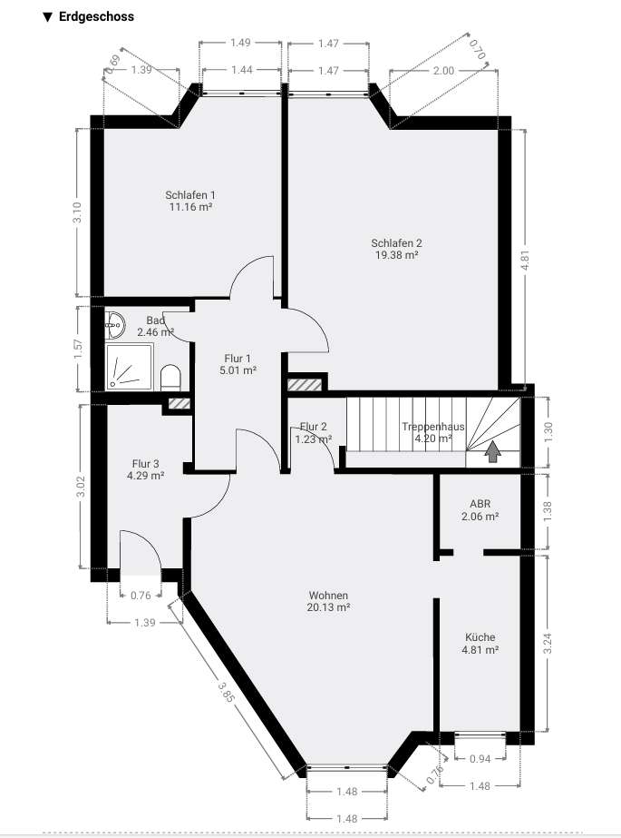
Die Wohnung liegt im Hochparterre und bietet drei gut geschnittene Zimmer, eine separate Küche sowie ein stimmiges Raumgefühl. Die Wohnräume sind mit Parkettboden ausgestattet und wirken hell, ruhig und wertig. Durch eine mögliche Öffnung zwischen Küche und Wohnzimmer lässt sich bei Bedarf ein moderner, offener Wohn- und Essbereich realisieren.
Ein weiteres Highlight ist der direkt aus der Wohnung erreichbare, großzügig ausgebaute Souterrainbereich. Dieser eröffnet vielseitige Nutzungsmöglichkeiten – ob als Homeoffice, Gäste- oder Hobbybereich, privater Fitnessraum oder persönlicher Rückzugsort. Ein zweites Badezimmer mit Dusche auf dieser Ebene unterstreicht den hohen Wohnkomfort und erweitert die Nutzungsmöglichkeiten erheblich.
Ergänzt wird das Raumangebot durch einen eigenen Keller- bzw. Hobbyraum sowie einen zusätzlichen separaten Abstellraum mit viel Stauraum.
Die Wohnung präsentiert sich bereits geräumt und leerstehend und steht einem sofortigen Bezug oder einer kurzfristigen Neuvermietung nichts im Wege.
Ein echtes Alleinstellungsmerkmal dieser Immobilie sind die zwei der Wohnung fest zugeordneten Stellplätze: ein Außenstellplatz direkt vor der Haustür sowie ein Tiefgaragenstellplatz. In dieser Wohngegend stellt diese Kombination einen außergewöhnlichen Mehrwert dar und bietet im Alltag wie auch langfristig einen klaren Vorteil. Der Kaufpreis bezieht sich auf die Wohnung inklusive beider Stellplätze.
Die gesamte Liegenschaft ist Teil einer gepflegten Wohnungseigentümergemeinschaft, die sich aus insgesamt drei Gebäuden zusammensetzt. Das im Jahr 1984 errichtete Ensemble befindet sich in einem ordentlichen und nachhaltigen Zustand; die Fassade ist bereits gedämmt. Den Bewohnern steht zudem ein gemeinschaftlich nutzbarer Garten zur Verfügung, der zusätzlichen Raum zur Erholung im Freien bietet.
Abgerundet wird dieses attraktive Angebot durch die herausragende Lage:
Die Wohnung befindet sich in absoluter Toplage von Frankfurt-Bockenheim, nur wenige Schritte von der beliebten Leipziger Straße entfernt. Zahlreiche Einkaufsmöglichkeiten, Cafés, Restaurants sowie eine hervorragende Anbindung an den öffentlichen Nahverkehr sind fußläufig in kürzester Zeit erreichbar. Gleichzeitig bleibt das Wohnumfeld angenehm ruhig und gewachsen.
Diese Immobilie vereint Eigenständigkeit, Flexibilität, Komfort und eine der gefragtesten Wohnlagen Frankfurts – eine seltene Gelegenheit für Käufer mit Anspruch.
*Toplage Frankfurt* Wohnung mit eigenem Eingang, zwei Stellplätzen & Stadthaus-Charakter
60486 Frankfurt am Main
Die vollständige Adresse der Immobilie erhalten Sie vom Anbieter.
Auf Karte anzeigen
Die vollständige Adresse der Immobilie erhalten Sie vom Anbieter.
Finanzierungszertifikat
In nur zwei Minuten zu Ihrem persönlichen Finanzierungszertifkat.
Infos
| Wohnungskategorie | Hochparterre |
|---|---|
| Wohnfläche ca. | 74 m2 |
| Bezugsfrei ab | Sofort |
| Zimmer | 3 |
| Schlafzimmer | 2 |
| Badezimmer | 1 |
| Garage/Stellplatz | Tiefgarage |
| Anzahl Garage/Stellplatz | 2 |
Kosten
| Kaufpreis |
390.000 € |
|---|---|
| Hausgeld |
314 € |
| Provision |
3,05 % inkl. MwSt. |
Finanzierungsrechner:
Kaufpreis:
600.000 €
Eigenkapital:
600.000 €
Monatliche Rate
0 €
Effektiver Jahreszins
0 %
Sollzinsbindung
10 Jahre
Bausubstanz & Energieausweis
| Baujahr | 1984 |
|---|---|
| Objektzustand | Gepflegt |
| Heizungsart | Zentralheizung |
| Wesentliche Energieträger | Gas |
| Energieausweis | liegt vor |
| Energieausweistyp | Bedarfsausweis |
| Energieverbrauchskennwert | 143,0 kWh/(m²*a) |
| Energieeffizienzklasse | E |
143,0
kWh/(m²*a)
Energieeffizienzklasse E
- A+
- A
- B
- C
- D
- E
- F
- G
- H
- 0
- 25
- 50
- 75
- 100
- 125
- 150
- 175
- 200
- 225
- >250
Beschreibung des Objekts
Ausstattung
Außenstellplatz
Tiefgaragenstellplatz
Parkett
Hobbyraum/zusätzlicher Raum im Souterrain
Lage
Die Wohnung befindet sich im beliebten Frankfurter Stadtteil Bockenheim, nur wenige Schritte von der Leipziger Straße entfernt. Die Leipziger Straße gilt als eine der lebendigsten Einkaufsstraßen der Stadt und bietet eine große Auswahl an Geschäften des täglichen Bedarfs, Supermärkten, Restaurants, Cafés sowie kleinen Boutiquen. Auch Banken, Apotheken und Ärzte sind in unmittelbarer Nähe vorhanden.
Die Anbindung an den öffentlichen Nahverkehr ist hervorragend: Die U-Bahn-Station „Leipziger Straße“ sowie mehrere Bus- und Straßenbahnlinien sind fußläufig in kürzester Zeit erreichbar. Der Frankfurter Westbahnhof liegt ebenfalls in der Nähe, sodass sowohl das Stadtzentrum als auch andere Stadtteile und das Umland schnell erreichbar sind.
Bockenheim selbst verbindet urbanes Leben mit einem charmanten, gewachsenen Stadtbild. Der Stadtteil ist geprägt von Altbauten, kleineren Wohnanlagen und grünen Plätzen. In unmittelbarer Umgebung laden zahlreiche Cafés und Restaurants zum Verweilen ein. Durch die Nähe zur Goethe-Universität, zur Messe Frankfurt und zur Innenstadt ist die Lage sowohl für Eigennutzer als auch für Kapitalanleger attraktiv.
Erholungs- und Freizeitmöglichkeiten sind ebenfalls gegeben: Der nahegelegene Grüneburgpark sowie der Palmengarten bieten Rückzugsmöglichkeiten ins Grüne. Sport- und Kultureinrichtungen sind bequem erreichbar und unterstreichen die hohe Lebensqualität des Standorts.
Sonstige Angaben
Auf Anfrage sende ich Ihnen gerne das Exposé sowie alle relevanten Unterlagen zu. Bitte teilen Sie mir Ihren vollständigen Namen und Ihre Telefonnummer mit.
Besichtigungstermine können nach vorheriger Absprache stattfinden. Bitte teilen Sie uns hierfür Ihren vollständigen Namen sowie Ihre Telefonnummer mit.
Für Rückfragen stehe ich Ihnen selbstverständlich auch telefonisch gerne zur Verfügung.
Hinweis: Sämtliche Angaben und Informationen stammen vom Eigentümer. Für deren Richtigkeit und Vollständigkeit übernehmen wir keine Haftung.
Geldwäschegesetz (GwG):
Als Immobilienmaklerunternehmen ist Ariana Real Estate gemäß § 2 Abs. 1 Nr. 14 sowie § 11 Abs. 1 und 2 GwG verpflichtet, bei der Begründung einer Geschäftsbeziehung die Identität des Vertragspartners festzustellen und zu überprüfen – spätestens jedoch, sobald ein ernsthaftes Interesse an dem Abschluss eines Immobilienkaufvertrags besteht.
Hierzu ist es erforderlich, bei natürlichen Personen die relevanten Daten des Personalausweises zu erfassen – in der Regel durch eine Kopie. Bei juristischen Personen benötigen wir eine Kopie des Handelsregisterauszugs, aus dem der wirtschaftlich Berechtigte hervorgeht.
Das Geldwäschegesetz verpflichtet den Makler zur Aufbewahrung dieser Unterlagen für die Dauer von fünf Jahren.
Grundriss
EG Grundriss
>
>
KG Grundriss
>
>
Adresse
60486 Frankfurt am Main
Interessante Orte
Preis- und Lageinformationen
Preistrend für Bestandsimmobilien in Bockenheim