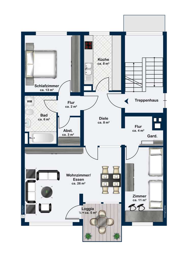
Diese großzügig geschnittene Hochparterre-Wohnung befindet sich in einem Mehrfamilienhaus aus dem Baujahr 1975 und bietet Ihnen auf ca. 81,25 m² Wohnfläche viel Raum zur individuellen Entfaltung. Die Immobilie verfügt über drei Zimmer und eignet sich ideal für Paare und kleine Familien.
Die Wohnung empfängt Sie mit einem einladenden Flurbereich, von dem aus sämtliche Wohnräume zugänglich sind. Das großzügige Wohnzimmer bietet ausreichend Stellfläche sowie den Zugang zu einem Balkon. Zwei weitere Zimmer können flexibel als Schlaf-, Kinder-, Gäste- oder Arbeitszimmer genutzt werden. Die Küche, ein Badezimmer mit Badewanne sowie ein Abstellraum vervollständigen das Raumangebot.
Wir möchten darauf hinweisen, dass sich die Wohnung in einem renovierungsbedürftigen Zustand befindet. So haben Sie die Möglichkeit, die Wohnung nach Ihren Vorstellungen zu gestalten und der Immobilie eine persönliche Note zu verleihen.
Ein besonderes Merkmal dieser Immobilie ist der vorhandene Treppenlift, der einen komfortablen und barrierearmen Zugang zum Hochparterre gewährleistet. Dies macht die Immobilie auch für Menschen mit eingeschränkter Mobilität zugänglich und erhöht den Wohnkomfort spürbar.
Zur Wohnung gehören zudem ein Geräteraum direkt vor dem Haus, in dem auch ein Rollstuhl untergebracht werden kann, sowie ein geräumiger Kellerraum. Ausreichend Parkmöglichkeiten stehen direkt vor der Tür für die Bewohner zur Verfügung.
Helle 3-Zimmer-Wohnung im Hochparterre mit viel Potential und Treppenlift in beliebter Wohnlage
38116 Braunschweig
Die vollständige Adresse der Immobilie erhalten Sie vom Anbieter.
Auf Karte anzeigen
Die vollständige Adresse der Immobilie erhalten Sie vom Anbieter.
Finanzierungszertifikat
In nur zwei Minuten zu Ihrem persönlichen Finanzierungszertifkat.
Infos
| Wohnungskategorie | Erdgeschosswohnung |
|---|---|
| Wohnfläche ca. | 81 m2 |
| Zimmer | 3 |
Kosten
| Kaufpreis |
189.000 € |
|---|---|
| Hausgeld |
324 € |
| Provision |
Käuferprovision beträgt 3,57 % (inkl. MwSt.) des beurkundeten Kaufpreises |
Finanzierungsrechner:
Kaufpreis:
600.000 €
Eigenkapital:
600.000 €
Monatliche Rate
0 €
Effektiver Jahreszins
0 %
Sollzinsbindung
10 Jahre
Bausubstanz & Energieausweis
| Baujahr | 1975 |
|---|---|
| Objektzustand | Renovierungsbedürftig |
| Wesentliche Energieträger | Gas |
| Energieausweis | liegt vor |
| Energieausweistyp | Verbrauchsausweis |
| Energieverbrauchskennwert | 70,0 kWh/(m²*a) |
| Energieeffizienzklasse | B |
70,0
kWh/(m²*a)
Energieeffizienzklasse B
- A+
- A
- B
- C
- D
- E
- F
- G
- H
- 0
- 25
- 50
- 75
- 100
- 125
- 150
- 175
- 200
- 225
- >250
Beschreibung des Objekts
Lage
Braunschweig-Kanzlerfeld präsentiert sich als ein begehrtes Wohnviertel, das durch seine ruhige und grüne Lage besticht. Die stabile Bevölkerungsstruktur, geprägt von langjährigen Eigentümern und Familien, schafft eine verlässliche und wertstabile Umgebung.
Die unmittelbare Umgebung überzeugt durch ein vielfältiges Angebot an Freizeitmöglichkeiten, das von Sportanlagen und mehreren Spielplätzen, die in nur wenigen Gehminuten erreichbar sind, bis hin zu gepflegten Parkanlagen reicht, die zum Entspannen und Erholen einladen.
Die Nähe zu verschiedenen Buslinien, wie der Haltestelle Paracelsusstraße in nur drei Minuten Fußweg, gewährleistet eine ausgezeichnete Anbindung an das öffentliche Verkehrsnetz. Auch die Autobahnen in Richtung Hannover – Wolfsburg – Berlin – Kassel sind innerhalb weniger Fahrminuten zu erreichen.
Für den täglichen Bedarf stehen mehrere Supermärkte, darunter ein EDEKA in fünf Minuten Fußentfernung, zur Verfügung, die eine bequeme Versorgung garantieren. Das gut ausgebaute Bildungsangebot mit Kindergärten in unmittelbarer Nähe und Grundschulen in wenigen Kilometern Entfernung sichert zudem die Attraktivität des Standorts für Familien.
Braunschweig-Kanzlerfeld überzeugt damit durch seine nachhaltige Wertentwicklungsperspektive, seine hohe Lebensqualität und solide Infrastruktur als erstklassige Adresse.
Sonstige Angaben
GELDWÄSCHE: Als Immobilienmaklerunternehmen ist die von Poll Immobilien GmbH nach § 2 Abs. 1 Nr. 14 und § 11 Abs. 1, 2 Geldwäschegesetz (GwG) dazu verpflichtet, bei der Begründung einer Geschäftsbeziehung die Identität des Vertragspartners festzustellen und zu überprüfen, bzw. sobald ein ernsthaftes Interesse an der Durchführung des Immobilienkaufvertrages besteht. Hierzu ist es erforderlich, dass wir nach § 11 Abs. 4 GwG die relevanten Daten Ihres Personalausweises festhalten (wenn Sie als natürliche Person handeln) – beispielsweise mittels einer Kopie. Bei einer juristischen Person benötigen wir eine Kopie des Handelsregisterauszugs, aus welchem der wirtschaftlich Berechtigte hervorgeht. Das Geldwäschegesetz sieht vor, dass der Makler die Kopien bzw. Unterlagen fünf Jahre aufbewahren muss. Als unser Vertragspartner haben Sie auch eine Mitwirkungspflicht nach § 11 Abs. 6 GwG.
HAFTUNG: Wir weisen darauf hin, dass die von uns weitergegebenen Objektinformationen, Unterlagen, Pläne etc. vom Verkäufer bzw. Vermieter stammen. Eine Haftung für die Richtigkeit oder Vollständigkeit der Angaben übernehmen wir daher nicht. Es obliegt daher unseren Kunden, die darin enthaltenen Objektinformationen und Angaben auf ihre Richtigkeit hin zu überprüfen. Alle Immobilienangebote sind freibleibend und vorbehaltlich Irrtümer, Zwischenverkauf- und Vermietung oder sonstiger Zwischenverwertung.
UNSER SERVICE FÜR SIE ALS EIGENTÜMER:
Planen Sie den Verkauf oder die Vermietung Ihrer Immobilie, so ist es für Sie wichtig, deren Marktwert zu kennen. Lassen Sie kostenfrei und unverbindlich den aktuellen Wert Ihrer Immobilie professionell durch einen unserer Immobilienspezialisten einschätzen. Unser bundesweites und internationales Netzwerk ermöglicht es uns, Verkäufer bzw. Vermieter und Interessenten bestmöglich zusammenzuführen.
Grundriss
cfc69200-4d24-49ca-99ae-f8f4ff
>
>
Adresse
38116 Braunschweig
Interessante Orte
Preis- und Lageinformationen
Preistrend für Bestandsimmobilien in Lehndorf-Watenbüttel