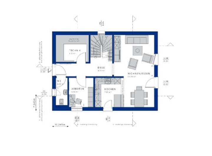
Dem Windfang schließt sich in unserem EDITION 123 eine großzügige Diele an, die direkt in den Wohnbereich führt.
Der wohldurchdachte Grundriss weist die offene Küche und den Essplatz als weitere eigene Zone aus. Und egal ob der
Zugang Ihres neuen Eigenheims auf der Giebel- oder auf der Traufseite sein wird, gleich hinter der Haustür findet sich
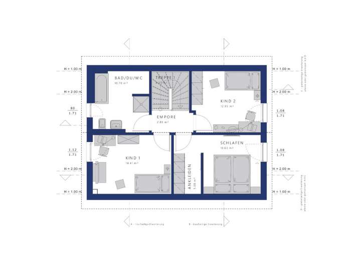
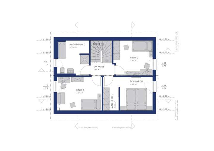
ein zusätzliches Homeoffice, das sich auch als Multifunktionsraum nutzen lässt. Das Dachgeschoss bietet Raum für Ihr
Schlafzimmer mit integrierter Ankleide, zwei Kinderzimmer und ein schönes Familienbad. Was will man mehr?
Vom ersten Blick an verliebt - Willkommen in Ihrem neuen Zuhause
04159 Leipzig
Die vollständige Adresse der Immobilie erhalten Sie vom Anbieter.
Auf Karte anzeigen
Die vollständige Adresse der Immobilie erhalten Sie vom Anbieter.
Finanzierungszertifikat
In nur zwei Minuten zu Ihrem persönlichen Finanzierungszertifkat.
Infos
| Haustyp | Einfamilienhaus |
|---|---|
| Etagenzahl | 2 |
| Wohnfläche ca. | 122 m2 |
| Grundstücksfläche | 497 m2 |
| Zimmer | 5 |
| Schlafzimmer | 3 |
| Badezimmer | 1 |
Kosten
| Kaufpreis |
513.099 € |
|---|
Finanzierungsrechner:
Kaufpreis:
600.000 €
Eigenkapital:
600.000 €
Monatliche Rate
0 €
Effektiver Jahreszins
0 %
Sollzinsbindung
10 Jahre
Bausubstanz & Energieausweis
| Baujahr | unbekannt |
|---|---|
| Bauphase | Haus in Planung (projektiert) |
| Qualität der Austattung | Gehoben |
| Heizungsart | Wärmepumpe |
Beschreibung des Objekts
Ausstattung
Wir erstellen Ihr Haus in bekannter Bien-Zenker Qualität, darin sind unter anderem folgende Leistungen enthalten:
Alle zur Erstellung des Bauantrages notwendigen Architektenleistungen,
Premium Versicherungspaket mit Wohngebäude- inkl. Glasversicherung, Bauleistungsversicherung, Bauherren-Haftpflichtversicherung, Bau-Unfallversicherung, Baufinanzierungsschutz
Ausführung als Effizienzhaus 55, nach Ihrer Wahl auch als Effizienzhaus 40 oder 40 plus,
Luft-Wasser-Wärmepumpe mit Fußbodenheizung und zentrale Komfort-Lüftungsanlage mit Wärmerückgewinnung, optional auch als Sole-Wasser-Wärmepumpe ("Erdwärme") oder Wohlfühlklimaheizung,
Bodenplatte mit Erdarbeiten,
Elektroenergie und Trinkwasser ab Hausanschluss betriebsbereit installiert,
Kunststofffenster mit Dreischeibenverglasung inklusive Rollläden
Fliesenarbeiten und Sanitärobjekte nach Plan.
Folgende Eigenleistungen sind zu erbringen: Malerarbeiten, Fußbodenbeläge, Innentüren. Wir erstellen Ihr Haus aber auch gerne komplett bezugsfertig.
Lage
Steht ihr neues Zuhause in Leipzig-Lützschena?
Lützschena als westlichster Stadtteil Leipzigs verbindet die Nähe zur Auenwaldlandschaft mit einer sehr guten Infrastruktur.
Familien finden Kitas und alle Schulen in der Nähe, Straßenbahn- und S-Bahn-Haltestelle sind fußläufig zu erreichen.
Und wenn Sie bei Porsche, DHL oder einem anderen der in der Umgebung befindlichen Unternehmen arbeiten, dann können Sie in Zukunft mit dem Fahrrad zur Arbeit fahren.
Sonstige Angaben
Das Grundstück ist im obigen Preis eingerechnet, es wird ohne zusätzliche Provision an einen Bien-Zenker Bauherren bereitgestellt.
Zusätzliche Baunebenkosten müssen noch hinzugerechnet werden, hierüber beraten wir Sie gern.
Wir bieten Ihnen interessante Finanzierungsmöglichkeiten inklusive Beantragung aller Fördermittel!
Die Hausabbildungen zeigen teilweise Sonderausstattungen, die nicht im Preis enthalten sind.
Sie möchten dieses Haus besichtigen: Rufen Sie uns an und zufriedene Kunden zeigen ihnen gern ihr Haus!
Gute Beratung ist der Anfang von Allem.
Deshalb analysieren wir gemeinsam mit Ihnen Ihre Vorstellungen, Wünsche und Bedürfnisse und finden so das für Sie und Ihre Familie passende BIEN ZENKER Haus.
Interessiert? Rufen Sie mich gleich an und vereinbaren Sie noch heute einen kostenlosen und unverbindlichen Beratungstermin.
Adresse
04159 Leipzig
Interessante Orte
Preis- und Lageinformationen
Preistrend für Bestandsimmobilien in Lützschena-Stahmeln
>
>