Das kernsanierte Reihenmittelhaus präsentiert sich im neuen Glanz und ist nach Abschluss der umfassenden Modernisierung vollständig an Studenten vermietet.
Die Jahresnettokaltmiete beträgt 48.000 €.
In dieser außergewöhnlich zentralen Lage im Herzen von Münster sind sämtliche Highlights der Stadt fußläufig erreichbar. Auch die Universität und die Fachhochschule befinden sich nur wenige Fahrradminuten entfernt.
Das Haus bietet auf zwei Etagen und einem ausgebauten Dachgeschoss insgesamt sieben hochwertig sanierte Zimmer und überzeugt mit einer großzügigen, sonnigen Terrasse. Die Immobilie verfügt über zwei moderne, neue Badezimmer; im Dachgeschoss sind die Zimmer zusätzlich mit einem eigenen Gäste-WC ausgestattet. Die vollausgestattete Gemeinschaftsküche im Erdgeschoss mit direktem Zugang zur Terrasse lädt zum gemeinsamen Kochen und Verweilen ein.
Im Untergeschoss steht ausreichend Abstellfläche für Fahrräder zur Verfügung – selbstverständlich ein Muss in Münster.
Dank der zentralen Lage und der modernen Ausstattung ist das Objekt besonders attraktiv für Studierende aller Hochschulen in Münster. Diese Immobilie bietet modernen Wohnraum mit viel Platz und Komfort für junge Menschen mitten in der Stadt.
Attraktive Kapitalanlage – Voll vermietetes Studentenhaus in gefragter Lage
48147 Münster
Die vollständige Adresse der Immobilie erhalten Sie vom Anbieter.
Auf Karte anzeigen
Die vollständige Adresse der Immobilie erhalten Sie vom Anbieter.
Finanzierungszertifikat
In nur zwei Minuten zu Ihrem persönlichen Finanzierungszertifkat.
Infos
| Haustyp | Reihenmittelhaus |
|---|---|
| Etagenzahl | 2 |
| Wohnfläche ca. | 183 m2 |
| Grundstücksfläche | 134 m2 |
| Zimmer | 8 |
| Schlafzimmer | 7 |
| Badezimmer | 4 |
Kosten
| Kaufpreis |
930.000 € |
|---|---|
| Provision |
55.335 € Käufer und Verkäufer zahlen jeweils eine Provision in Höhe von 5 % (zzgl. USt.) vom beurkundeten Kaufpreis. |
| Mieteinnahmen | 4.000 € |
Finanzierungsrechner:
Kaufpreis:
600.000 €
Eigenkapital:
600.000 €
Monatliche Rate
0 €
Effektiver Jahreszins
0 %
Sollzinsbindung
10 Jahre
Bausubstanz & Energieausweis
| Baujahr | 1902 |
|---|---|
| Letzte Sanierung | 2021 |
| Bauphase | Haus fertig gestellt |
| Objektzustand | Saniert |
| Qualität der Austattung | Normal |
| Heizungsart | Zentralheizung |
| Wesentliche Energieträger | Gas |
| Energieausweis | liegt vor |
| Energieausweistyp | Verbrauchsausweis |
| Energieverbrauchskennwert | 113,3 kWh/(m²*a) |
| Energieeffizienzklasse | D |
113,3
kWh/(m²*a)
Energieeffizienzklasse D
- A+
- A
- B
- C
- D
- E
- F
- G
- H
- 0
- 25
- 50
- 75
- 100
- 125
- 150
- 175
- 200
- 225
- >250
Beschreibung des Objekts
Ausstattung
Im Rahmen einer umfassenden Kernsanierung wurden in den Jahren 2021 und 2022 zahlreiche Modernisierungs- und Erneuerungsmaßnahmen durchgeführt.
Verbesserungsmaßnahmen (2022):
Sämtliche Fenster, Strom-, Gas-, Wasser- und Abwasserleitungen wurden vollständig erneuert. Auch die Heizungsanlage, alle Bäder sowie der gesamte Innenausbau wurden im Zuge der Sanierung komplett modernisiert.
Erneuerungen und Einbauten:
Bereits im Jahr 2021 erfolgte die Erneuerung des Dachs einschließlich einer verbesserten Wärmedämmung. Im Jahr 2022 wurde zudem eine Wärmedämmung der Außenwände angebracht und sämtliche Bäder neu eingebaut.
Die umfassenden Maßnahmen haben das Gebäude mit einer Bruttogrundfläche von ca. 325 m² in einen technisch und optisch exzellenten Zustand versetzt, der nahezu Neubauqualität erreicht.
Lage
Die Immobilie befindet sich im Herzen von Münster, in unmittelbarer Nähe zur Innenstadt und zum beliebten Schlachthofviertel. Diese zentrale und zugleich ruhige Lage gehört zu den begehrtesten Wohnadressen der Stadt.
Alle wichtigen Einrichtungen des täglichen Bedarfs – Einkaufsmöglichkeiten, Cafés, Restaurants und Ärzte – befinden sich in fußläufiger Entfernung. Der Hauptbahnhof, die Promenade sowie die historische Altstadt sind in wenigen Minuten erreichbar.
Auch für Studierende ist die Lage ideal: Die Westfälische Wilhelms-Universität, die Fachhochschule Münster sowie zahlreiche Institute und Bibliotheken sind bequem mit dem Fahrrad erreichbar.
Die hervorragende Infrastruktur und die urbane Umgebung bieten höchste Lebensqualität und machen das Objekt sowohl für Eigennutzer als auch für Kapitalanleger äußerst attraktiv. Gleichzeitig sorgt die gute Anbindung an den öffentlichen Nahverkehr und an die Hauptverkehrsachsen für beste Erreichbarkeit innerhalb Münsters und darüber hinaus.
Sonstige Angaben
Die o. g. Angaben beruhen auf Informationen vom Verkäufer für die wir keine Haftung übernehmen.
Wir freuen uns auf Ihre Kontaktaufnahme!
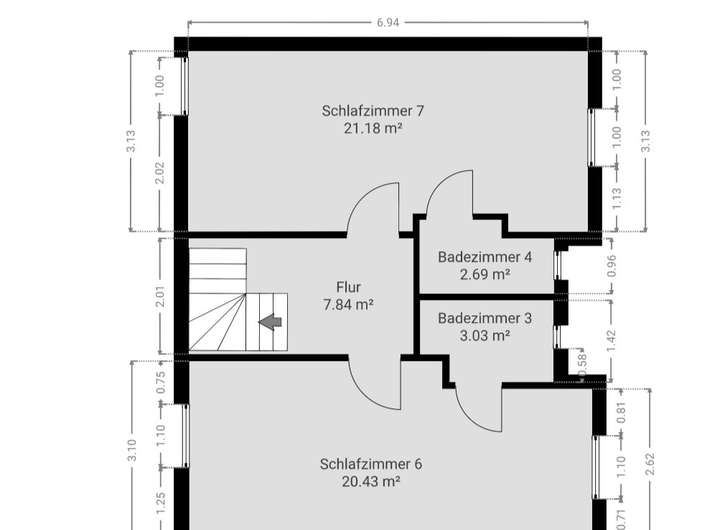
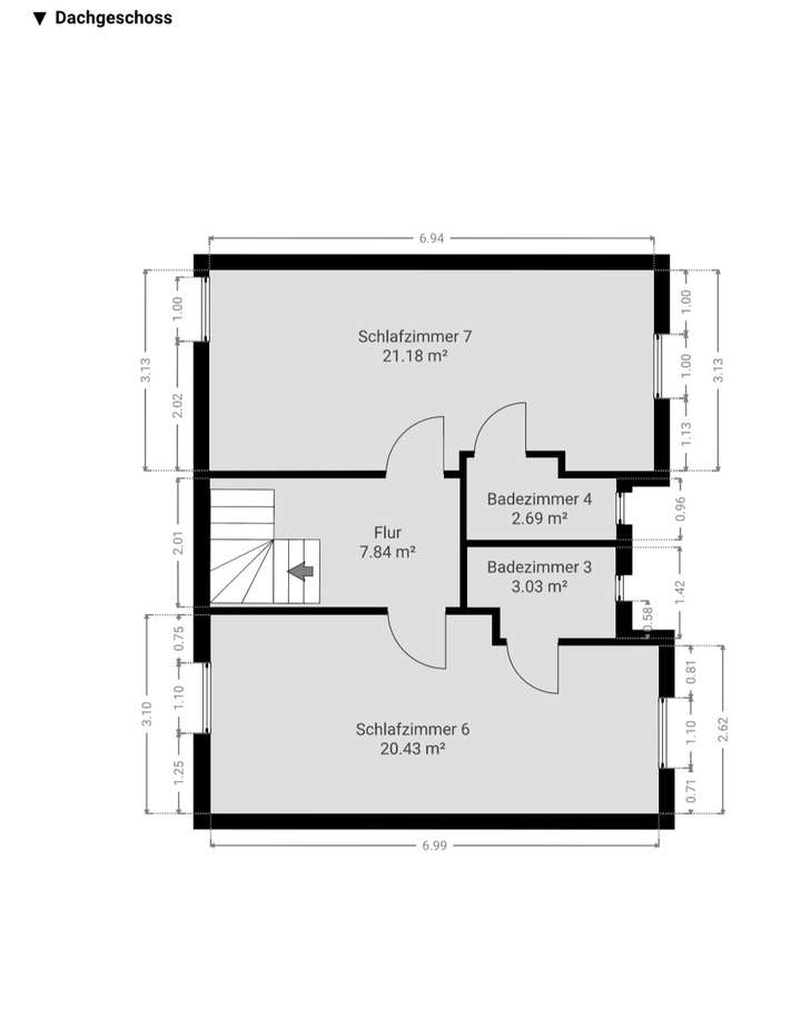
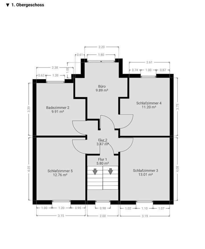
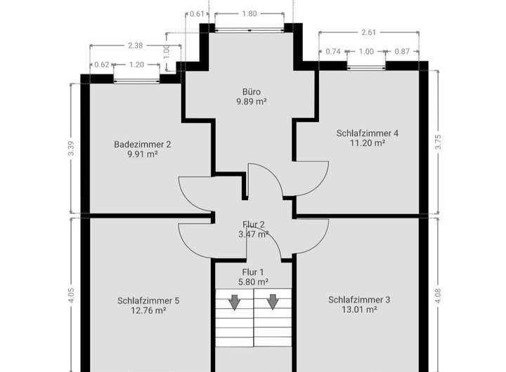
Grundriss
Erdgeschoss
>
>
1. Obergeschoss
>
>
Dachgeschoss
>
>
Adresse
48147 Münster
Interessante Orte
Preis- und Lageinformationen
Preistrend für Bestandsimmobilien in Schlachthofviertel