Lassen Sie sich begeistern von 128 m² im Architektenhaus Jaro. Der Grundriss überzeugt in jeder Hinsicht, denn im Erdgeschoss erwartet Sie ein großzügiger, offener Wohnbereich mit Essbereich und einer offenen Küche. Hier werden Wohnträume wahr, denn für jedes Familienmitglied findet sich hier genug Platz für das wahre Leben! Nicht fehlen dürfen auf der Etage ein Gäste-WC und der Hauswirtschaftsraum.
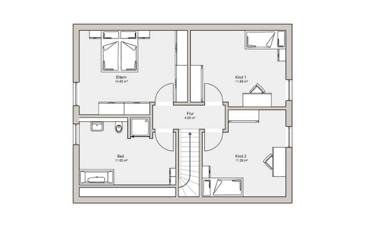
Im Dachgeschoss des Satteldachhauses befinden sich zwei Kinderzimmer, ein Elternschlafzimmer und das geräumige Familienbad.
Dieses Haus wird nach Ihren individuellen Wünschen geplant und ausgestattet!
Wir bringen Sie entspannt in Ihr eigenes Zuhause!
54426 Malborn
Die vollständige Adresse der Immobilie erhalten Sie vom Anbieter.
Auf Karte anzeigen
Die vollständige Adresse der Immobilie erhalten Sie vom Anbieter.
Finanzierungszertifikat
In nur zwei Minuten zu Ihrem persönlichen Finanzierungszertifkat.
Infos
| Haustyp | Einfamilienhaus |
|---|---|
| Wohnfläche ca. | 128 m2 |
| Grundstücksfläche | 700 m2 |
| Zimmer | 4 |
| Schlafzimmer | 3 |
| Badezimmer | 1 |
| Anzahl Garage/Stellplatz | 2 |
Kosten
| Kaufpreis |
387.900 € |
|---|---|
| Provision | Nein |
Finanzierungsrechner:
Kaufpreis:
600.000 €
Eigenkapital:
600.000 €
Monatliche Rate
0 €
Effektiver Jahreszins
0 %
Sollzinsbindung
10 Jahre
Bausubstanz & Energieausweis
| Baujahr | 2026 |
|---|---|
| Bauphase | Haus in Planung (projektiert) |
| Objektzustand | Erstbezug |
| Qualität der Austattung | Gehoben |
| Heizungsart | Wärmepumpe |
| Energieausweis | liegt vor |
| Energieausweistyp | Bedarfsausweis |
| Energieverbrauchskennwert | 14,0 kWh/(m²*a) |
| Energieeffizienzklasse | A+ |
14,0
kWh/(m²*a)
Energieeffizienzklasse A+
- A+
- A
- B
- C
- D
- E
- F
- G
- H
- 0
- 25
- 50
- 75
- 100
- 125
- 150
- 175
- 200
- 225
- >250
Beschreibung des Objekts
Ausstattung
4 Zimmer, offene Küche, Diele, Flur, Bad, WC, Hauswirtschaftsraum
Das gezeigte Traumhaus im Überblick:
+ Massivhaus im Sinne der Ausstattungsbeschreibung "Nestbau"
+ Zukunftsorientierte Energieausstattung in Form einer Luft-Wasser-Wärmepumpe und Fußbodenheizung
Beste Markenausstattung in jedem Kern-Haus:
+ Fenster mit 3-Scheiben-Wärmeschutzverglasung und elektrischen Rollläden
+ Dacheindeckung mit Betondachsteinen von Braas mit "Star-Oberfläche"
+ Hochwertiger Kunstharz-Außenputz
+ Badausstattung mit Badewanne und flacher Duschwanne
+ Fliesen in Bad und WC
+ Haustür mit Sicherheitsverriegelung
+ Innentüren der Marke Herholz mit Edelstahldrückern
+ Stahl-Holz-Treppe mit individueller Farbgestaltungsmöglichkeit
+ Elektroausstattung inklusive Klingelanlage
+ Rauchmelder für Ihre Sicherheit
+ Einsatz regionaler Handwerksbetriebe
+ Blower-Door-Test
Lage
Das Baugrundstück befindet sich in Thiergarten, einem idyllischen Ortsteil von Malborn im Landkreis Trier-Saarburg und zeichnet sich durch seine ruhige, naturnahe Wohnlage und die gute Erreichbarkeit zur Stadt Trier aus. Der Ort ist umgeben von Wiesen und Wäldern – perfekt für alle, die ländliche Ruhe schätzen, aber dennoch stadtnah leben möchten.
Über die Bundesstraßen B51 und B52 ist Trier in etwa 15 bis 20 Minuten zu erreichen. Auch in Richtung Luxemburg bestehen gute Verbindungen, die ideal für Pendler sind. Der öffentliche Nahverkehr ist über Buslinien angebunden, die regelmäßig in die umliegenden Ortschaften sowie nach Trier verkehren.
Im nahegelegenen Hauptort und in den umliegenden Dörfern sind Einkaufsmöglichkeiten für den täglichen Bedarf, darunter Supermärkte, Bäckereien und Apotheken vorhanden. Für größere Einkäufe oder einen Stadtbummel bietet sich die Stadt Trier mit seinem vielfältigen Einzelhandel an.
Grundschule und Kindertagesstätten befinden sich in den Nachbarorten, weiterführende Schulen sind in Trier und Schweich vorhanden, die bequem mit dem Bus oder Auto erreichbar sind.
Sonstige Angaben
Kern-Haus baut individuelle und massive Architektenhäuser zu einem attraktiven Preis-Leistungs-Verhältnis – und das bereits mit einer Erfahrung seit 1980. Die Kern-Haus AG ist ein deutscher, inhabergeführter Massivhausanbieter mit Sitz im rheinland-pfälzischen Ransbach-Baumbach. Kern-Haus setzt auf eine hohe Bauqualität der Handwerker und auf eine große Auswahl starker Marken. So verwendet Kern-Haus beim Bau Ihres Hauses nur hochwertige Markenprodukte renommierter Hersteller.
Preise und Auszeichnungen von Kern-Haus:
- German Brand Award in den Jahren 2018 und 2021
- Hausbau Design Award: Sieger in den Jahren 2017, 2018, 2019, 2020, 2021, 2022 und 2023
- Deutscher Traumhauspreis: Sieger in den Jahren 2014, 2015, 2016 und 2018 und Silber 2017, 2020 und 2021
- Mittelstandspreis "Top 100" in den Jahren 2014, 2016, 2018, 2020 und 2022
- German Design Award im Jahr 2018
Weitere Informationen
Der gezeigte Preis versteht sich inklusive Grundstück und exklusive der Baunebenkosten.
Grundriss
Grundriss Erdgeschoss
>
>
Grundriss Dachgeschoss
>
>
Adresse
54426 Malborn
Interessante Orte
Preis- und Lageinformationen
Preistrend für Bestandsimmobilien in Malborn