Dieses charmante Reihenmittelhaus in München-Haar überzeugt durch seine attraktive Lage, eine durchdachte Raumaufteilung und zahlreiche Ausstattungsdetails, die modernen Wohnkomfort garantieren. Mit einer Wohnfläche von ca. 115–120 m² bietet das Haus ausreichend Platz für Familien oder Paare, die großzügig und zugleich kompakt wohnen möchten.
Das Haus wurde in den Jahren 2008 und 2020 umfassend renoviert und präsentiert sich in einem gepflegten Zustand. Besonders praktisch: Dank LAN-Anschlüssen in allen Räumen eignet sich das Objekt hervorragend für modernes Arbeiten und Homeoffice.
Komfort wird außerdem durch teilweise elektrische Rollläden, integrierte Deckenspots sowie eine hochwertige Einbauküche gewährleistet.
Der Keller mit beheiztem Hobbyraum eröffnet zusätzliche Nutzungsmöglichkeiten – sei es als Büro, Fitnessraum oder Rückzugsort. Für entspannte Stunden im Freien stehen sowohl ein Balkon als auch eine überdachte Terrasse mit Markise zur Verfügung. Das kompakte Grundstück eignet sich ideal, um den Außenbereich mit Kindern oder für gemütliche Gartenmomente zu nutzen – ohne großen Pflegeaufwand. Ein Geräteschuppen schafft zusätzlichen Stauraum.
Mit 4–5 Zimmern, zwei Garagen und vielen weiteren Ausstattungsdetails erfüllt dieses Reihenhaus nahezu alle Wünsche.
Modernes Reihenmittelhaus schön gelegen in München-Haar
85540 Haar
Die vollständige Adresse der Immobilie erhalten Sie vom Anbieter.
Auf Karte anzeigen
Die vollständige Adresse der Immobilie erhalten Sie vom Anbieter.
Finanzierungszertifikat
In nur zwei Minuten zu Ihrem persönlichen Finanzierungszertifkat.
Infos
| Haustyp | Reihenmittelhaus |
|---|---|
| Etagenzahl | 3 |
| Wohnfläche ca. | 115 m2 |
| Grundstücksfläche | 148 m2 |
| Zimmer | 5 |
| Schlafzimmer | 3 |
| Badezimmer | 1 |
| Garage/Stellplatz | Garage |
| Anzahl Garage/Stellplatz | 1 |
Kosten
| Kaufpreis |
899.000 € |
|---|---|
| Provision |
2,38 |
| Mieteinnahmen | 2.220 € |
Finanzierungsrechner:
Kaufpreis:
600.000 €
Eigenkapital:
600.000 €
Monatliche Rate
0 €
Effektiver Jahreszins
0 %
Sollzinsbindung
10 Jahre
Bausubstanz & Energieausweis
| Baujahr | 1974 |
|---|---|
| Letzte Sanierung | 2020 |
| Objektzustand | Modernisiert |
| Qualität der Austattung | Normal |
| Heizungsart | Zentralheizung |
| Wesentliche Energieträger | Gas |
| Energieausweis | liegt vor |
| Energieausweistyp | Verbrauchsausweis |
| Energieverbrauchskennwert | 88,7 kWh/(m²*a) |
| Energieeffizienzklasse | C |
88,7
kWh/(m²*a)
Energieeffizienzklasse C
- A+
- A
- B
- C
- D
- E
- F
- G
- H
- 0
- 25
- 50
- 75
- 100
- 125
- 150
- 175
- 200
- 225
- >250
Beschreibung des Objekts
Lage
Das Reihenmittelhaus befindet sich in einer super Wohnlage von München-Haar. Die Umgebung zeichnet sich durch eine ruhige, familienfreundliche Atmosphäre aus und bietet gleichzeitig eine hervorragende Anbindung an die Münchner Innenstadt. Mit der S-Bahn sowie mehreren Buslinien erreicht man die Stadt schnell und bequem, auch die Autobahnanschlüsse sind in wenigen Minuten erreichbar.
Einkaufsmöglichkeiten für den täglichen Bedarf, Restaurants, Ärzte und Apotheken befinden sich direkt vor Ort. Schulen, Kindergärten und Gymnasium liegen in unmittelbarer Nähe und machen die Lage besonders attraktiv für Familien.
Für Freizeit und Erholung sorgen zahlreiche Grünflächen, Parks und Sportmöglichkeiten in der Umgebung. Durch den hohen Freizeitwert und die moderne Infrastruktur vereint Haar urbanes Wohnen mit einem hohen Maß an Lebensqualität.
Sonstige Angaben
Besichtigungen finden nur statt, wenn im Vorfeld eine Finanzierungsbestätigung (auch mit banküblichem Prüfungsvorbehalt) eingereicht wird.
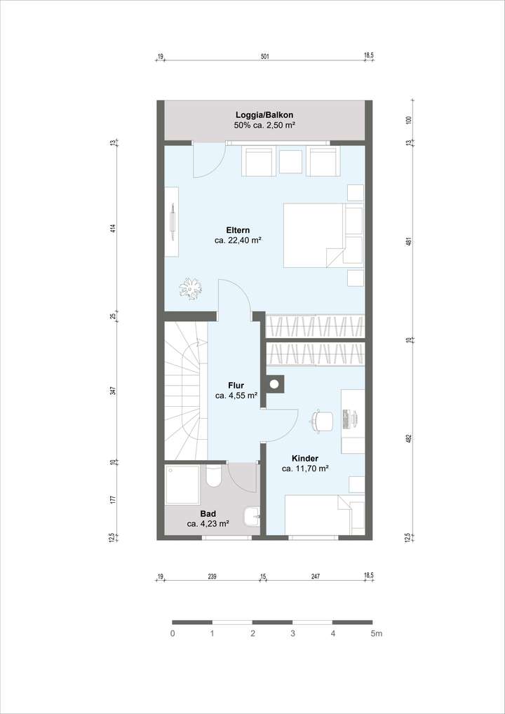
Die Grundrisse sind ca. Angaben und nicht maßstabsgetreu
Betriebsruhe 2025 / 2026
Bitte beachten Sie unsere Betriebsruhe vom 22. Dezember 2025 bis einschließlich 6. Januar 2026.
Ab dem 7. Januar 2026 sind wir wieder wie gewohnt für Sie erreichbar.
Grundriss
Dr.-Mach-Straße 14, 85540 Münc
>
>
Dr.-Mach-Straße 14, 85540 Münc
>
>
Dr.-Mach-Straße 14, 85540 Münc
>
>
Dr.-Mach-Straße 14, 85540 Münc
>
>
Adresse
85540 Haar
Interessante Orte
Preis- und Lageinformationen
Preistrend für Bestandsimmobilien in Haar