Willkommen in deinem zukünftigen Zuhause in Zwiefaltendorf! Dieses Einfamilienhaus mit klassischem Satteldach erfüllt all deine Wohnträume. Der beeindruckende Panorama-Erker mit riesigen Fenstern sorgt nicht nur für einen atemberaubenden Blick nach draußen, sondern lässt auch viel Licht in dein Zuhause fluten. Der Zwerchgiebel mit Flachdach erweitert den Wohnraum im Obergeschoss und ermöglicht es dir, die gesamte Deckenhöhe optimal zu nutzen. Mit einer großzügigen Wohnfläche von 166 m² und fünf Zimmern bietet dieses Haus ausreichend Platz für deine Familie. Die drei Schlafzimmer und zwei Badezimmer bieten Komfort und Privatsphäre für jedes Familienmitglied. Bei LivingHaus hast du zudem die Möglichkeit, dein Zuhause nach deinen Wünschen und Vorstellungen zu gestalten. Mit der hochwertigen Traumküche erhältst du eine Küche, die perfekt auf deinen Grundriss abgestimmt ist. Sie bietet modernste Technik, durchdachte Stauraumlösungen und ein ästhetisches Design, sodass du gleich nach dem Einzug mit dem Kochen beginnen kannst. Die Living Haus Bau-App ermöglicht es dir, jederzeit den Überblick über dein Bauprojekt zu behalten, während das I-KON-System für intelligentes Bauen dein Zuhause energieeffizient und umweltfreundlich macht. Du kannst von exklusiven Finanzierungsangeboten wie dem Zuhause-Darlehen profitieren, um dein Traumhaus zu realisieren. Das Zuhause-Paket sorgt dafür, dass dein Haus mit einer hochwertigen Grundausstattung geliefert wird, die moderne Böden, edle Türen und stilvolle Sanitäranlagen umfasst. Wenn du gerne handwerklich aktiv bist, wird das DIY-Ausbau-Coaching dir wertvolle Tipps und Unterstützung bieten, um den Innenausbau deines Hauses erfolgreich zu meistern. Zusammengefasst: Dein individuelles Traumhaus wartet auf dich!
TRAUMHAUS MIT GRUNDSTÜCK - Nach euren Wünschen maßgeschneidert und voll unterkellert!
88499 Riedlingen
Die vollständige Adresse der Immobilie erhalten Sie vom Anbieter.
Auf Karte anzeigen
Die vollständige Adresse der Immobilie erhalten Sie vom Anbieter.
Finanzierungszertifikat
In nur zwei Minuten zu Ihrem persönlichen Finanzierungszertifkat.
Infos
| Haustyp | Einfamilienhaus |
|---|---|
| Wohnfläche ca. | 166 m2 |
| Grundstücksfläche | 1.100 m2 |
| Zimmer | 5 |
| Schlafzimmer | 3 |
| Badezimmer | 2 |
Kosten
| Kaufpreis |
645.670 € |
|---|
Finanzierungsrechner:
Kaufpreis:
600.000 €
Eigenkapital:
600.000 €
Monatliche Rate
0 €
Effektiver Jahreszins
0 %
Sollzinsbindung
10 Jahre
Bausubstanz & Energieausweis
| Baujahr | 2025 |
|---|---|
| Bauphase | Haus in Planung (projektiert) |
| Qualität der Austattung | Gehoben |
| Heizungsart | Wärmepumpe |
| Energieausweis | liegt vor |
| Energieausweistyp | Bedarfsausweis |
| Energieverbrauchskennwert | 18,0 kWh/(m²*a) |
| Energieeffizienzklasse | A+ |
18,0
kWh/(m²*a)
Energieeffizienzklasse A+
- A+
- A
- B
- C
- D
- E
- F
- G
- H
- 0
- 25
- 50
- 75
- 100
- 125
- 150
- 175
- 200
- 225
- >250
Beschreibung des Objekts
Ausstattung
In diesem Angebot enthalten:
- 18 Monate Festpreisgarantie!
- Baugrundstück
- auf den Grundriss individuell geplante Küche mit Kochinsel, Softclose, Induktion, Spülmaschine und vielem mehr!
- Haus als Plus-Energiehaus mit Kühlfunktion
- Bodenplatte
- Fenster, Außenfensterbänke, Rollladenführungsschienen und -Endleisten in RAL Farbe
- Photovoltaikanlage
- Stromspeicher mit 10 kWh
- Elektroinstallation durch LivingHaus
- Sanitärrohinstallation durch LivingHaus
- Dämmung und Beplankung durch LivingHaus
- Estricharbeiten durch LivingHaus
- komplettes hochwertiges Finish-Material (Boden- und Wandbeläge, Innentüren, Sanitärobjekte, bis hin zum Handtuchhalter ist alles enthalten)
- Ausbaucoach für 3 Tage auf eurer eigenen Baustelle (DiY - Academy)
- Architektenleistung
- Finanzierungsservice mit Sonderkonditionen
- Baucockpit App damit ihr immer die nächsten Schritte im Blick habt
- DGNB-Zertifikat in GOLD
Lage
Zwiefaltendorf ist ein charmantes Dorf, das dir und deiner Familie eine hohe Lebensqualität bietet. In unmittelbarer Nähe findest du verschiedene Bildungseinrichtungen, darunter Kindergärten und Grundschulen, die für die Kleinsten ideal sind. Die Grundschule in Zwiefaltendorf hat sehr gute Bewertungen und ist bekannt für ihre individuelle Betreuung der Schüler. Für die weiterführende Bildung sind die Schulen in der nahegelegenen Stadt Geislingen gut erreichbar. Einkaufsmöglichkeiten sind ebenfalls in der Umgebung vorhanden. In nur wenigen Minuten erreichst du Supermärkte und Fachgeschäfte, die alles für den täglichen Bedarf anbieten. Für die Gesundheitsversorgung stehen dir mehrere Arztpraxen in Zwiefaltendorf und den Nachbarorten zur Verfügung, die eine umfassende medizinische Grundversorgung bieten. Die Freizeitmöglichkeiten sind vielfältig: Die idyllische Landschaft lädt zu Spaziergängen, Fahrradtouren und anderen Outdoor-Aktivitäten ein. Zudem gibt es in der Umgebung Sportvereine, die dir und deiner Familie zahlreiche Aktivitäten bieten. Die Anbindung an den öffentlichen Nahverkehr ist gut, so dass du schnell die Städte in der Umgebung erreichen kannst. Die Autobahn ist ebenfalls leicht zugänglich, was Pendeln zu deinem Arbeitsplatz komfortabel macht. Zwiefaltendorf ist der perfekte Ort für Familien, Naturliebhaber und Pendler, die ein harmonisches und ruhiges Leben suchen.
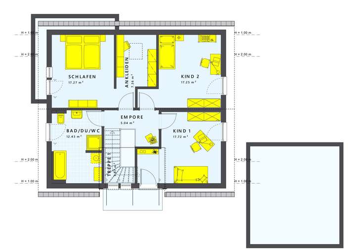
Grundriss
Erdgeschoss
>
>
Dachgeschoss
>
>
Kellergeschoss
>
>
Adresse
88499 Riedlingen
Interessante Orte
Preis- und Lageinformationen
Preistrend für Bestandsimmobilien in Riedlingen