Das LivingHaus in Zwiefaltendorf ist mehr als nur ein Fertighaus - es ist dein persönliches Traumhaus, das nach deinen individuellen Wünschen und Vorstellungen gestaltet wird. Mit einer großzügigen Wohnfläche von 125 m² und fünf Zimmern, darunter drei Schlafzimmer, bietet es ausreichend Platz für die ganze Familie. Der klassische Satteldachstil mit einer Neigung von 38 Grad verleiht dem Haus eine zeitlose Eleganz und die Möglichkeit, durch Erker oder Giebel den Wohnbereich zu erweitern. Bodentiefe Fenster durchfluten die Räume mit Licht und schaffen eine einladende Atmosphäre. Hier kannst du dich wohlfühlen und die perfekte Balance zwischen Funktionalität und Ästhetik genießen.
TRAUMHAUS MIT GRUNDSTÜCK - Dein neues Zuhause mit gemütlichem Garten in Zwiefaltendorf!
88499 Riedlingen
Die vollständige Adresse der Immobilie erhalten Sie vom Anbieter.
Auf Karte anzeigen
Die vollständige Adresse der Immobilie erhalten Sie vom Anbieter.
Finanzierungszertifikat
In nur zwei Minuten zu Ihrem persönlichen Finanzierungszertifkat.
Infos
| Haustyp | Einfamilienhaus |
|---|---|
| Wohnfläche ca. | 125 m2 |
| Grundstücksfläche | 1.100 m2 |
| Bezugsfrei ab | nach Vereinbarung |
| Zimmer | 5 |
| Schlafzimmer | 3 |
| Badezimmer | 1 |
Kosten
| Kaufpreis |
510.320 € |
|---|---|
| Provision | Nein |
Finanzierungsrechner:
Kaufpreis:
600.000 €
Eigenkapital:
600.000 €
Monatliche Rate
0 €
Effektiver Jahreszins
0 %
Sollzinsbindung
10 Jahre
Bausubstanz & Energieausweis
| Baujahr | 2025 |
|---|---|
| Bauphase | Haus in Planung (projektiert) |
| Qualität der Austattung | Gehoben |
| Heizungsart | Wärmepumpe |
| Energieausweis | liegt vor |
| Energieausweistyp | Bedarfsausweis |
| Energieverbrauchskennwert | 18,0 kWh/(m²*a) |
| Energieeffizienzklasse | A+ |
18,0
kWh/(m²*a)
Energieeffizienzklasse A+
- A+
- A
- B
- C
- D
- E
- F
- G
- H
- 0
- 25
- 50
- 75
- 100
- 125
- 150
- 175
- 200
- 225
- >250
Beschreibung des Objekts
Ausstattung
In diesem Angebot enthalten:
- 18 Monate Festpreisgarantie!
- Baugrundstück
- auf den Grundriss individuell geplante Küche mit Kochinsel, Softclose, Induktion, Spülmaschine und vielem mehr!
- Haus als Plus-Energiehaus mit Kühlfunktion
- Bodenplatte
- Fenster, Außenfensterbänke, Rollladenführungsschienen und -Endleisten in RAL Farbe
- Photovoltaikanlage
- Stromspeicher mit 10 kWh
- Elektroinstallation durch LivingHaus
- Sanitärrohinstallation durch LivingHaus
- Dämmung und Beplankung durch LivingHaus
- Estricharbeiten durch LivingHaus
- komplettes hochwertiges Finish-Material (Boden- und Wandbeläge, Innentüren, Sanitärobjekte, bis hin zum Handtuchhalter ist alles enthalten)
- Ausbaucoach für 3 Tage auf eurer eigenen Baustelle (DiY - Academy)
- Architektenleistung
- Finanzierungsservice mit Sonderkonditionen
- Baucockpit App damit ihr immer die nächsten Schritte im Blick habt
- DGNB-Zertifikat in GOLD
Lage
Zwiefaltendorf bietet dir ein ideales Umfeld für dein neues Zuhause. In der Umgebung findest du zahlreiche Bildungseinrichtungen, darunter Kindergärten und Schulen, die einen hohen Stellenwert in der Gemeinde haben. Die Grundschule Zwiefaltendorf ist besonders beliebt und wird für ihre engagierten Lehrkräfte gelobt. Für den täglichen Einkauf hast du verschiedene Supermärkte und Fachgeschäfte in der Nähe, die dir eine gute Auswahl bieten. Ärzte und Apotheken sind ebenfalls gut erreichbar, sodass die medizinische Versorgung immer gesichert ist. Die Freizeitmöglichkeiten sind vielfältig: Wander- und Radwege laden Naturliebhaber zu Erkundungstouren in die Natur ein, während Sportvereine und Freizeitangebote für eine aktive Gestaltung der Freizeit sorgen. Zudem bist du durch die gute Anbindung an den öffentlichen Nahverkehr sowie die Autobahn schnell in umliegenden Städten und kannst somit bequem pendeln. Die ruhige, familiäre Atmosphäre in Zwiefaltendorf macht diesen Ort zu einem idealen Rückzugsort, während du gleichzeitig alle Annehmlichkeiten des Lebens in unmittelbarer Nähe hast.
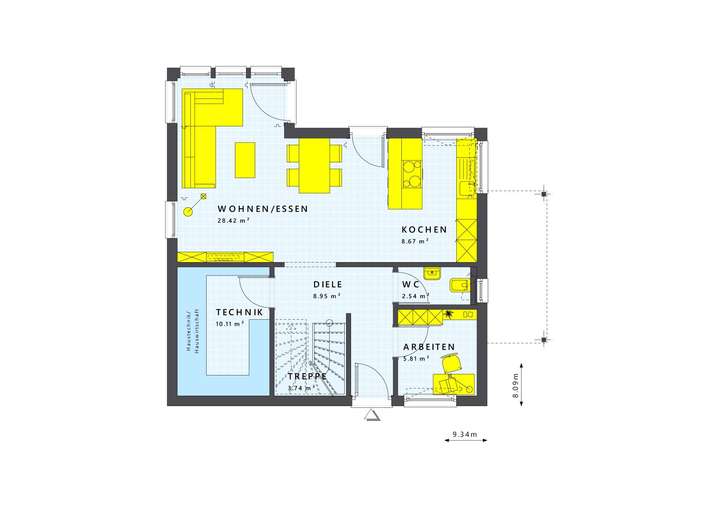
Grundriss
Erdgeschoss
>
>
Dachgeschoss
>
>
Adresse
88499 Riedlingen
Interessante Orte
Preis- und Lageinformationen
Preistrend für Bestandsimmobilien in Riedlingen