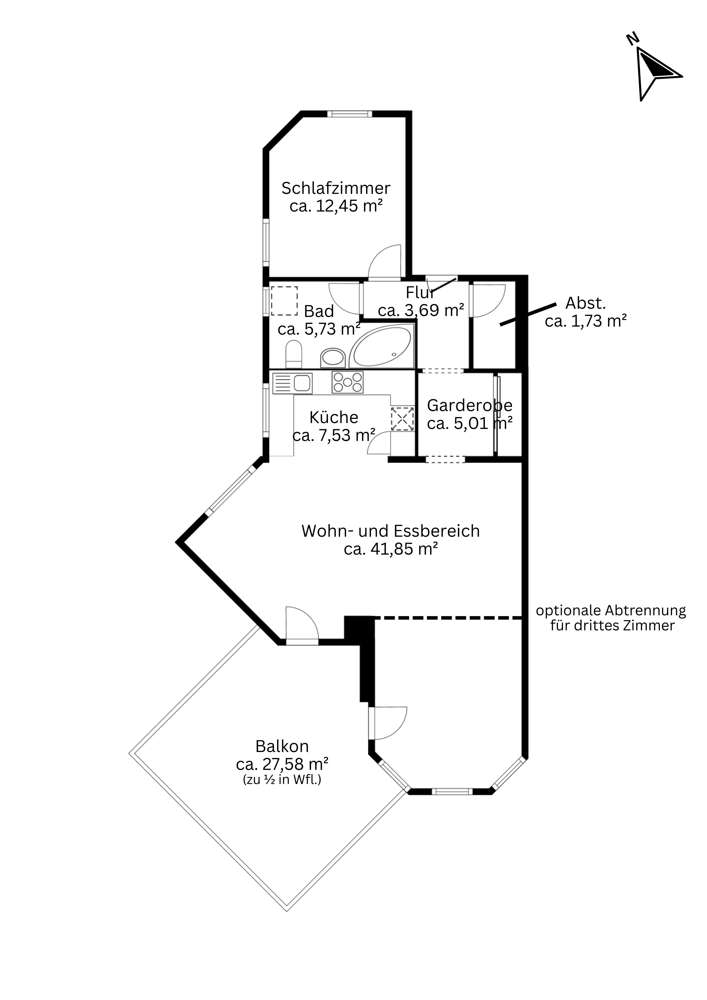
Zum Verkauf steht eine gepflegte 2-Zimmer-Wohnung im 1. Obergeschoss aus dem Baujahr 1983. Optional kann ein drittes Zimmer im Wohnbereich abgetrennt werden (bspw. mit einer Glaswand inkl. Tür). Die Umbaumaßnahme würde vom Eigentümer übernommen werden. Das Mehrparteienhaus mit insgesamt 13 Wohneinheiten wird überwiegend von Eigentümern bewohnt und zuverlässig durch die Hausverwaltung Meßmann betreut. Der anteilige Rücklagenbetrag für die Wohnung beträgt 2.108,19 € (Stand 31.05.2024), das monatliche Hausgeld inklusive Nebenkosten und Rücklagenbildung liegt bei 325 €. Die Wohnung wurde bislang nie vermietet und präsentiert sich entsprechend in einem äußerst gepflegten Zustand.
Beim Betreten der Wohnung gelangen Sie in den einladenden Flur. Direkt angrenzend befindet sich ein Gäste-WC, welches aktuell als Garderobe/Abstellkammer genutzt wird. Der besondere runde Durchgang im Flur führt direkt zum Herzstück der Immobilie: Dem offenen Wohn-, Ess- und Kochbereich, der durch seinen außergewöhnlichen Grundriss eine besondere Wohnatmosphäre schafft. Die hochwertige Einbauküche ist mit einer Dunstabzugshaube, einem Siemens-Kochfeld sowie einem Siemens-Backofen auf Hüfthöhe ausgestattet und verbleibt in der Wohnung. Vom Essbereich aus haben Sie Zugang zum schönen, teilweise überdachten Balkon, der durch seine Begrünung sichtgeschützt ist und einen angenehmen, privaten Außenbereich bietet. In allen Wohnräumen wurde ein hochwertiger Echtholzboden verlegt, was den warmen und modernen Charakter der Wohnung zusätzlich unterstreicht. Das Tageslichtbadezimmer überzeugt mit einer passgenauen Eckbadewanne mit Duschfunktion, einem Handtuchheizkörper sowie einem integrierten Waschmaschinenanschluss und bietet damit sowohl Komfort als auch Funktionalität. Beheizt wird die Einheit wahlweise über Fußbodenheizung oder Heizkörper.
Abgerundet wird das Angebot durch ein geräumiges Kellerabteil im Untergeschoss sowie einen extralangen TG-Stellplatz (zzgl. 15.000 €).
Überzeugen Sie sich von der Immobilie in der virtuellen 360°-Tour! Diese erhalten Sie auf Anfrage von uns. Ebenso sind alle weiteren Unterlagen vollständig und perfekt vorbereitet und können jederzeit zur Verfügung gestellt werden.
Sehr gepflegte 2-Zimmer-Wohnung mit großem Balkon und TG-Stellplatz im alten Westviertel
85049 Ingolstadt
Die vollständige Adresse der Immobilie erhalten Sie vom Anbieter.
Auf Karte anzeigen
Die vollständige Adresse der Immobilie erhalten Sie vom Anbieter.
Finanzierungszertifikat
In nur zwei Minuten zu Ihrem persönlichen Finanzierungszertifkat.
Infos
| Wohnungskategorie | Erdgeschosswohnung |
|---|---|
| Wohnfläche ca. | 91 m2 |
| Bezugsfrei ab | Nach Vereinbarung |
| Zimmer | 2 |
| Schlafzimmer | 1 |
| Badezimmer | 1 |
| Garage/Stellplatz | Garage |
| Anzahl Garage/Stellplatz | 1 |
Kosten
| Kaufpreis |
379.000 € |
|---|---|
| Hausgeld |
325 € |
| Preis für Garage/Stellplatz | 15.000 € |
| Provision |
3,57 % (inkl. MwSt.) |
Finanzierungsrechner:
Kaufpreis:
600.000 €
Eigenkapital:
600.000 €
Monatliche Rate
0 €
Effektiver Jahreszins
0 %
Sollzinsbindung
10 Jahre
Bausubstanz & Energieausweis
| Baujahr | 1983 |
|---|---|
| Objektzustand | Gepflegt |
| Wesentliche Energieträger | Gas |
| Energieausweis | liegt vor |
| Energieausweistyp | Verbrauchsausweis |
| Energieverbrauchskennwert | 184,0 kWh/(m²*a) |
| Energieeffizienzklasse | F |
184,0
kWh/(m²*a)
Energieeffizienzklasse F
- A+
- A
- B
- C
- D
- E
- F
- G
- H
- 0
- 25
- 50
- 75
- 100
- 125
- 150
- 175
- 200
- 225
- >250
Beschreibung des Objekts
Ausstattung
+ Optionaler Umbau zur 3-Zimmer-Wohnung (bspw. mit einer Glaswand und Tür)
+ Inkl. moderner Einbauküche mit hochwertigen Markengeräten
+ Eleganter dunkler Echtholzparkett für ein warmes Wohnambiente
+ Komfortable Heizlösung mit wahlweise Fußbodenheizung oder Heizkörpern
+ Helles Tageslichtbad mit Eckbadewanne und integrierter Duschfunktion
+ Waschmaschinenanschluss komfortabel im Badezimmer integriert
+ Maßgefertigter Einbauschrank im Flur für Stauraum ohne Platzverlust
+ Sonniger, sichtgeschützter Südbalkon mit hoher Privatsphäre
+ Zentrale Enthärtungsanlage für weicheres Wasser
+ Zuverlässiger Hausmeisterservice für sorgenfreies Wohnen
+ Äußerst gepflegte Immobilie, ausschließlich eigengenutzt
+ Extralanger TG-Stellplatz (zzgl. 15.000 €)
Lage
Das "Alte Westviertel" ist eine Wohnlage welche mit Prestige und höchster Wohnqualität besticht. Faktisch zeichnet sich das Westviertel durch die geringste Einwohnerdichte Ingolstadts aus. Hier lauschen Sie Vogelgezwitscher mitten in der Stadt abseits allen Trubels. Alle Wege, in alle Richtungen Ingolstadts, erschließen sich von hier in kürzester Zeit. Eine Infrastruktur die seinesgleichen sucht. Alle Geschäfte des täglichen Bedarfs, die Innenstadt, der Baggersee, die Audi AG und das Shoppingcenter Westpark befinden sich in unmittelbarer Nähe. Der Spazierweg entlang der Schutter sowie Baggersee laden zu Spaziergängen oder alle Jogger zur sportiven Feierabendrunde ein. Vor allem die Auswahl an Biergärten im unmittelbaren Umfeld ist groß!
Sonstige Angaben
Die Vermittlung dieser Immobilie erfolgt exklusiv durch DR Immobilien & Partners GmbH. Mit der Anfrage bei und durch Inanspruchnahme der Dienstleistung der Firma DR Immobilien & Partners GmbH, wird ein Maklervertrag geschlossen. Vom Käufer ist eine Vermittlungsprovision in Höhe von 3,57 % (inkl. 19 % MwSt.) vom vertraglich vereinbarten Kaufpreis, nach Abschluss des notariell beurkundeten Kaufvertrages, zu zahlen. Bitte beachten Sie zusätzlich unsere AGBs.
Wir weisen darauf hin, dass die von uns weitergegebenen Objektinformationen, Unterlagen, Pläne etc. vom Verkäufer stammen. Eine Haftung für die Richtigkeit oder Vollständigkeit der Angaben übernehmen wir daher nicht. Es obliegt daher unseren Kunden, die darin enthaltenen Objektinformationen und Angaben auf ihre Richtigkeit hin zu überprüfen. Alle Immobilienangebote sind freibleibend und vorbehaltlich Irrtümer, Zwischenverkauf- und Vermietung oder sonstiger Zwischenverwertung.
Weitere Dokumente
ExposéGrundriss
Grundriss
>
>
Adresse
85049 Ingolstadt
Interessante Orte
Preis- und Lageinformationen
Preistrend für Bestandsimmobilien in Mitte