Der Preis bezieht sich auf das Haus inkl. Baunebenkosten und einschließlich Grundstück.
Die Grunderwerbsteuer fällt nur auf die Grundstückskosten an.
Herzlich willkommen bei STREIF, Ihrem zuverlässigen Partner für den Bau Ihres Traumhauses. Wir freuen uns, Ihnen unser projektiertes Einfamilienhaus vorstellen zu dürfen, das nach Ihren individuellen Wünschen und Vorstellungen gebaut wird.
Änderungen erwünscht!
Wir planen 1:1 nach Ihren Vorstellungen
Garantiert:
6 Monate Bauzeit
20 Monate Festpreis-Garantie
30 Jahre Garantie auf die Konstruktion
Alles Inklusive:
-Fundament, Bodenplatte und Erdarbeiten
-PV-Anlage mit Batteriespeicher
-Arbeitsgerüst
-Bauleitung
-Krankosten
-Baustellentoilette
-Entsorgung Bauabfälle
-Statik
-Wärmeschutznachweis mit Blower-Door Test
-freie Grundrissänderung ohne Mehrpreis
-Mehrfach ausgezeichnete Qualität
Lassen Sie sich von der Qualität und Zuverlässigkeit von STREIF überzeugen und verwirklichen Sie Ihren Traum vom eigenen Zuhause - gemeinsam mit uns!
-inkl. Grundstück-Ihre neue STREIF Doppelhaushälfte in Ahlem-Badenstedt-Davenstedt
30455 Hannover
Die vollständige Adresse der Immobilie erhalten Sie vom Anbieter.
Auf Karte anzeigen
Die vollständige Adresse der Immobilie erhalten Sie vom Anbieter.
Finanzierungszertifikat
In nur zwei Minuten zu Ihrem persönlichen Finanzierungszertifkat.
Infos
| Haustyp | Doppelhaushaelfte |
|---|---|
| Etagenzahl | 2 |
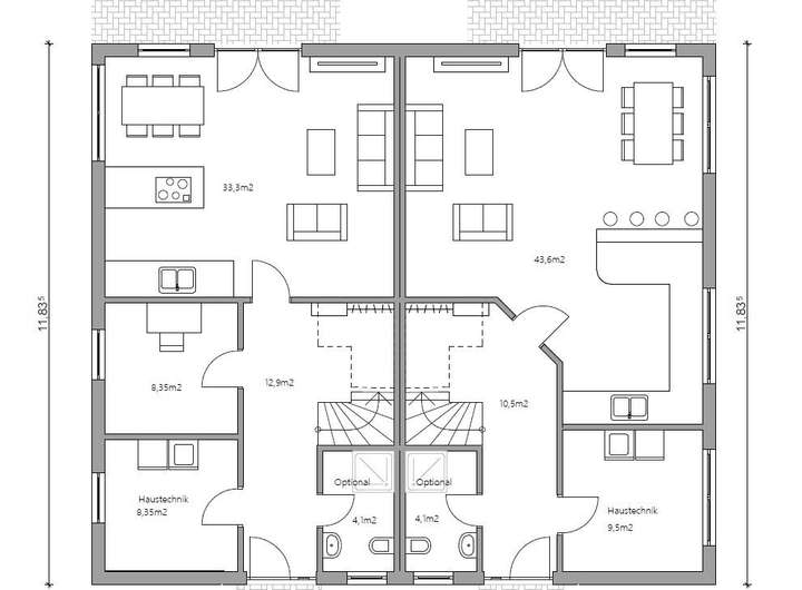
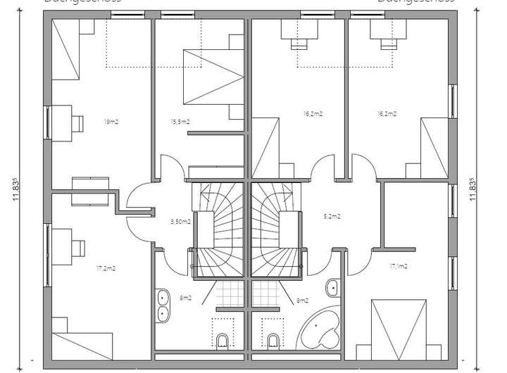
| Wohnfläche ca. | 135 m2 |
| Grundstücksfläche | 430 m2 |
| Zimmer | 5 |
| Schlafzimmer | 3 |
| Badezimmer | 1 |
Kosten
| Kaufpreis |
638.500 € |
|---|
Finanzierungsrechner:
Kaufpreis:
600.000 €
Eigenkapital:
600.000 €
Monatliche Rate
0 €
Effektiver Jahreszins
0 %
Sollzinsbindung
10 Jahre
Bausubstanz & Energieausweis
| Baujahr | 2026 |
|---|---|
| Bauphase | Haus in Planung (projektiert) |
| Objektzustand | Erstbezug |
| Qualität der Austattung | Gehoben |
| Heizungsart | Wärmepumpe |
Beschreibung des Objekts
Ausstattung
STREIF-Häuser sind Energiesparhäuser. Die Außenwände im Passiv-Haus-Standard und eine sparsame Heiztechnik mit integrierter Wohnraumlüftung und Wärmerückgewinnung, garantieren einen geringen Energieverbrauch und ein fantastisches Raumklima, das insbesondere Allergiker aufatmen lässt.
STREIF Leistungen sind MEHR WERT - schon im Grundpreis enthalten!
- 20-monatige Festpreisgarantie
- Energieeffizienzhaus KfW 40+ im Standard
- Inkl. Thermo- Fundamentplatte
- Inkl. STREIF-Luft-Wasser-Wärmepumpe mit integrierter
Lüftungsanlage mit Wärmerückgewinnung
- Inkl. Haustür von KERA und Fenster von Porta/Kömmerling
- Inkl. Massivholz-Geschosstreppe aus eigener Produktion
- Inkl. Sanitärobjekte von Markenherstellern
- Inkl. Elektroinstallation
- Inkl. Baubetreuung u.v.m.
Die hohe Wertigkeit und Langlebigkeit eines STREIF-Energiespar-Hauses wird durch zahlreiche Auszeichnungen, Qualitäts- und Gütesiegel unabhängiger Institute und Verbände dokumentiert.
Lage
Ein wunderschönes ca. 430 m² großes Grundstück
in ruhiger und dennoch zentraler Lage von Ahlem-Badenstedt-Davenstedt wartet auf neue Eigentümer mit hohen Ansprüchen.
Vor Ort gibt es drei Kindergärten, die sich alle etwa einen Kilometer entfernt befinden.
Die Grundschule Badenstedt ist nur knapp einen Kilometer weit weg. Weiterführende Schulen sind
beispielsweise die IGS Badenstedt und die IGS Linden in rund 1 bzw. 3,5 Kilometer Entfernung sowie
zahlreiche Oberschulen und Gymnasien in der ganzen Stadt.
Mehrere Buslinien verbinden Sie mit verschiedenen Stadtteilen und dem Zentrum von Hannover. Sie
erreichen diese ebenfalls fußläufig. Mit der Stadtbahnlinie 9 gelangen Sie schnell in die City von
Hannover.
Sonstige Angaben
Als Effizienzhaus 40+ mit KfW Förderprogrammen günstig finanzieren?
Wir beraten Sie gerne.
Adresse
30455 Hannover
Interessante Orte
Preis- und Lageinformationen
Preistrend für Bestandsimmobilien in Davenstedt