Das liebevoll sanierte Haus aus dem Jahre 1900 liegt in der Nähe des Seehafens von Wismar.
Es besteht aus einem Vorderhaus (4 Wohnungen)und einem begrünten Innenhof.
Das Stadtzentrum und die Flaniermeile des Hafens sind fußläufig in wenigen Minuten zu erreichen.
Dort befinden sich Einrichtungen des täglichen Bedarfs, Kitas und Schule in der Nähe; Arztpraxen, sowie Apotheken sind ebenfalls vorhanden.
Wismar verfügt über eine gute Infrastruktur und liegt direkt an der Bundesautobahn 20.
Strand und Meer sind ca. 15 Minuten entfernt. - Insel Poel (!)
Finanzierungszertifikat
In nur zwei Minuten zu Ihrem persönlichen Finanzierungszertifkat.
Infos
| Haustyp | Mehrfamilienhaus |
|---|---|
| Etagenzahl | 3 |
| Wohnfläche ca. | 181 m2 |
| Grundstücksfläche | 152 m2 |
| Bezugsfrei ab | nach Vereinbarung |
| Zimmer | 8 |
| Schlafzimmer | 4 |
Kosten
| Kaufpreis |
365.000 € |
|---|---|
| Provision |
7,14 % inkl. MwSt. |
Finanzierungsrechner:
Kaufpreis:
600.000 €
Eigenkapital:
600.000 €
Monatliche Rate
0 €
Effektiver Jahreszins
0 %
Sollzinsbindung
10 Jahre
Bausubstanz & Energieausweis
| Baujahr | 1900 |
|---|---|
| Objektzustand | Saniert |
| Qualität der Austattung | Normal |
| Heizungsart | Zentralheizung |
| Wesentliche Energieträger | Erdgas leicht |
| Energieausweis | liegt vor |
| Energieausweistyp | Bedarfsausweis |
| Energieverbrauchskennwert | 174,5 kWh/(m²*a) |
| Energieeffizienzklasse | F |
174,5
kWh/(m²*a)
Energieeffizienzklasse F
- A+
- A
- B
- C
- D
- E
- F
- G
- H
- 0
- 25
- 50
- 75
- 100
- 125
- 150
- 175
- 200
- 225
- >250
Beschreibung des Objekts
Ausstattung
Zum Verkauf steht ein saniertes Mehrfamilienhaus mit insgesamt vier möblierten Wohnungen.
Ausstattung / Merkmale:
- 211,00 m² Gesamtfläche NGF
- 253,68 m² BGF
- 181,45 m² reine Wohnfläche
- 152,00 m² Grundstücksfläche
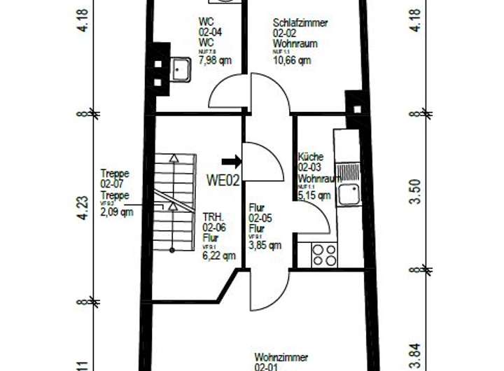
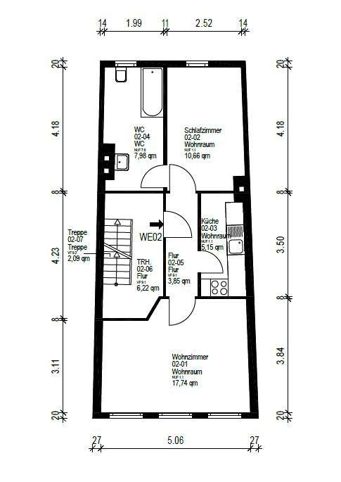
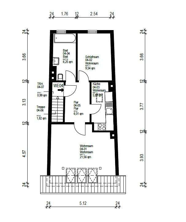
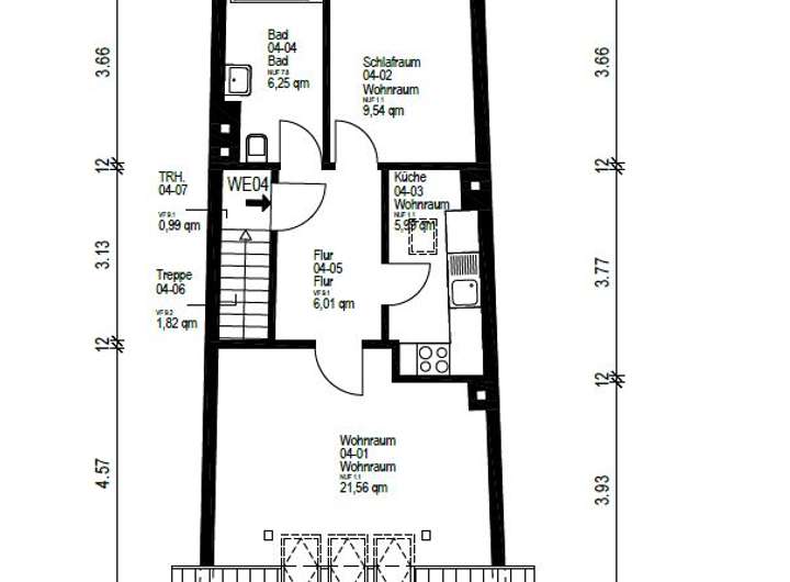
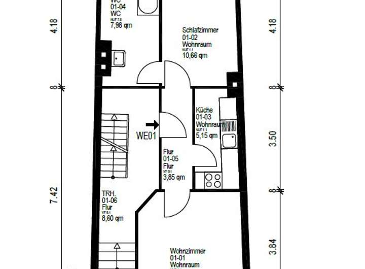
- Insgesamt 4 Wohneinheiten inklusive ausgebautem Dachgeschoss:
1. Wohnung: 2-Zimmerwohnung, 1, EG, ca. 41,34m² Wohnfläche
2. Wohnung: 2-Zimmerwohnung, 1. OG, ca. 45,38 m² Wohnfläche
3. Wohnung: 2-Zimmerwohnung, 2. OG, ca. 45,38 m² Wohnfläche
4. Wohnung: 2-Zimmerwohnung, DG, ca. 49,35 m² Wohnfläche
- Alle Wohnungen sind möbliert und mit hochwertigen Einbauküchen ausgestattet
- Zur Einrichtung gehören komfortable Boxspringbetten, Sofas, Esstische und moderne Smart-TV´S (Samsung)
- Die Bäder haben Badewannen, Fenster und WM-Anschlüsse
- Die Wohnungen wurden teilweise modernisiert und mit neuem Laminat und neuen Fliesen ausgestattet
- Neu installierte Gegensprechanlage
- Der Hausflur wurde 2020 saniert - neuer Fußböden, Farbe und das Holzgeländer aufgearbeitet
- Die Heizung ist aus dem Jahr 1998
- Alle Wohnungen sind als Ferienwohnungen in der Vermarktung.
- Der jährliche Umsatz liegt bei ca. 60.000 Euro.
- Wohngeld (Strom, Gas, Wasser): ca. 500,00€ / mtl.
Baujahr: 1900
Heizungsart: Zentralheizung
Wesentliche Energieträger: Erdgas
Energieausweistyp: Bedarfsausweis
Energieeffizienzklasse: F
Energieverbrauchskennwert: 174,5 kWh/(m²*a)
E-Ausweis ist anbei!
Sonstige Angaben
Besichtigungstermine können Sie wie folgt anfragen:
Daniel Kerem Mobil: 0163 / 23 87 580
mail: dkerem@schoenlife.de
Weitere Dokumente
Energie- Energieausweis_GEG...Grundriss
Whg1
>
>
Whg 2
>
>
Whg 3
>
>
Whg 4
>
>
Adresse
Poeler Straße 36, 23970 Wismar
Interessante Orte
Preis- und Lageinformationen
Preistrend für Bestandsimmobilien in Wismar-Ost