Dieses stilvolle, freistehende Haus befindet sich am Ende einer kleinen Anliegerstraße und an einem Wendeplatz, auf dem Kinder noch spielen können. Hier kommt man in den Genuss eines familienfreundlichen Umfelds, das zudem viel Platz bietet.
Das im Jahr 2002 errichtete Haus ist ein Weton-Massivhaus und erfüllt die Voraussetzungen eines Niedrigenergiehauses nach GEG. Es überzeugt durch helle, lichtdurchflutete Räume, die modernes Wohnen mit hochwertigen und langlebigen Materialien verbinden.
Vom großzügigen Entrée aus führt der Blick ins helle Wohnzimmer mit der Südwest-Terrasse. Ein Kaminofen sorgt im Winter für eine besonders gemütliche Atmosphäre. Die benachbarte Küche ist mit hellen Fronten und hochwertigen Elektrogeräten ausgestattet. Hier ist auch ausreichend Platz für einen Esstisch. Große Fensterfronten bieten einen schönen Blick in den geschützten Garten. Außerdem gibt es im Erdgeschoss ein Gäste-WC und ein Arbeitszimmer.
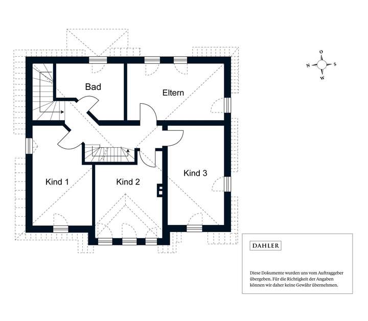
Im Obergeschoss stehen ein großes Elternschlafzimmer zur Verfügung sowie drei Kinderzimmer und ein großzügiges Badezimmer mit Badewanne, Dusche und Doppelwaschbecken.
Das ausgebaute Dachstudio ist mit einer Tür abgegrenzt - ein ideales Homeoffice oder Hobbyraum. Von hier aus hat man einen wunderschönen Ausblick auf Königstein.
Im Gartengeschoss steht ein Gästebereich mit Duschbad zur Verfügung. Diese ca. 23 m² sind sehr gut wohnlich nutzbar, aber bisher nicht in der Wohnfläche enthalten. Zusätzlich stehen diverse Kellerräume zur Verfügung, die viel Stauraum bieten sowie ausreichend Platz für Waschmaschine und Trockner.
Geschmackvolles freistehendes Familienhaus in ruhiger Anliegerstraße
61462 Königstein im Taunus
Die vollständige Adresse der Immobilie erhalten Sie vom Anbieter.
Auf Karte anzeigen
Die vollständige Adresse der Immobilie erhalten Sie vom Anbieter.
Finanzierungszertifikat
In nur zwei Minuten zu Ihrem persönlichen Finanzierungszertifkat.
Infos
| Haustyp | Einfamilienhaus |
|---|---|
| Etagenzahl | 3 |
| Wohnfläche ca. | 220 m2 |
| Nutzfläche | 76,68 m2 |
| Grundstücksfläche | 401 m2 |
| Bezugsfrei ab | 1.10.25 |
| Zimmer | 8 |
| Schlafzimmer | 6 |
| Badezimmer | 2 |
| Garage/Stellplatz | Carport |
| Anzahl Garage/Stellplatz | 1 |
Kosten
| Kaufpreis |
1.150.000 € |
|---|---|
| Provision |
2,5 % zzgl. gesetzlicher MwSt. von aktuell 19 % bezogen auf den Kaufpreis |
Finanzierungsrechner:
Kaufpreis:
600.000 €
Eigenkapital:
600.000 €
Monatliche Rate
0 €
Effektiver Jahreszins
0 %
Sollzinsbindung
10 Jahre
Bausubstanz & Energieausweis
| Baujahr | 2002 |
|---|---|
| Objektzustand | Gepflegt |
| Qualität der Austattung | Gehoben |
| Heizungsart | Fußbodenheizung |
| Wesentliche Energieträger | Gas |
| Energieausweis | liegt vor |
| Energieausweistyp | Verbrauchsausweis |
| Energieverbrauchskennwert | 73,5 kWh/(m²*a) |
| Energieeffizienzklasse | B |
73,5
kWh/(m²*a)
Energieeffizienzklasse B
- A+
- A
- B
- C
- D
- E
- F
- G
- H
- 0
- 25
- 50
- 75
- 100
- 125
- 150
- 175
- 200
- 225
- >250
Beschreibung des Objekts
Ausstattung
_ sieben Zimmer
_ fünf Schlafzimmer
_ Einbauküche von Küchen Krampe mit Elektrogeräten von Bosch / Siemens
_ zwei Tageslichtbäder, eins mit Doppelwaschbecken, Dusche und Badewanne
_ Badobjekte und Markenarmaturen u.a. von Villeroy & Boch
_ Granitboden im Erdgeschoss, im Ober- und Dachgeschoss sowie Untergeschoss Laminat bzw. Fliesen
_ Fußbodenheizung, in den Schlafräumen Heizkörper
_ neue Gasbrennwertheizung von 2024 (Viessmann Vitodens 200)
_ Kaminofen
_ Kunststofffenster mit Wärmeschutz-Doppelglas und abschließbaren Griffen, großenteils bodentief
_ Rollläden, teils mit Elektroantrieb
_ Deckeneinbaustrahler im Erdgeschoss
_ Alarmanlage
_ zwei Terrassen mit elektrischen Markisen
_ Cat. 4 Verkabelung
_ Gartenbeleuchtung und Wasserspiel
_ Garage und Carport
Lage
_ Bevorzugter Wohnort im Taunus und Rhein-Main-Gebiet
_ Königsteiner Stadtzentrum mit Einkaufsmöglichkeiten, Arztpraxen, Restaurants, Cafés, sowie Kurpark, Burgruine und Woogtal
_ Bushaltestellen und K-Bahn nach Frankfurt fußläufig in 5 Minute zu erreichen
_ Private, konfessionelle und bilinguale Kindergärten
_ Staatliche Grundschule mit Betreuung und Hort sowie eine bilinguale Grundschule
_ Ein staatliches und zwei private Gymnasien schnell mit Bahn oder Fahrrad erreichbar
_ International School in Oberursel befindet sich in nur 20 Minuten Autoentfernung, gute Busverbindung
_ Weitläufige Wiesen und Wälder laden zu sportlicher Betätigung ein
Grundriss
Erdgeschoss
>
>
Obergeschoss
>
>
Dachgeschoss
>
>
Gartengeschoss
>
>
Adresse
61462 Königstein im Taunus
Interessante Orte
Preis- und Lageinformationen
Preistrend für Bestandsimmobilien in Königstein im Taunus