Herzlich willkommen im beliebten Ortsteil Grafschaft in Schortens.
Ursprünglich erbaut im Jahr 1959, wurde das Haus 1992 umfassend saniert inkl. Erneuerung der Bäder und Sanitäranlagen, der Dämmung, der Iso-Fenster, der Böden und Innentüren. Im Jahr 2024 wurde fachmännisch eine Drainage für über 20.000 Euro verlegt.
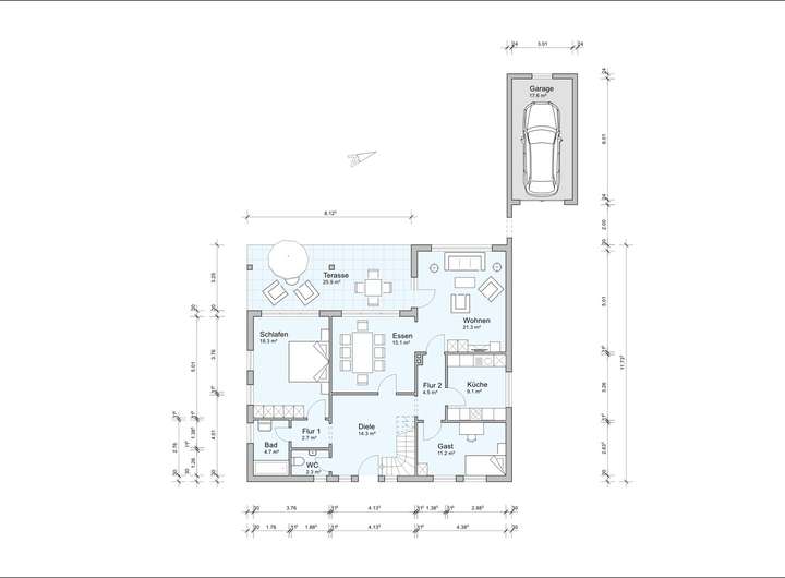
Das schöne freistehende Einfamilienhaus bietet Ihnen die Chance, es nach Ihren Wünschen und Bedürfnissen zu modernisieren und zu gestalten. Die Grundsubstanz ist dabei gut erhalten. Hochwertiger Parkettboden kann dabei geschliffen und neu lackiert werden. Mit einem zusätzlichen großzügigem Ausbaupotenzial von 41 qm Bodenraum im 1. OG lässt sich die Gesamt-Wohnfläche auf üppige ca. 180 qm erweitern. Der Raum grenzt direkt an die anderen Räumlichkeiten an. Der neue Wohnraum könnte beispielsweise ein zusätzliches Schlaf- oder Kinderzimmer, ein Arbeitszimmer oder auch eine gemütlicher Hobbyraum werden.
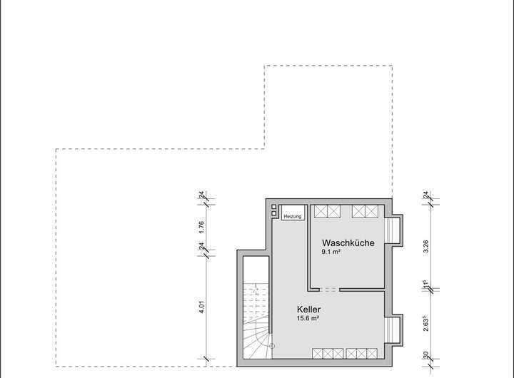
Das Objekt verfügt über eine Garage mit angefügtem Schuppen und ist teilunterkellert. Im Keller ist weitere Abstellfläche vorhanden und ist auch die erst in 2018 erneuerte Gas-Therme untergebracht.
Aus unserer Sicht lässt sich mit geringem Aufwand das Haus möglicherweise auch aufteilen in ein Wohnbereich im Erdgeschoss und einer Einliegerwohnung im Obergeschoss für eine weitere Familien-Generation oder auch Vermietung.
Das mit 1.265 m² fast schon außergewöhnlich große Grundstück und der herrlich eingewachsene Garten rund um das Haus lädt zum Entspannen und Verweilen ein. Hier können Sie Ihre eigenen Gartenideen verwirklichen, ob als Spielbereich für Kinder, als grünes Refugium oder als Ort für gesellige Grillabende mit Freunden und Familie.
Das große Grundstück bietet zudem Potenzial für eine mögliche Grundstücksteilung mit der Möglichkeit für eine zusätzliche Hinterbebauung. Dieses mögliche Vorhaben ist noch baurechtlich zu prüfen.
Fazit:
Dieses Einfamilienhaus in Grafschaft-Schortens bietet Ihnen die perfekte Gelegenheit, ein individuelles Zuhause zu schaffen. Mit einem großzügigen Garten und dem Ausbaupotenzial im Inneren können Sie Ihre Wohnträume verwirklichen. Lassen Sie Ihrer Kreativität freien Lauf und gestalten Sie dieses Haus zu Ihrem persönlichen Rückzugsort!
Tolles Anwesen in Grafschaft mit Potenzial auf 180 m² Wohnfläche
26419 Schortens
Die vollständige Adresse der Immobilie erhalten Sie vom Anbieter.
Auf Karte anzeigen
Die vollständige Adresse der Immobilie erhalten Sie vom Anbieter.
Finanzierungszertifikat
In nur zwei Minuten zu Ihrem persönlichen Finanzierungszertifkat.
Infos
| Haustyp | Einfamilienhaus |
|---|---|
| Etagenzahl | 2 |
| Wohnfläche ca. | 136 m2 |
| Nutzfläche | 74 m2 |
| Grundstücksfläche | 1.265 m2 |
| Zimmer | 6 |
| Schlafzimmer | 3 |
| Badezimmer | 2 |
| Garage/Stellplatz | Garage |
| Anzahl Garage/Stellplatz | 1 |
Kosten
| Kaufpreis |
329.000 € |
|---|---|
| Provision |
Käuferprovision beträgt 3,57 % (inkl. MwSt.) des beurkundeten Kaufpreises |
Finanzierungsrechner:
Kaufpreis:
600.000 €
Eigenkapital:
600.000 €
Monatliche Rate
0 €
Effektiver Jahreszins
0 %
Sollzinsbindung
10 Jahre
Bausubstanz & Energieausweis
| Baujahr | 1959 |
|---|---|
| Letzte Sanierung | 2024 |
| Bauphase | Haus fertig gestellt |
| Objektzustand | Gepflegt |
| Qualität der Austattung | Normal |
| Heizungsart | Zentralheizung |
| Wesentliche Energieträger | Erdgas leicht |
| Energieausweis | liegt vor |
| Energieausweistyp | Bedarfsausweis |
| Energieverbrauchskennwert | 236,5 kWh/(m²*a) |
| Energieeffizienzklasse | G |
236,5
kWh/(m²*a)
Energieeffizienzklasse G
- A+
- A
- B
- C
- D
- E
- F
- G
- H
- 0
- 25
- 50
- 75
- 100
- 125
- 150
- 175
- 200
- 225
- >250
Beschreibung des Objekts
Ausstattung
Weitere Besonderheiten und Highlights:
• ruhige und beliebte Lage in Grafschaft
• ca. 136 m² Wohnfläche
• plus 41 m² Ausbaupotenzial
• großes Grundstück und großer Garten
• Garage
• überdachte Terrasse = ca. 26 m²
• Balkon im Obergeschoss = ca. 19 m²
• 2024 Drainage ums Haus und Kellersanierung
• 2018 Erneuerung und Austausch Gas-Therme
• 1992 Sanierung Bäder, Fenster, Dämmung, Böden
• 1993 umfangreiches Gutachten
• Option für eine Einliegerwohnung und auch einer Grundstücksteilung
Lage
Lagebeschreibung für Grafschaft, Schortens
Die Immobilie befindet sich im charmanten Ort Grafschaft, einem Stadtteil von Schortens, der für seine ruhige und familienfreundliche Atmosphäre bekannt ist. Diese attraktive Lage vereint ländlichen Charme mit einer hervorragenden Anbindung an die umliegenden Städte und bietet somit eine hohe Lebensqualität.
Grafschaft ist von einer malerischen Landschaft umgeben, die zahlreiche Möglichkeiten für Outdoor-Aktivitäten bietet. Ob Spaziergänge, Radfahren oder Ausflüge in die Natur – die Umgebung lädt dazu ein, die Freizeit aktiv zu gestalten und die frische Luft zu genießen.
Die Infrastruktur in Grafschaft ist gut ausgebaut. Einkaufsmöglichkeiten für den täglichen Bedarf, wie Supermärkte, Bäckereien und Fachgeschäfte, sind in der Nähe und bequem erreichbar. Auch Schulen und Kindergärten befinden sich in der Umgebung, was die Lage besonders attraktiv für Familien mit Kindern macht.
Die Anbindung an den öffentlichen Nahverkehr ist gegeben, sodass Sie die umliegenden Städte und Regionen problemlos erreichen können. Zudem sind wichtige Verkehrsstraßen in unmittelbarer Nähe, die eine schnelle Anreise mit dem Auto ermöglichen.
Grafschaft zeichnet sich durch eine freundliche und hilfsbereite Nachbarschaft aus. Hier erleben Sie ein harmonisches Miteinander und eine hohe Lebensqualität, die das Wohnen in dieser Region besonders angenehm macht. Regelmäßige Veranstaltungen und Aktivitäten fördern den Zusammenhalt in der Gemeinschaft.
Die Lage in Grafschaft, Schortens, bietet Ihnen die Möglichkeit, in einer ruhigen und naturnahen Umgebung zu leben, während Sie gleichzeitig von einer guten Infrastruktur und Anbindung profitieren. Dieses Umfeld ist ideal für Familien, Paare und alle, die die Vorzüge des ländlichen Lebens schätzen.
Sonstige Angaben
GELDWÄSCHE: Als Immobilienmaklerunternehmen ist die von Poll Immobilien GmbH nach § 2 Abs. 1 Nr. 14 und § 11 Abs. 1, 2 Geldwäschegesetz (GwG) dazu verpflichtet, bei der Begründung einer Geschäftsbeziehung die Identität des Vertragspartners festzustellen und zu überprüfen, bzw. sobald ein ernsthaftes Interesse an der Durchführung des Immobilienkaufvertrages besteht. Hierzu ist es erforderlich, dass wir nach § 11 Abs. 4 GwG die relevanten Daten Ihres Personalausweises festhalten (wenn Sie als natürliche Person handeln) – beispielsweise mittels einer Kopie. Bei einer juristischen Person benötigen wir eine Kopie des Handelsregisterauszugs, aus welchem der wirtschaftlich Berechtigte hervorgeht. Das Geldwäschegesetz sieht vor, dass der Makler die Kopien bzw. Unterlagen fünf Jahre aufbewahren muss. Als unser Vertragspartner haben Sie auch eine Mitwirkungspflicht nach § 11 Abs. 6 GwG.
HAFTUNG: Wir weisen darauf hin, dass die von uns weitergegebenen Objektinformationen, Unterlagen, Pläne etc. vom Verkäufer bzw. Vermieter stammen. Eine Haftung für die Richtigkeit oder Vollständigkeit der Angaben übernehmen wir daher nicht. Es obliegt daher unseren Kunden, die darin enthaltenen Objektinformationen und Angaben auf ihre Richtigkeit hin zu überprüfen. Alle Immobilienangebote sind freibleibend und vorbehaltlich Irrtümer, Zwischenverkauf- und Vermietung oder sonstiger Zwischenverwertung.
UNSER SERVICE FÜR SIE ALS EIGENTÜMER:
Planen Sie den Verkauf oder die Vermietung Ihrer Immobilie, so ist es für Sie wichtig, deren Marktwert zu kennen. Lassen Sie kostenfrei und unverbindlich den aktuellen Wert Ihrer Immobilie professionell durch einen unserer Immobilienspezialisten einschätzen. Unser bundesweites und internationales Netzwerk ermöglicht es uns, Verkäufer bzw. Vermieter und Interessenten bestmöglich zusammenzuführen.
Adresse
26419 Schortens
Interessante Orte
Preis- und Lageinformationen
Preistrend für Bestandsimmobilien in Schortens