So fühlt sich Zuhause an: Das CHANCE 2 verbindet eine moderne Architektur mit einem Grundriss, der für das Leben junger Familien gedacht ist. Lichtdurchflutete Räume, viel Platz zum Zusammensein und gemütliche Bereiche zum Abschalten - hier stimmt einfach das Gesamtpaket. Und das Beste: Unsere Sonderaktion macht den Traum vom Eigenheim jetzt noch greifbarer.
Die Sonderaktion Chance eröffnet neue Möglichkeiten ins Eigenheim
84384 Wittibreut
Die vollständige Adresse der Immobilie erhalten Sie vom Anbieter.
Auf Karte anzeigen
Die vollständige Adresse der Immobilie erhalten Sie vom Anbieter.
Finanzierungszertifikat
In nur zwei Minuten zu Ihrem persönlichen Finanzierungszertifkat.
Infos
| Etagenzahl | 2 |
|---|---|
| Wohnfläche ca. | 173 m2 |
| Grundstücksfläche | 1.005 m2 |
| Zimmer | 5 |
| Schlafzimmer | 4 |
| Badezimmer | 1 |
Kosten
| Kaufpreis |
436.119 € |
|---|
Finanzierungsrechner:
Kaufpreis:
600.000 €
Eigenkapital:
600.000 €
Monatliche Rate
0 €
Effektiver Jahreszins
0 %
Sollzinsbindung
10 Jahre
Bausubstanz & Energieausweis
| Baujahr | unbekannt |
|---|---|
| Bauphase | Haus in Planung (projektiert) |
| Qualität der Austattung | Gehoben |
| Heizungsart | Wärmepumpe |
Beschreibung des Objekts
Ausstattung
Im Preis enthalten:
Kaufpreis für aktuell verfügbaren Bauplatz
Dein tolles Energieeffizienzhaus in KfW55 Standard (auf
Wunsch in KfW 40+) als Ausbauhaus
Architektenleistung: Entwurfsplanung und Erstellung der
Bauanträge
Planänderungspauschale für freie Grundrissanpassung
Vermessungsleistung des Bauplatzes zur Erstellung des
Bauantrags
Bodengutachten von unabhängigem Gutachter
Moderne Wärmepumpe von ELCO, Buderus oder Tecalor
Sicherheitshaustüre mit Mehrfachverriegelung
3-fach verglaste Fenster im ganzen Haus
Dacheindeckung mit Betondachziegel
Dachrinnen und Fallrohre aus Titan-Zink
Aluminiumrolläden an allen Fenstern
Material für den Innenausbau: Dämm- und
Beplankungspaket, Spachtelmasse, Innenwandfarbe usw.
Gesamtes Innenaustattungspaket (Türen, Sanitärobjekte,
Bodenbeläge uvm.)
Blower Door Test und Erstellung des Energieausweises
Lieferung und Hausmontage inkl. Baukran
Bau-Sicherheitspaket (R+V Versicherungspaket):
inkl. Bauleistungsversicherung
inkl. Bauherren-Haftpflichtversicherung
inkl. Wohngebäudeversicherung
inkl. Feuer-Rohbauversicherung
inkl. Arbeitslosenversicherung
zzgl. Baunebenkosten
zzgl. Kaufnebenkosten des Grundstücks
Selbstverständlich bieten wir Ihnen das Haus in verschiedenen Ausbaustufen an.
Vom AUSBAUHAUS bis hin zum fertigen Objekt, stehen alle Möglichkeiten zur Verfügung.
Wir bieten Ihnen eine große Auswahl an Einfamilienhäusern mit einer Wohnfläche zwischen 114m² und 275m². Vom klassischen Haus für Paare oder kleine Familien über praktische Stadthäuser mit schmalem Schnitt bis hin zur großen Stadtvilla oder modernem Bungalow ist alles dabei.
Dabei können Sie unsere Fertighäuser ganz nach Ihren eigenen Wünschen gestalten. Sowohl die Dachform (Satteldach, Walmdach, Flachdach oder Pultdach) als auch zusätzliche Bauteile wie Erker, Balkon oder Giebel sind frei wählbar.
Lage
Bitte haben Sie Verständnis dafür, dass wir keine direkten Gespräche über Grundstücke führen. Wir bieten stattdessen einen umfassenden und kostenfreien Grundstücksservice für alle Hausinteressenten an. Wir möchten betonen, dass wir keine Grundstücksmakler sind, sondern vielmehr daran interessiert sind, Ihnen bei der Suche nach einem geeigneten Grundstück zu helfen.
Unser Grundstücksservice ist darauf ausgerichtet, Ihnen bestmöglich bei Ihrer Suche zu unterstützen. Wir halten ständig aktuelle Grundstücksangebote bereit, die wir je nach Ihren individuellen Wünschen und Ihrem Budget weiterleiten können. Dies ermöglicht es Ihnen, aus einer Auswahl von Grundstücken dasjenige auszuwählen, das am besten zu Ihren Vorstellungen passt.
Bitte zögern Sie nicht, uns für ein persönliches Gespräch zu kontaktieren, um herauszufinden, wie unser Grundstücksservice Ihnen helfen kann. Wir sind bestrebt, Ihnen dabei zu helfen, das ideale Grundstück für Ihr Traumhaus zu finden, und stehen Ihnen gerne mit unserem Fachwissen und unserer Erfahrung zur Seite.
Sonstige Angaben
allkauf ist die ideale Wahl für all jene, die sich aktiv mit Eigenleistung an ihrem Haustraumbau beteiligen möchten. Wir überzeugen mit innovativer Architektur und einem breiten Angebot unterschiedlicher Häuser sowie einzigartiger Raumaufteilungen - alles in außerordentlicher Qualität.
Ganz gleich ob Einfamilienhaus mit Satteldach oder Pultdach in 1,5 Geschossen oder zwei Vollgeschosse mit Satteldach oder Walmdach - die Häuser unserer HOME-Serie passen sich flexibel Ihren Vorstellungen an und bieten das perfekte Traumhaus für jeden Geschmack.
Unsere Fertighäuser können durch den Einsatz individueller Anbauteile weiter personalisiert werden - dies erhöht nicht nur den optischen Reiz Ihres Hauses, sondern erfüllt auch praktische Zwecke für Ihr Wohlbefinden.
Allkauf steht für maximale Sicherheit, kurze Lieferzeiten und garantierte Fertigstellung. Träumen vom Eigenheim sind oft begleitet von Unsicherheiten bezüglich Verzögerungen oder unerwarteten Kosten - doch nicht bei allkauf! Hier erwarten Sie kurze Lieferzeiten sowie Festpreis-, Liefer-, Sicherheits-, und Fertigstellungsgarantien.
Weitere Dokumente
Siegel ProduktqualitätInstitut Preis-Leistungsverhäl
TÜV Zertifikat
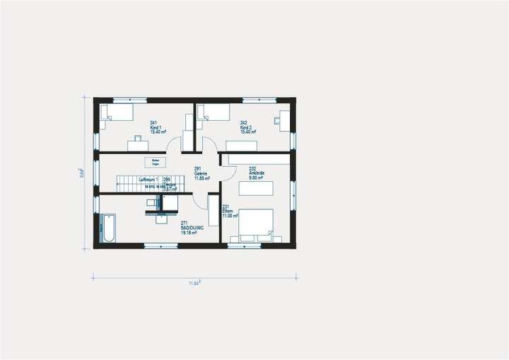
Grundriss
Grundriss
>
>
Grundriss
>
>
Adresse
84384 Wittibreut
Interessante Orte
Preis- und Lageinformationen
Preistrend für Bestandsimmobilien in Wittibreut