Willkommen in einem Zuhause, das Ruhe, Komfort und Substanz vereint. Auf einem wunderschönen und großzügigen Grundstück mit 651 m² liegt dieses gepflegte Einfamilienhaus in verkehrsberuhigter Lage in Hamburg-Öjendorf. Ideal für Paare oder eine junge kleine Familie, die Wert auf Wohnqualität und ein entspanntes Umfeld legen.
Ca. 92 m² Wohnfläche verteilen sich auf drei gut geschnittene Zimmer. Besonders angenehm ist der helle Wintergarten mit Blick in den Garten. Ein Ort, der zu jeder Jahreszeit genutzt wird. Die moderne Einbauküche fügt sich harmonisch ein und schafft einen offenen, alltagstauglichen Mittelpunkt.
Die Immobilie wurde laufend modernisiert. Wärmedämmung und isolierverglaste Kunststofffenster stammen aus den letzten Jahren, überwiegend mit elektrischen Rollläden. Das Badezimmer wurde 2023 vollständig erneuert und verfügt über eine Fußbodenheizung. Ein Nebengebäude mit Hauswirtschaftsraum und Werkstatt bietet zusätzlichen Stauraum und Flexibilität. Abgerundet wird das Angebot durch eine geschlossene Carport-Garage mit elektrischem Sektionaltor.
Ein ruhiges Grundstück, ein gepflegtes Haus und eine familienfreundliche Umgebung mit guter Infrastruktur. Eine Immobilie, die langfristig überzeugt. Gerne stellen wir Ihnen dieses Zuhause persönlich vor.
Charmantes EFH. mit Wintergarten in ruhiger Lage mit großem Garten in HH-Öjendorf. GELEGENHEIT!
22119 Hamburg
Die vollständige Adresse der Immobilie erhalten Sie vom Anbieter.
Auf Karte anzeigen
Die vollständige Adresse der Immobilie erhalten Sie vom Anbieter.
Finanzierungszertifikat
In nur zwei Minuten zu Ihrem persönlichen Finanzierungszertifkat.
Infos
| Haustyp | Einfamilienhaus |
|---|---|
| Etagenzahl | 1 |
| Wohnfläche ca. | 72 m2 |
| Nutzfläche | 20 m2 |
| Grundstücksfläche | 651 m2 |
| Bezugsfrei ab | SOFORT |
| Zimmer | 3 |
| Schlafzimmer | 2 |
| Badezimmer | 1 |
| Anzahl Garage/Stellplatz | 3 |
Kosten
| Kaufpreis |
459.000 € |
|---|---|
| Provision | Nein |
Finanzierungsrechner:
Kaufpreis:
600.000 €
Eigenkapital:
600.000 €
Monatliche Rate
0 €
Effektiver Jahreszins
0 %
Sollzinsbindung
10 Jahre
Bausubstanz & Energieausweis
| Baujahr | 1961 |
|---|---|
| Letzte Sanierung | 2023 |
| Bauphase | Haus fertig gestellt |
| Objektzustand | Modernisiert |
| Qualität der Austattung | Normal |
| Heizungsart | Zentralheizung |
| Wesentliche Energieträger | Gas |
| Energieausweis | liegt vor |
| Energieausweistyp | Bedarfsausweis |
| Energieverbrauchskennwert | 147,8 kWh/(m²*a) |
| Energieeffizienzklasse | E |
147,8
kWh/(m²*a)
Energieeffizienzklasse E
- A+
- A
- B
- C
- D
- E
- F
- G
- H
- 0
- 25
- 50
- 75
- 100
- 125
- 150
- 175
- 200
- 225
- >250
Beschreibung des Objekts
Ausstattung
• Großzügiges Grundstück mit ca. 651 m² in ruhiger, verkehrsberuhigter Lage in Hamburg-Öjendorf
• Ca. 92 m² Wohnfläche, optimal geschnittene 3 Zimmer
• Moderne Einbauküche mit hochwertigen Geräten
• Lichtdurchfluteter Wintergarten mit Blick in den Garten
• Separates Nebengebäude mit Hauswirtschaftsraum und Werkstatt
• Vor rund 10 Jahren gedämmt, Kunststofffenster mit Isolierverglasung, überwiegend elektrische Rollläden
• Badezimmer 2023 vollständig erneuert, inklusive Fußbodenheizung
• Geschlossene Carport-Garage mit elektrischem Sektionaltor
• Laufend modernisiert, technisch zeitgemäßer Zustand
• Ruhige, familienfreundliche Lage mit guter Infrastruktur und Nahversorgung
Ein gepflegtes Zuhause mit viel Grundstück, Substanz und Wohnqualität. Weitere Details und Unterlagen erhalten Sie im ausführlichen Exposé.
Lage
Hamburg, als zweitgrößte Stadt Deutschlands, besticht durch ihre maritime Atmosphäre, ihre kulturelle Vielfalt und ein breites Angebot an Freizeitmöglichkeiten. Mit einer ausgezeichneten Infrastruktur, renommierten Bildungs- und Kultureinrichtungen sowie der Nähe zur Nord- und Ostsee bietet die Hansestadt eine hohe Lebensqualität in einem dynamischen urbanen Umfeld.
Hamburg-Öjendorf, ein Stadtteil im Bezirk Hamburg-Mitte, zeichnet sich durch seine ruhige und grüne Wohnlage aus, die besonders bei Familien und naturverbundenen Menschen beliebt ist. Der Stadtteil bietet eine harmonische Mischung aus Einfamilienhäusern, Reihenhäusern und Mehrfamilienhäusern, die sich auf großzügig angelegten Grundstücken und entlang ruhiger Wohnstraßen befinden.
Ein besonderes Merkmal Öjendorfs ist der weitläufige Öjendorfer Park, der zu den größten Grünflächen Hamburgs gehört. Der Park lädt mit seinen zahlreichen Spazierwegen, Seen und Freizeitmöglichkeiten zu erholsamen Stunden in der Natur ein. Ideal für Sportbegeisterte, Familien mit Kindern oder Hundebesitzer, die die Nähe zur Natur schätzen. Gleichzeitig bietet Öjendorf eine hervorragende Infrastruktur mit Kindergärten, Schulen und Einkaufsmöglichkeiten des täglichen Bedarfs, die bequem zu Fuß oder mit dem Fahrrad erreichbar sind.
Die Anbindung an den öffentlichen Nahverkehr ist ebenfalls gut. Durch Buslinien und die nahegelegene U-Bahn-Station in Billstedt ist die Hamburger Innenstadt in kurzer Zeit erreichbar. Zudem profitiert Öjendorf von der Nähe zur Autobahn A1, was eine schnelle Erreichbarkeit der umliegenden Regionen ermöglicht.
Trotz der naturnahen Lage ist Öjendorf durch die gute Verkehrsanbindung sowohl für Pendler als auch für Menschen, die eine ruhige Wohngegend mit städtischen Vorzügen suchen, äußerst attraktiv. Hier findet man eine entspannte Lebensqualität in unmittelbarer Nähe zur pulsierenden Metropole Hamburg.
Sonstige Angaben
Sollte unser Angebot Ihr Interesse geweckt haben, stehen wir Ihnen selbstverständlich gerne für einen Besichtigungstermin zur Verfügung, jedoch bitte nach vorheriger telefonischer Absprache. Bitte wahren Sie die Diskretion und sehen Sie vom Betreten des Grundstückes ohne Begleitung des Immobilienberaters ab.
Der Maklervertrag mit uns kommt durch die Bestätigung der Inanspruchnahme unserer Maklertätigkeit in Textform zustande, wie z.B. insbesondere die Unterschrift des Suchkundenvertrages und/oder des Objekt-Exposés. Da diese Immobilie PROVISIONSFREI angeboten wird, entfällt für den Käufer die Zahlung einer Maklercourtage. Die anfallenden Kaufnebenkosten wie Grunderwerbssteuer sowie Notar- und Gerichtskosten sind weiterhin vom Käufer zu tragen.
Alle Angaben sind ohne Gewähr und basieren ausschließlich auf Informationen, die uns von unserem Auftraggeber übermittelt wurden. Wir übernehmen keine Gewähr für die Vollständigkeit, Richtigkeit und Aktualität dieser Angaben. Zwischenverkauf bleibt vorbehalten. Sollte das von uns nachgewiesene Objekt bereits bekannt sein, teilen Sie uns dieses bitte unverzüglich mit. Die Weitergabe dieses Exposees an Dritte ohne unsere Zustimmung löst gegebenenfalls Courtage- bzw. Schadensersatzansprüche aus. Im Übrigen gelten die beigefügten allgemeinen Geschäftsbedingungen für die Rechtsbeziehung zwischen Ihnen und Busse-Immobilien.
Bei Busse-Immobilien sind Sie von Anfang an in guten Händen. Wir stehen für engagierten und professionellen Verkauf von Immobilien und eine ganz persönliche Betreuung. Eine seriöse, diskrete und stilvolle Vermittlungsarbeit, mit Expertise, Professionalität, Herz und Leidenschaft: Das ist der Anspruch an uns und unser Versprechen an Sie. Wir freuen uns auf Sie!
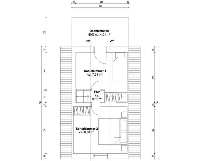
Grundriss
3D-Grundriss-EG-inkl.Logo
>
>
2D-Grundriss-EG-inkl.Logo
>
>
3D-Grundriss-DG-inkl.Logo
>
>
2D-Grundriss-DG-inkl.Logo
>
>
Adresse
22119 Hamburg
Interessante Orte
Preis- und Lageinformationen
Preistrend für Bestandsimmobilien in Billstedt