Willkommen in diesem bezaubernden, denkmalgeschützten Einfamilienhaus aus dem Jahr 1906 im beliebten und grünen Stadtteil Waldheim. Die im Stil eines historischen Doppelhauses erbaute Immobilie wurde in den Jahren 2013 bis 2015 bereits umfangreich saniert und präsentiert sich heute klassisch elegant mit modernem Wohnkomfort. Zahlreiche Gewerke wie beispielsweise das Dach, fast alle Fenster, sämtliche Versorgungsleitungen und die Elektrik mit KNX-System wurden dabei unter Würdigung der historischen Bausubstanz erneuert. Das Zusammenspiel aus modernen, hochwertigen Ausstattungen und überarbeiteten bauzeitlichen Details macht den besonderen Charme dieses wunderschönen Stadthauses aus. Großzügige, offene Grundrisse verbunden mit klassischen Raumfolgen im Erdgeschoss sorgen für ein ganz besonderes Wohngefühl. Der hier geschaffene Wohn-und Essbereich mit offener Küche, Kamin und lichterfülltem Wintergarten bildet das Herzstück des Hauses. Große Fensterflächen geben den Blick in den direkt erreichbaren, wunderschönen Garten frei. Zwei Terrassenbereiche, ein 2016 erbauter großzügiger Außenpool mit moderner Salzwassertechnik und ein stilvolles Gewächshaus machen diese grüne Oase mitten in der Stadt zu etwas ganz Besonderem. Über das original erhaltene und ebenfalls überarbeitete Treppenhaus mit Gäste-WC werden die oberen Etagen mit insgesamt sechs Schlafzimmern, zwei Balkonen und zwei modernen Bädern erschlossen. Der Spitzboden des Stadthauses wurde aufwendig ausgebaut und eignet sich hervorragend als Atelier, Fitness- oder Medienraum. Im Vollkeller findet sich die Pool- und Haustechnik mit moderner Gasbrennwertheizung, der Waschkeller, die Hausanschlüsse und jede Menge Stauraum. Dieses besondere Anwesen richtet sich an Liebhaber historischer Bausubstanz, die modernen Wohnkomfort, eine hochwertige Ausstattung und höchste Lebensqualität in zentraler Stadtlage zu schätzen wissen.
Stilvolles, denkmalgeschütztes Stadthaus mit wunderschönem Garten und Aussenpool
30519 Hannover
Die vollständige Adresse der Immobilie erhalten Sie vom Anbieter.
Auf Karte anzeigen
Die vollständige Adresse der Immobilie erhalten Sie vom Anbieter.
Finanzierungszertifikat
In nur zwei Minuten zu Ihrem persönlichen Finanzierungszertifkat.
Infos
| Haustyp | Doppelhaushaelfte |
|---|---|
| Wohnfläche ca. | 268 m2 |
| Grundstücksfläche | 500 m2 |
| Zimmer | 10 |
| Schlafzimmer | 6 |
| Badezimmer | 2 |
Kosten
| Kaufpreis |
1.498.000 € |
|---|---|
| Provision |
siehe Sonstiges |
Finanzierungsrechner:
Kaufpreis:
600.000 €
Eigenkapital:
600.000 €
Monatliche Rate
0 €
Effektiver Jahreszins
0 %
Sollzinsbindung
10 Jahre
Bausubstanz & Energieausweis
| Baujahr | 1906 |
|---|---|
| Letzte Sanierung | 2015 |
| Denkmalschutzobjekt | Ja |
| Objektzustand | Neuwertig |
| Heizungsart | Zentralheizung |
| Wesentliche Energieträger | Gas |
| Energieausweis | laut Gesetz nicht erforderlich |
Beschreibung des Objekts
Lage
Waldheim zählt zu den begehrtesten Wohnlagen Hannovers. Der Stadtteil hat sich seinen dörflich charmanten Charakter bewahrt und verbindet anspruchsvolles Wohnen im Grünen mit hervorragender Anbindung an die Innenstadt. Geprägt von herrschaftlichen Altbauten, stilvollen Ein- und Zweifamilienhäusern, großzügigen Grundstücken und alten Baumbeständen, bietet Waldheim ein ausgesprochen gepflegtes Wohnambiente. Die Nähe zur Eilenriede, einem der größten Stadtwälder Europas, sorgt für unmittelbare Erholung: Spazier- und Radwege, weitläufige Grünflächen und stille Rückzugsorte liegen direkt vor der Haustür. Gleichzeitig sind die Vorteile einer gut ausgebauten Infrastruktur gegeben: Waldheim bietet eine kleine, feine Auswahl an Geschäften wie den "Waldheimer Einkaufsmarkt", einen Bäcker, eine Apotheke und eine Postfiliale sowie einen Kindergarten. Sonstige Einkaufsmöglichkeiten, Schulen, Kitas und Ärzte sind in wenigen Minuten in den umliegenden Stadtteilen erreichbar. Auch die weitere Verkehrsanbindung ist ideal. Die Innenstadt und der Maschsee sind mit dem Fahrrad, Bus oder dem Auto zügig erreicht und über den Messeschnellweg ist eine ideale Anbindung an die Autobahnen und den Flughafen gegeben.
Sonstige Angaben
Der Maklervertrag mit uns kommt durch die Bestätigung der Inanspruchnahme unserer Makler-tätigkeit in Textform zustande. Die Höhe der Courtage richtet sich nach den ab dem 23.12.2020 in Kraft getretenen gesetzlichen Regelungen zur Teilung der Maklercourtage. Hiernach wird die Courtage regelmäßig für beide Parteien (Eigentümer und Käufer) jeweils 3,57% auf den Kaufpreis einschließlich gesetzlicher Umsatzsteuer betragen und ist bei notariellem Vertragsabschluss verdient und fällig. Die Höhe der Bruttocourtage unterliegt einer Anpassung bei Steuersatzänderung. Grunderwerbssteuer, Notar- und Gerichtskosten trägt der Käufer. Wir stehen Ihnen mit weiteren Informationen zum Objekt sowie für Besichtigungen gern zur Verfügung. Bitte nehmen Sie unsere Verbraucherinformationen und die allgemeinen Geschäftsbedingungen, die wir Ihnen nachstehend ebenfalls zur Verfügung stellen, zur Kenntnis. Engel & Völkers Immobilien Deutschland GmbH ist Lizenzpartner der Engel & Völkers Residential GmbH. Hinweise: Alle Angaben sind ohne Gewähr und basieren ausschließlich auf Informationen, die uns von unserem Auftraggeber übermittelt wurden. Wir übernehmen keine Gewähr für die Vollständigkeit, Richtigkeit und Aktualität dieser Angaben. Zwischenverkauf bleibt vor-behalten. Sollte das von uns nachgewiesene Objekt bereits bekannt sein, teilen Sie uns dies bitte unverzüglich mit. Die Weitergabe dieses Exposés an Dritte ohne unsere Zustimmung löst gegebenenfalls Courtage- bzw. Schadensersatzansprüche aus. Im Übrigen gelten unsere all-gemeinen Geschäftsbedingungen.
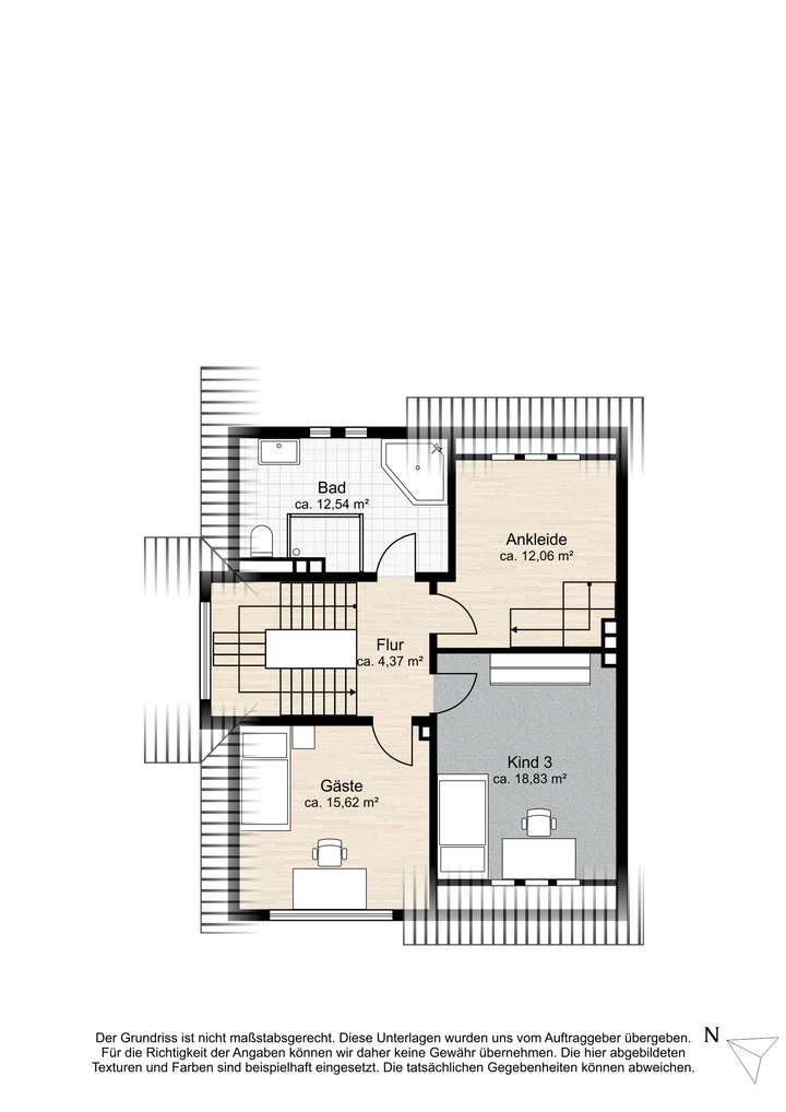
Grundriss
Erdgeschoss
>
>
Obergeschoss
>
>
Dachgeschoss
>
>
Spitzboden
>
>
Adresse
30519 Hannover
Interessante Orte
Preis- und Lageinformationen
Preistrend für Bestandsimmobilien in Waldheim