Dieses individuell projektierte Einfamilienhaus bietet Ihnen Wohnkomfort und Gestaltungsspielraum für die ganze Familie.
Highlights auf einen Blick
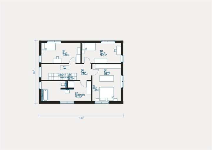
Wohnfläche verteilt auf 2 Etagen
5 helle Zimmer, davon 4 Schlafzimmer
Modern gestaltetes Badezimmer + separates Gäste-WC
Individuelles Baukonzept: Ihre Wünsche und Ausbauideen können noch einfließen
Beschreibung
Das Haus besticht durch eine durchdachte Raumaufteilung und viel Tageslicht in allen Wohnräumen. Im Erdgeschoss eröffnet ein offener Wohn- und Essbereich zahlreiche Gestaltungsmöglichkeiten — ideal für Familienleben und gesellige Abende. In den oberen Etagen befinden sich vier gut geschnittene Schlafzimmer, die sich flexibel als Kinder-, Arbeits- oder Gästezimmer nutzen lassen. Das moderne Badezimmer ist zentral gelegen; ein zusätzliches Gäste-WC sorgt für Komfort im Alltag.
Warum dieses Haus?
Weil es modernes Wohnen mit persönlicher Gestaltung vereint: Sie übernehmen die gestalterischen Elemente nach Ihren Vorstellungen und schaffen so Ihr individuelles Traumhaus in einer attraktiven Wohnlage von Heilbronn.
Interesse geweckt?
Preisangaben und Details auf Anfrage.
Ihr Traum vom Eigenheim wird Wirklichkeit - Einfamilienhaus inkl. Grundstück mit Potential
74080 Heilbronn
Die vollständige Adresse der Immobilie erhalten Sie vom Anbieter.
Auf Karte anzeigen
Die vollständige Adresse der Immobilie erhalten Sie vom Anbieter.
Finanzierungszertifikat
In nur zwei Minuten zu Ihrem persönlichen Finanzierungszertifkat.
Infos
| Haustyp | Einfamilienhaus |
|---|---|
| Etagenzahl | 2 |
| Wohnfläche ca. | 173 m2 |
| Grundstücksfläche | 648 m2 |
| Zimmer | 5 |
| Schlafzimmer | 4 |
| Badezimmer | 1 |
Kosten
| Kaufpreis |
489.119 € |
|---|
Finanzierungsrechner:
Kaufpreis:
600.000 €
Eigenkapital:
600.000 €
Monatliche Rate
0 €
Effektiver Jahreszins
0 %
Sollzinsbindung
10 Jahre
Bausubstanz & Energieausweis
| Baujahr | unbekannt |
|---|---|
| Bauphase | Haus in Planung (projektiert) |
| Qualität der Austattung | Gehoben |
| Heizungsart | Wärmepumpe |
Beschreibung des Objekts
Ausstattung
Im Preis enthalten:
- Dein tolles Energieeffizienzhaus in KfW55 Standard
(auch KfW 40+ möglich)
- inkl. Bodenplatte
- Architektenleistung (Bauplanung inkl. Keller u.
Garagenplanung,-
Genehmigungsplanung, Bauleitung)
- Planänderungspauschale
- Vermessungsleistung (zur Erstellung des Bauantrags)
- inklusive Bodengutachten
- Kontrollierte Be- und Entlüftungsanlage mit
Wärmerückgewinnung
- Wärmepumpe von ELCO, Buderus oder Tecalor (nach Wahl)
- Echtholztreppe in Buche
- Sicherheitshaustüre mit Mehrfachverriegelung
- 3-fach verglaste Fenster im ganzen Haus
- Dacheindeckung mit Finkenberger Pfanne
- Dachrinnen und Fallrohre in Titan-Zink
- Aluminiumrolläden an allen Fenstern
- Fliesen im EG u. Laminat im OG
- Innentüren inkl. Zargen
- Fensterbänke innen und außen
- Sanitärobjekte
- Material für den Trockenbau inkl. Dämm- und
Beplankungspaket
- 2-Tägiges Ausbaucoaching in unserem Innovationscenter
- inklusive Lieferung und Hausmontage (Rohbau)
- inklusive technikfertigem Ausbau (Pro-Time Paket)
- Bau-Sicherheitspaket (R+V 4-Fach Versicherung):
inkl. Bauleistungsversicherung
inkl. Bauherren-Haftpflichtversicherung
inkl. Wohngebäudeversicherung
inkl. Feuer-Rohbauversicherung
zzgl. Kaufnebenkosten Grundstück
zzgl. Baunebenkosten
Selbstverständlich bieten wir Ihnen das Haus in verschiedenen Ausbaustufen an.
Vom AUSBAUHAUS bis hin zu bezugsfertig, stehen alle Möglichkeiten zur Verfügung.
Lage
Heilbronn bietet Ihnen eine hervorragende Infrastruktur mit Anbindung an öffentliche Verkehrsmittel, Einkaufsmöglichkeiten und Schulen in unmittelbarer Nähe. Genießen Sie die Vorzüge einer lebendigen Stadt, die Ihnen zahlreiche Freizeitmöglichkeiten, Parks und Sporteinrichtungen bietet, um eine hohe Lebensqualität zu gewährleisten.
Sonstige Angaben
allkauf heißt: Maximale Sicherheit, kurze Lieferzeiten, garantierte Fertigstellung. Zu allen Häusern gehört:
- Energieeffizienzwand
- Echtholztreppe
- Luft-Wasser-Wärmepumpe
- Fußbodenheizung
- Be- und Entlüftungsanlage
- 3-fach verglaste Fenster inklusive Rollläden mit Aluminiumlamellen
- Lichte Raumhöhe 2,75 m
- inkl. erhöhten Fenstern und Türen
- TOXPROOF Gütesiegel - schadstoffgeprüfter Materialien
- Just-in-Time-Lieferungen
- Bemustern im eigenen Bemusterungszentrum mit Markenprodukten
Bewegen Sie sich lieber in der Komfortzone, oder trauen Sie sich richtig viel selbst zu? Wir von allkauf machen es Ihnen leicht: Mit unseren drei Dienstleistungspaketen für VIELBESCHÄFTIGTE, AMBITIONIERTE und HEIMWERKER haben Sie die Möglichkeit, die Dinge selbst in die Hand zu nehmen oder die Profis von allkauf zu beauftragen. Alle drei Dienstleistungspakete können beim Hauskauf gegen Aufpreis in Auftrag gegeben werden.
Weitere Dokumente
SiegelGrundriss
Grundriss
>
>
Grundriss
>
>
Adresse
74080 Heilbronn
Interessante Orte
Preis- und Lageinformationen
Preistrend für Bestandsimmobilien in Böckingen