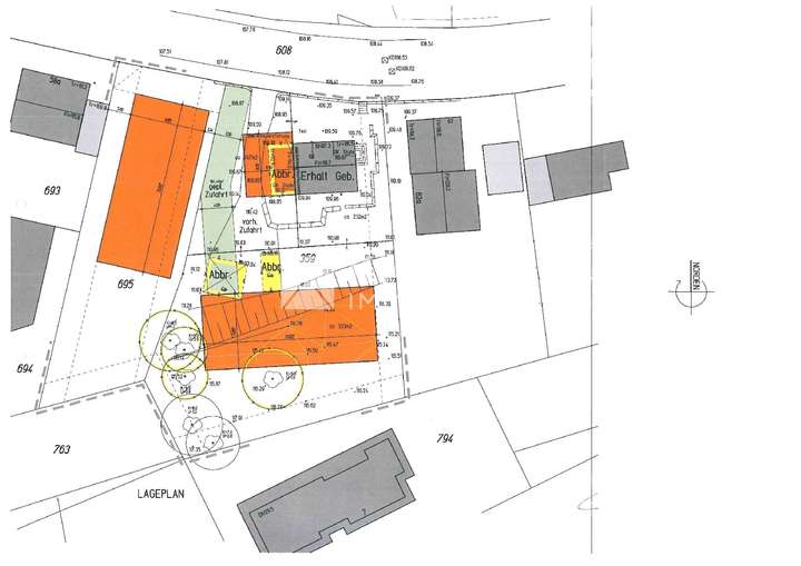
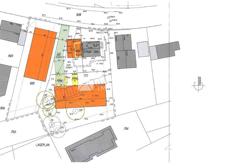
Das Grundstück befindet sich in zentraler Grünlage von Bergisch Gladbach Rommerscheid.
Das Gesamtgrundstück von 1.215m² Größe wird aktuell in vier Teile aufgeteilt. Im vorderen Bereich entstehen zwei Doppelhausgrundstücke. Auf der rechten Seite wird ein Wegerecht für die hinteren Grundstücke eingetragen (auf dem Lageplan grün markiert). Die Herstellungs- und Instandhaltungskosten tragen die angeschlossenen Grundstückseigentümer gemeinsam.
Das hier angebotene Grundstück ist etwa 437m² groß (auf dem Lageplan und Luftbild orange markiert). Eine exakte Vermessung muss noch erfolgen.
Die Bebauung richtet sich nach § 34 BauGB ("Nachbarschaftsbebauung"). Es liegt eine positive Bauvoranfrage für einen Baukörper mit einer Grundfläche von 9,85m Tiefe und 22,62m Breite auf dem hinteren Grundstück vor. Folgende Nutzungsmöglichkeiten sind denkbar:
- ein großzügiges Einfamilienhaus
- zwei Doppelhaushälften
- ein Mehrfamilienhaus mit 3 Einheiten
Die konkrete Maßnahme ist im Rahmen eines Baugenehmigungsverfahrens mit der Bauaufsicht abzustimmen.
+++ 3480 - Grundstück für EFH/DHH/MFH-Bebauung in zentraler Grünlage von GL-Rommerscheid +++
51465 Bergisch Gladbach
Die vollständige Adresse der Immobilie erhalten Sie vom Anbieter.
Auf Karte anzeigen
Die vollständige Adresse der Immobilie erhalten Sie vom Anbieter.
Finanzierungszertifikat
In nur zwei Minuten zu Ihrem persönlichen Finanzierungszertifkat.
Infos
| Vermarktungsart | Kaufen |
|---|---|
| Grundstücksfläche | 437 m2 |
| Erschließung | Teilerschlossen |
| Empfohlene Nutzung | Doppelhaus, Einfamilienhaus, Mehrfamilienhaus |
| Bebaubar nach | wie Nachbarbebauung |
| Verfügbar ab | nach Vereinbarung |
Kosten
| Miete pro Jahr |
245.000 € |
|---|---|
| Provision | Nein |
Finanzierungsrechner:
Kaufpreis:
600.000 €
Eigenkapital:
600.000 €
Monatliche Rate
0 €
Effektiver Jahreszins
0 %
Sollzinsbindung
10 Jahre
Beschreibung des Objekts
Lage
Das Objekt befindet sich an einer Tempo30-Straße unweit des Zentrums von Bergisch Gladbach. Alle Einrichtungen zur Deckung des täglichen Bedarfs, Ärzte und Banken sind fußläufig in ca. 1.400 Metern erreichbar. Kindergarten, Grund- und weiterführende Schulen sind ebenfalls fußläufig erreichbar.
Eine Bushaltestelle befindet sich nur wenige Meter entfernt. Mit der Bus-Linie 439 sind Sie in wenigen Minuten am Busbahnhof in Bergisch Gladbach von wo aus Sie bequem mit der S-Bahn-Line 11 nach Köln gelangen.
Die Auffahrt zur BAB 4 erreichen Sie nach ca. 6 km in Refrath.
TIPP: Verschaffen Sie sich über unseren Stadtteilfilm einen Überblick über die Umgebung.
Sonstige Angaben
KNIGGE.Immobilien - Ihr Spezialist für den Verkauf, die Vermietung und die Verwaltung Ihrer Immobilie im Großraum Bergisch Gladbach.
Erfahren Sie mehr über uns und besuchen Sie unsere Website www.knigge-immobilien.de.
Haftungsausschluss: Alle Inhalte beruhen auf Angaben des Eigentümers und erfolgen daher ohne Gewähr.
Grundriss
Lageplan RS60c
>
>
Bauvoranfrage Plan
>
>