Das freistehende Einfamilienhaus aus dem Jahr 1995 bietet rund 153 m² Wohnfläche auf zwei Geschossen und steht auf einem großzügigen, ca. 1.200 m² großen Grundstück. Das Haus ist voll unterkellert, das Dach teilweise ausgebaut, sodass insgesamt etwa 363 m² Nutzfläche zur Verfügung stehen. Ein Nebengebäude mit großer Garage sowie Holz- und Außenlager ergänzt das Angebot, zudem bietet der Hof ausreichend Stellplätze für mehrere Fahrzeuge.
Die harmonische Außengestaltung mit regionaltypischen Materialien verbindet moderne Architektur mit dörflichem Charakter und fügt sich stimmig in das Ortsbild ein. Haupt- und Nebengebäude umschließen einen geschützten, privaten Hofbereich mit kleinem Brunnen. Dieses durchgängige Gestaltungskonzept setzt sich im Inneren fort und verleiht dem Haus eine helle, freundliche und einladende Atmosphäre.
Im Erdgeschoss befinden sich drei Aufenthaltsräume, die Küche sowie ein Bad mit Fenster. Das Wohnzimmer überzeugt mit einem Kachelofen, der von der Küche aus befeuert wird, und direktem Zugang zur Südterrasse und dem gepflegten, sonnigen Garten. Eine weitere Terrasse liegt im Westen. Die großzügige Küche ist voll ausgestattet, lichtdurchflutet und verfügt über eine angrenzende Abstell- bzw. Hauswirtschaftsraum.
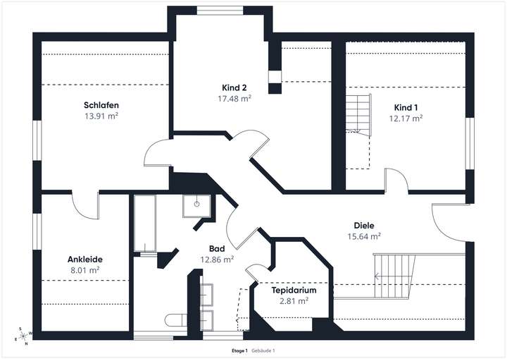
Im Obergeschoss stehen drei weitere Wohnräume zur Verfügung, einer davon mit angeschlossenem Ankleidezimmer. Das moderne Hauptbad mit Badewanne, Dusche, Bidet, Doppelwaschbecken und integriertem Tepidarium bietet besonderen Komfort. Der trockene Keller mit beheizbaren Räumen, WC und Fenstern bietet vielseitige Nutzungsmöglichkeiten. Beheizt wird das Haus über eine Gaszentralheizung, teilweise mit Fußbodenheizung. Insgesamt präsentiert sich die Immobilie in einem sehr gepflegten Zustand und eignet sich ideal für Familien oder Paare mit erhöhtem Platzbedarf.
Großzügiges Einfamilienhaus mit durchdachtem Raumkonzept, Südgarten und hohem Wohnkomfort
86707 Kühlenthal
Die vollständige Adresse der Immobilie erhalten Sie vom Anbieter.
Auf Karte anzeigen
Die vollständige Adresse der Immobilie erhalten Sie vom Anbieter.
Finanzierungszertifikat
In nur zwei Minuten zu Ihrem persönlichen Finanzierungszertifkat.
Infos
| Haustyp | Einfamilienhaus |
|---|---|
| Wohnfläche ca. | 153 m2 |
| Grundstücksfläche | 1.200 m2 |
| Bezugsfrei ab | März 2026 oder nach Absprache |
| Zimmer | 7 |
| Schlafzimmer | 4 |
| Badezimmer | 1 |
| Anzahl Garage/Stellplatz | 4 |
Kosten
| Kaufpreis |
799.000 € |
|---|---|
| Provision |
3,57 % inkl. 19 % MwSt |
Finanzierungsrechner:
Kaufpreis:
600.000 €
Eigenkapital:
600.000 €
Monatliche Rate
0 €
Effektiver Jahreszins
0 %
Sollzinsbindung
10 Jahre
Bausubstanz & Energieausweis
| Baujahr | 1995 |
|---|---|
| Bauphase | Haus fertig gestellt |
| Objektzustand | Gepflegt |
| Qualität der Austattung | Normal |
| Heizungsart | Gas-Heizung |
| Wesentliche Energieträger | Gas |
| Energieausweis | liegt vor |
| Energieausweistyp | Bedarfsausweis |
| Energieverbrauchskennwert | 147,0 kWh/(m²*a) |
| Energieeffizienzklasse | E |
147,0
kWh/(m²*a)
Energieeffizienzklasse E
- A+
- A
- B
- C
- D
- E
- F
- G
- H
- 0
- 25
- 50
- 75
- 100
- 125
- 150
- 175
- 200
- 225
- >250
Beschreibung des Objekts
Lage
Kühlenthal ist ein ruhiger, ländlich geprägter Ort im Landkreis Augsburg mit rund 840 Einwohnern. Eingebettet in die naturnahe Landschaft des Schmuttertals bietet der Ort Felder, Wiesen und Grünflächen sowie ein entspanntes Wohnumfeld mit hoher Lebensqualität. Der dörfliche Charakter, eine gewachsene Nachbarschaft und die Nähe zur Natur machen Kühlenthal besonders attraktiv für Menschen, die Ruhe und Erholung suchen.
Ein Kindergarten ist direkt im Ort vorhanden. Schulen in den angrenzenden Gemeinden werden durch Schulbusse bequem erreicht. Einkaufsmöglichkeiten, ärztliche Versorgung und weitere Einrichtungen des täglichen Bedarfs befinden sich in Meitingen und den umliegenden Orten.
Die Nähe zur Stadt Augsburg eröffnet zusätzlich ein breites Angebot an Kultur, Bildung, Freizeit und Einkaufsmöglichkeiten. Kühlenthal gehört zur Verwaltungsgemeinschaft Nordendorf.
Die Verkehrsanbindung ist gut: Über Bundesstraßen, die Autobahn A8 sowie die Bahnhöfe Nordendorf und Meitingen sind Augsburg, Donauwörth und München schnell erreichbar. Die naturnahe Umgebung lädt zu Spaziergängen, Rad- und Wandertouren ein und schafft ideale Voraussetzungen für ein aktives Leben im Grünen. Die Immobilie liegt in ruhiger Wohnlage, die Bushaltestelle „Kühlenthal, Dorfplatz“ ist in zwei Gehminuten erreichbar.
Grundriss
Grundriss OG
>
>
Grundriss EG
>
>
Grundriss Dach
>
>
Grundriss Keller
>
>
Adresse
86707 Kühlenthal
Interessante Orte
Preis- und Lageinformationen
Preistrend für Bestandsimmobilien in Kühlenthal