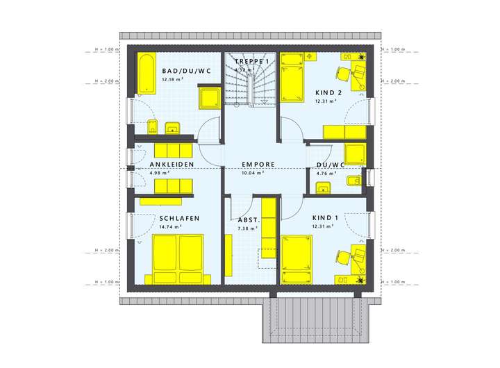
Das LivingHaus in Sprockhövel ist ein wahres Meisterwerk der modernen Architektur, das auf deine individuellen Wünsche und Vorstellungen abgestimmt wird. Mit einer großzügigen Wohnfläche von 167 m² und einem klassischen Satteldach mit 38 Grad Neigung empfängt dich dieses Einfamilienhaus mit einem einladenden und harmonischen Ambiente. Durch durchdachte Grundrissänderungen wird der Raum optimal genutzt, sodass viel Licht und Platz für die gesamte Familie entsteht. Hier findest du genügend Platz für deine drei Schlafzimmer, zwei Badezimmer und ein großzügiges Wohnzimmer, das zum Verweilen und Entspannen einlädt. Dieses Zuhause wird nicht nur zu einem Rückzugsort, sondern auch zum Ort, an dem Erinnerungen mit Familie und Freunden geschaffen werden.
Zusätzlich zu dieser beeindruckenden Architektur bietet LivingHaus eine Vielzahl an zusätzlichen Leistungen, die dein Bauprojekt noch attraktiver machen. Die hochwertige Traumküche wird individuell auf deinen Grundriss angepasst und mit modernster Technik sowie cleveren Stauraumlösungen ausgestattet. Sie wird rechtzeitig zum Einzug geliefert, sodass du sofort mit dem Kochen beginnen kannst. Mit dem LivingHaus Bau-Cockpit hast du dein Projekt stets im Blick, denn alle relevanten Informationen sind digital und einfach zugänglich.
Das I-KON Konzept sorgt dafür, dass dein Haus nicht nur energieeffizient, sondern auch umweltfreundlich ist. Mit einem I-KON Effizienzhaus 55 benötigst du nur 55 % der Energie eines Standardhauses, was sowohl deinem Geldbeutel als auch der Umwelt zugutekommt. Um dein Traumhaus zu finanzieren, steht dir das Zuhause-Darlehen mit attraktiven Konditionen zur Verfügung. Das Zuhause-Paket bietet dir eine hochwertige Grundausstattung, die alles beinhaltet, was du für den perfekten Einzug benötigst. Und wenn du gerne selbst Hand anlegen möchtest, unterstützt dich das DIY-Ausbau-Coaching, bei dem dir Experten in nur drei Tagen zeigen, wie du den Innenausbau erfolgreich umsetzt.
Dein individuelles Traumhaus in Sprockhövel - maßgeschneidert für dich!
45549 Sprockhövel
Die vollständige Adresse der Immobilie erhalten Sie vom Anbieter.
Auf Karte anzeigen
Die vollständige Adresse der Immobilie erhalten Sie vom Anbieter.
Finanzierungszertifikat
In nur zwei Minuten zu Ihrem persönlichen Finanzierungszertifkat.
Infos
| Haustyp | Einfamilienhaus |
|---|---|
| Etagenzahl | 1 |
| Wohnfläche ca. | 167 m2 |
| Nutzfläche | 167 m2 |
| Grundstücksfläche | 630 m2 |
| Zimmer | 5 |
| Schlafzimmer | 3 |
| Badezimmer | 2 |
Kosten
| Kaufpreis |
587.268 € |
|---|
Finanzierungsrechner:
Kaufpreis:
600.000 €
Eigenkapital:
600.000 €
Monatliche Rate
0 €
Effektiver Jahreszins
0 %
Sollzinsbindung
10 Jahre
Bausubstanz & Energieausweis
| Baujahr | unbekannt |
|---|---|
| Bauphase | Haus in Planung (projektiert) |
| Qualität der Austattung | Gehoben |
Beschreibung des Objekts
Ausstattung
Dein zukünftiges Zuhause in Sprockhövel bietet eine umfassende Ausstattung, die keine Wünsche offenlässt. Die hochwertige Traumküche ist individuell gestaltet und mit modernster Technik sowie cleveren Stauraumlösungen ausgestattet. Im Zuhause-Paket erhältst du edle Türen, moderne Böden und stilvolle Sanitäranlagen, alles optimal aufeinander abgestimmt. Zusätzlich profitieren deine Wände und Böden von einem hohen Vorfertigungsgrad, was den Bauprozess effizient gestaltet. Du erhältst eine komplette Bauantragsplanung durch erfahrene Architekten sowie eine 18-monatige Festpreisgarantie, die dir Sicherheit gibt. Außerdem sind essenzielle Bauversicherungen enthalten, sodass du dir bei unvorhergesehenen Ereignissen keine Sorgen machen musst.
Dein Haus kommt mit einer vorkonfigurierten I-KON-Lösung, die eine integrierte PV-Anlage mit Speicherbatterie beinhaltet. Dies ermöglicht dir, einen Großteil deines Strombedarfs selbst zu erzeugen. Zudem sorgt moderne Wärmepumpentechnik für effizientes Heizen und ein angenehmes Raumklima. Abgerundet wird das Paket durch das DIY Ausbau-Coaching. So wird dein Traumhaus nicht nur ein Ort zum Wohnen, sondern auch ein Raum, in dem du deine persönliche Note einbringen kannst.
Dein »Wie ich es will Fertighaus«.
Lage
In der Umgebung von Sprockhövel findest du eine Fülle an Bildungseinrichtungen, die sowohl für Familien als auch für junge Erwachsene attraktiv sind. Die Stadt beherbergt mehrere Grundschulen und weiterführende Schulen, die durchweg gute Bewertungen erhalten haben. Kindergärten sind in der Nachbarschaft zahlreich vorhanden und bieten eine optimale Betreuung für die Kleinsten. Für die täglichen Einkäufe sind Supermärkte wie Rewe und Aldi schnell erreichbar und sorgen für kurze Wege.
Ärzte und Apotheken sind ebenfalls in der Nähe, sodass du jederzeit gut versorgt bist. Die medizinische Versorgung ist hier hervorragend, und die Nähe zu Fachärzten ist ein weiterer Pluspunkt.
Freizeitangebote sind in Sprockhövel und der Umgebung vielfältig. Du kannst die Natur im nahegelegenen Waldgebiet genießen oder die zahlreichen Wander- und Radwege erkunden. Für Sportbegeisterte gibt es verschiedene Sportvereine und Freizeitmöglichkeiten, die das Angebot abrunden. Auch die Anbindung an den ÖPNV ist gut, sodass du bequem in umliegende Städte wie Wuppertal oder Bochum gelangen kannst. Die Autobahnanbindung ist ebenfalls vorteilhaft, was Pendlern zugutekommt.
Sprockhövel bietet dir somit eine hohe Lebensqualität mit all den Annehmlichkeiten, die du dir für dein zukünftiges Zuhause wünschst.
Sonstige Angaben
Der Grundstückspreis ist im Anzeigenpreis bereits enthalten.
Das Grundstück erwerben Sie direkt vom Eigentümer.
Ein Träumchen an Grundstück. :-)
Heimkommen - ankommen - herunterkommen - wohlfühlen
Vereinbare gleich deinen persönlichen Beratungstermin und sichere dir und deiner Familie ein geniales Bauland für eurer neues Zuhause mit Livinghaus.
Jedoch bitte ich Euch zu berücksichtigen:
Ich baue mit sehr viel Herz und Kompetenz Häuser. Im Interesse der jeweiligen Grundstückseigentümer sowie meiner Bauherren werde ich ohne ein persönliches Gespräch zum Thema Hausbau nie irgendwelche Grundstücksdaten weiterleiten. Keine Ausnahmen an dieser Stelle.
Und... natürlich ist es mir selbst mit bestem Willen nicht möglich, eine dauerhafte Verfügbarkeit der Grundstücke zu garantieren. Es gibt jedes Grundstück halt nur einmal - Leider.
Wir laden Sie gerne zu einem persönlichen Gespräch in unser Bemusterungszentrum in Bedburg ein. Nur vollständig ausgefüllte Anfragen können auch beantwortet werden. Vereinbaren Sie noch heute einen Termin mit uns und kommen Sie Ihrem Traum von den eigenen 4 Wänden ein Stück näher.
Joachim Seidenberg 0151-16825088 oder per Mail: joachim.seidenberg@livinghaus.de
Auf Livinghaus können Sie vertrauen!
Adresse
45549 Sprockhövel
Interessante Orte
Preis- und Lageinformationen
Preistrend für Bestandsimmobilien in Sprockhövel