Sie suchen ein Historisches Gemäuer mit besonderer Geschichte? Hier werden Sie fündig. Die „Villa Brons“ wird Sie bereits beim Betreten in Ihren Bann ziehen. Die Villa befindet sich im Ort Groothusen, in der Gemeinde Krummhörn. Im frühen Mittelalter war Groothusen, ein bedeutender Handelsort und lag, wie viele andere Orte der Krummhörn an einer Meeresbucht, die für die Schiffahrt nutzbar war. Die Villa steht auf dem Fundament der damaligen Middelsteburg. Diese Burg wurde im 14. Jahrhundert vom Häuptling Udo Tiardekana als Steinhaus erbaut, gehörte später zum Besitz der Häuptlingsfamilie Beninga und im 16. Jahrhundert nannten die Besitzer der Osterburg dieses Gebäude Ihr Eigentum. Dann erwarb der Emder Kaufmann und Reeder Konsul Ysaak Brons 1832 die Middelsteburg. Auf dem bewahrten Untergeschoss samt Gewölbe der alten Burg, ließ der neue Eigentümer die bis heute erhaltene Villa Brons errichten. In liebevoller, durchgeführter Restauration 2024 präsentiert sich dieses Objekt auf einem ca. 1.642qm großen Grundstück. Zahlreiche Stilelemente wie z. Bsp. Dielenböden, gemauerter Kamin, Sprossenfenster, hohe Decken etc. unterstreichen den besonderen Charakter dieser Immobilie. Aufwendig durchgeführte Restaurationen tragen zur Ausstrahlungskraft der Villa bei (vgl. Aufstellung). Beheizt wird das Objekt durch eine Gas-Z.-Heizungen. Die Holzfenster sind mit einer Isolierverglasung ausgestattet. Eine Immobilie für Menschen, die dieses besondere, seltene Angebot zu schätzen wissen.
Seltene Gelegenheit! Historische Villa mit Garage und Gartenanlage in idyllischer Wohnlage!
26736 Krummhörn
Die vollständige Adresse der Immobilie erhalten Sie vom Anbieter.
Auf Karte anzeigen
Die vollständige Adresse der Immobilie erhalten Sie vom Anbieter.
Finanzierungszertifikat
In nur zwei Minuten zu Ihrem persönlichen Finanzierungszertifkat.
Infos
| Haustyp | Einfamilienhaus |
|---|---|
| Wohnfläche ca. | 270 m2 |
| Grundstücksfläche | 1.642 m2 |
| Bezugsfrei ab | Nach Absprache |
| Zimmer | 7 |
| Schlafzimmer | 3 |
| Badezimmer | 2 |
Kosten
| Kaufpreis |
620.000 € |
|---|---|
| Provision |
Die Maklerprovision beträgt für den Käufer 3,57% vom Kaufpreis inkl. ges. MwSt.. |
Finanzierungsrechner:
Kaufpreis:
600.000 €
Eigenkapital:
600.000 €
Monatliche Rate
0 €
Effektiver Jahreszins
0 %
Sollzinsbindung
10 Jahre
Bausubstanz & Energieausweis
| Baujahr | 1780 |
|---|---|
| Objektzustand | Vollständig Renoviert |
| Heizungsart | Zentralheizung |
| Wesentliche Energieträger | Gas |
| Energieausweis | laut Gesetz nicht erforderlich |
Beschreibung des Objekts
Ausstattung
Besondere Ausstattungsmerkmale:
-Aufstellung der Renovierungen auf Anfrage
-Hohe Decken (bis 4,20m)
-Kachelofen
-Innenliegende Holzklappen bei einigen Fenstern
-Denkmalgeschütztes Anwesen
-Historische Innentüren, Fernster, Treppe, Klinkerstein
Lage
26736 Krummhörn OT. Groothusen (Zentrale, idyllische Ortslage, Greetsiel nur ca. 8 PKW-Min. entfernt, Einkaufsmöglichkeiten, Ärzte, Edeka, Banken, Apotheken in nächstgelegenen Ortsteil Pewsum ca. 2 PKW-Min. entfernt, gute ÖPNV, Nähe zu den ostfriesischen Inseln, Nordseeküste)
Sonstige Angaben
Grundstück:ca. 1.642qm (Gartenanlage, Alter Baumbestand, Obstbäume, Garage)
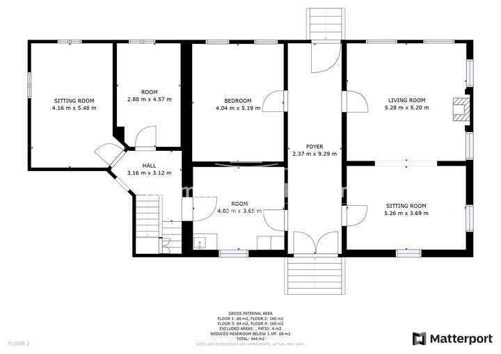
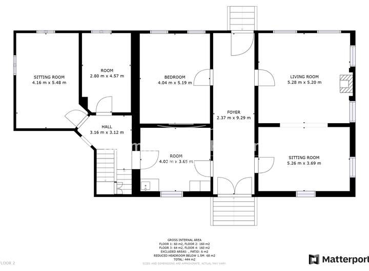
EG: Flur/Diele, Wohnzimmer mit Ofen, Schlafzimmer, Durchgangszimmer,
Ankleidezimmer, großes Arbeitszimmer, Küche, Abstellraum, WC, Bad, HWR,
Zweite Ebene EG:Flur/Diele, Schlafzimmer, Ankleide, Bad
KG: Außenkellerraum
OG: Stauraum/Ausbaureserve
Gesamt: Wohn-/Nutzfläche 270qm
Grundriss
Grundriss
>
>
Grundriss
>
>
Grundriss
>
>
Grundriss
>
>
Adresse
26736 Krummhörn
Interessante Orte
Preis- und Lageinformationen
Preistrend für Bestandsimmobilien in Krummhörn