Dieses freistehende Einfamilienhaus aus 2023 präsentiert sich als hochwertiger Neubau auf einem großzügigen Grundstück von 1.035 m².
Die Immobilie wurde nach aktuellen, höchsten Energieeffizienzstandards errichtet und überzeugt durch eine hervorragende Dämmung, moderne Heiztechnik sowie eine nachhaltige Bauweise. Dadurch profitieren zukünftige Bewohner von dauerhaft niedrigen Betriebskosten und einem angenehmen Wohnklima zu jeder Jahreszeit. Das gesamte Haus wird mit einer Luft Wasser Wärmepumpe beheizt.
Auf zwei Etagen verteilt bietet das Haus insgesamt 6 Zimmer und 3 vollausgestattete Bäder, wodurch es ideal für Familien, Wohnen und Arbeiten unter einem Dach oder großzügige Lebensentwürfe geeignet ist.
Die Grundrissgestaltung wurde funktional und zugleich offen konzipiert: Helle Wohn-und Schlafräume, große Fensterflächen und eine klare Architektur schaffen ein freundliches, lichtdurchflutetes Ambiente.
Ein Balkon erweitert den Wohnbereich im Obergeschoss und bietet einen schönen Blick in den Garten. Das zu 75% unterkellerte Haus stellt reichlich zusätzliche Fläche zur Verfügung, ideal als Lagerraum, für einen Hobby-oder Fitnessbereich, eine Werkstatt oder weitere individuelle Nutzungsmöglichkeiten.
Das große Grundstück bietet vielfältige Gestaltungspotenziale, ob für Gartenliebhaber, eine großzügige Terrasse, Spielflächen für Kinder oder weitere Außenanlagen. Auf der großen Einfahrt werden 4 Autos Platz finden.
Das neue Tor zur Einfahrt ist bequem aus dem Auto heraus elektronisch zu öffnen und zu schließen.
Insgesamt präsentiert sich dieses Objekt als hochwertiges, zukunftssicheres Zuhause, das moderne Wohnansprüche für eine große Familie auf hohem Niveau erfüllt.
Haftungsausschluss
Alle Angaben basieren auf Informationen, die uns von den Eigentümern zur Verfügung gestellt wurden. Für die Richtigkeit, Vollständigkeit und Aktualität dieser Angaben übernehmen wir keine Gewähr. Änderungen, Irrtümer und der Zwischenverkauf bleiben vorbehalten.
Traumhafter Neubau mit 6 Zimmern auf 1.035 m² Grund | Zeesen
15711 Königs Wusterhausen
Die vollständige Adresse der Immobilie erhalten Sie vom Anbieter.
Auf Karte anzeigen
Die vollständige Adresse der Immobilie erhalten Sie vom Anbieter.
Finanzierungszertifikat
In nur zwei Minuten zu Ihrem persönlichen Finanzierungszertifkat.
Infos
| Haustyp | Einfamilienhaus |
|---|---|
| Etagenzahl | 2 |
| Wohnfläche ca. | 224 m2 |
| Grundstücksfläche | 1.035 m2 |
| Zimmer | 6 |
| Schlafzimmer | 5 |
| Badezimmer | 3 |
| Garage/Stellplatz | Außenstellplatz |
| Anzahl Garage/Stellplatz | 4 |
Kosten
| Kaufpreis |
1.150.000 € |
|---|---|
| Provision |
3,57 % Bei Abschluss eines notariellen Kaufvertrages wird eine vom Käufer an du Chesne Immobilien Group zu entrichtende Provision in Höhe von 3,57% des tatsächlichen Kaufpreises inkl. Gesetzlicher MwSt. |
Finanzierungsrechner:
Kaufpreis:
600.000 €
Eigenkapital:
600.000 €
Monatliche Rate
0 €
Effektiver Jahreszins
0 %
Sollzinsbindung
10 Jahre
Bausubstanz & Energieausweis
| Baujahr | 2023 |
|---|---|
| Letzte Sanierung | 2023 |
| Objektzustand | Erstbezug |
| Qualität der Austattung | Gehoben |
| Heizungsart | Wärmepumpe |
| Wesentliche Energieträger | Strom |
| Energieausweis | liegt zur Besichtigung vor |
Beschreibung des Objekts
Lage
Die Liegenschaft befindet sich in Zeesen, einer ruhigen, zentralen Wohnlage von Königs Wusterhausen. Einkaufsmöglichkeiten, Schulen, medizinische Versorgung sowie Freizeit- und Naherholungsangebote befinden sich im nahen Umfeld. Der Bahnhof Zeesen oder auch der Bahnhof Königs Wusterhausen sind schnell erreichbar und bieten Anschluss an Regionalbahnen sowie die S-Bahn (z. B. S46) in Richtung Berlin.
Mit dem PKW besteht eine sehr gute Anbindung über die A10 (Berliner Ring) sowie die Bundesstraßen der Umgebung, sodass Berlin und das Umland bequem erreichbar sind. Die grüne Umgebung und die Nähe zu Seen und Wäldern sorgen für einen hohen Erholungswert.
Sonstige Angaben
Bei Rückfragen oder dem Wunsch einer Besichtigung, gerne auch am Wochenende, erreichen Sie mich unter 0172 3272 272 oder per Mail: rn@du-chesne.de.
Mit freundlichen Grüßen
Robert Nowak
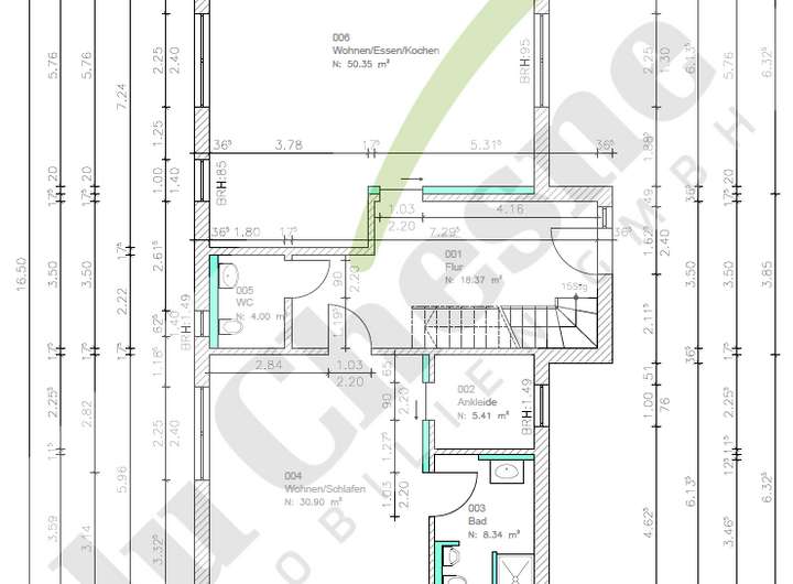
Grundriss
Grundriss EG
>
>
Grundriss OG
>
>
Grundriss KG
>
>
Schnittzeichnung
>
>
Adresse
15711 Königs Wusterhausen
Interessante Orte
Preis- und Lageinformationen
Preistrend für Bestandsimmobilien in Königs Wusterhausen