Dieses im Baujahr 1978 errichtete Einfamilienhaus, welches aktuell als Mehrfamilienhaus genutzt wird, in attraktiver Lage stellt eine ausgezeichnete Investitionsmöglichkeit dar und bietet zugleich flexible Nutzungsmöglichkeiten. Die Immobilie war ursprünglich ein Einfamilienhaus und ist aktuell in drei separate Wohneinheiten aufgeteilt. Sie erzielt stabile jährliche Kaltmieteinnahmen von 23.250 €. Die Immobilie kann aber jederzeit wieder als Einfamilienhaus genutzt werden.
Auf einer großzügigen Wohnfläche von 169 m² stehen Ihnen insgesamt 6 Zimmer zur Verfügung, darunter 3 Schlafzimmer. Eine Besonderheit ist die Option, das Haus bei Bedarf schnell und unkompliziert wieder in ein großzügiges Einfamilienhaus umzuwandeln, was Ihnen maximale Gestaltungsfreiheit für die Zukunft ermöglicht. Der Verkäufer kann hier unterstützend tätig werden.
Das Haus ist derzeit in drei separate Wohneinheiten unterteilt. Im Erdgeschoss (EG) befinden sich zwei eigenständige Wohnungen. Jede dieser Einheiten bietet jeweils ein Schlafzimmer, ein modernes Badezimmer, sowie einen offenen Wohn- und Essbereich mit integrierter Einbauküche. Beide Erdgeschosswohnungen verfügen über direkten Zugang zu einer der zwei Terrassen und dem großen Garten. Die dritte Wohneinheit befindet sich im Dachgeschoss und verfügt ebenfalls über einen offenen Wohn- und Essbereich mit Einbauküche und ein geräumiges Badezimmer, das sowohl mit einer Dusche als auch einer Badewanne ausgestattet ist.
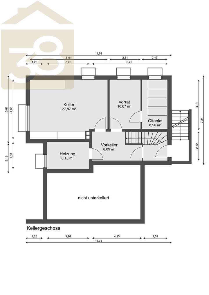
Die Beheizung erfolgt effizient über eine Öl-Zentralheizung. Das Haus ist teilunterkellert und bietet in diesem Bereich zwei weitere nutzbare Räume.
Das großzügige 800 m² Grundstück umfasst ca. 300 m² ausgewiesenes Bauland, was zukünftiges Entwicklungspotenzial schafft. Ein kürzlich erfolgter Modernisierungsschritt war der Einbau neuer Fenster im Jahr 2023, welcher zur Energieeffizienz und einem zeitgemäßen Wohnstandard beiträgt.
Für Fahrzeuge stehen insgesamt vier Stellplätze zur Verfügung: eine Garage mit zwei Stellplätzen sowie zwei zusätzliche Außenstellplätze.
Dieses Mehrfamilienhaus ist ideal für Eigennutzer oder als renditestarkes Investment. Lassen Sie sich diese Gelegenheit nicht entgehen und vereinbaren Sie noch heute einen Besichtigungstermin! Wir freuen uns auf Ihre Anfrage.
Modernes & saniertes Haus mit guter Rendite und Baugrundstück! Meine Immobilie = Mein Partner!
38471 Rühen
Die vollständige Adresse der Immobilie erhalten Sie vom Anbieter.
Auf Karte anzeigen
Die vollständige Adresse der Immobilie erhalten Sie vom Anbieter.
Finanzierungszertifikat
In nur zwei Minuten zu Ihrem persönlichen Finanzierungszertifkat.
Infos
| Haustyp | Einfamilienhaus |
|---|---|
| Etagenzahl | 1 |
| Wohnfläche ca. | 169 m2 |
| Grundstücksfläche | 800 m2 |
| Bezugsfrei ab | sofort |
| Zimmer | 6 |
| Schlafzimmer | 3 |
| Badezimmer | 3 |
| Garage/Stellplatz | Garage |
| Anzahl Garage/Stellplatz | 4 |
Kosten
| Kaufpreis |
369.000 € |
|---|---|
| Preis für Garage/Stellplatz | 60 € |
| Provision |
3,57 % Käuferprovision inklusive Umsatzsteuer. Die Käufer-Provision beträgt 3,57 % vom Kaufpreis inkl. MwSt. Die Käufer-Provision ist verdient und fällig mit notarieller Beurkundung. |
Finanzierungsrechner:
Kaufpreis:
600.000 €
Eigenkapital:
600.000 €
Monatliche Rate
0 €
Effektiver Jahreszins
0 %
Sollzinsbindung
10 Jahre
Bausubstanz & Energieausweis
| Baujahr | 1978 |
|---|---|
| Letzte Sanierung | 2025 |
| Bauphase | Haus fertig gestellt |
| Objektzustand | Modernisiert |
| Qualität der Austattung | Normal |
| Heizungsart | Zentralheizung |
| Wesentliche Energieträger | Öl |
| Energieausweis | liegt zur Besichtigung vor |
Beschreibung des Objekts
Ausstattung
+ 169 m² Wohnfläche
+ Mehrfamilienhaus mit drei Wohneinheiten
+ Möglichkeit zum Einfamilienhaus zurück zu bauen
+ 800 m² Grundstücksfläche (davon ca. 300 m² Bauland)
+ Neue Fenster in 2023
+ 6 Zimmer
+ 3 Einbauküchen
+ 2 Terrassen
+ Garten
+ Teilunterkellert
+ Öl-Zentralheizung
+ 2 Garagenstellplätze
+ 2 Außenstellplätze
+ 2000,-€ Nettomiete p.m.
Lage
Entdecken Sie Ihr neues Zuhause in der charmanten Gemeinde Rühen, die eine ideale Kombination aus ländlichem Flair und urbaner Annehmlichkeiten bietet. Rühen liegt in der Nähe von Wolfsburg und ist somit perfekt für Pendler, die die Vorzüge der Natur mit der Nähe zur Stadt verbinden möchten.
Die ruhige und familienfreundliche Nachbarschaft zeichnet sich durch eine gute Infrastruktur aus. In unmittelbarer Nähe finden Sie Schulen, Kindergärten und Einkaufsmöglichkeiten, die den Alltag erleichtern. Außerdem gibt es zahlreiche Freizeitmöglichkeiten, wie Wander- und Radwege, die zu Erholung und sportlichen Aktivitäten einladen.
Die Anbindung an den öffentlichen Nahverkehr und die Autobahn ist hervorragend, sodass Sie in kurzer Zeit sowohl Wolfsburg als auch andere Städte erreichen können. Genießen Sie die Vorzüge eines ruhigen Lebensraums mit gleichzeitig bester Erreichbarkeit urbaner Zentren.
Diese Lage bietet Ihnen die perfekte Balance zwischen Ruhe und Lebensqualität – ideal für Familien, Paare oder auch als Kapitalanlage.
Überzeugen Sie sich selbst von den Vorzügen dieser attraktiven Lage in Rühen!
Sonstige Angaben
Gerne laden wir Sie zu einer Besichtigung ein, um Ihnen vielleicht Ihr neues Zuhause bekannt zu machen.
Bei Interesse und zur Vereinbarung von Besichtigungsterminen setzen Sie sich bitte mit uns über das Kontaktformular in Verbindung. Bitte geben Sie hierbei Ihre vollständige Kontaktadresse an. Unvollständige Anfragen werden nicht bearbeitet.
Unser Angebot ist nur für den Empfänger bestimmt. Da die in diesem Exposé enthaltenen Angaben auf Informationen des Eigentümers beruhen, können wir für die Richtigkeit trotz aller Sorgfalt keine Gewähr übernehmen. Hierfür bitten wir höflich um Ihr Verständnis.
Die Datenverarbeitung erfolgt auf Grundlage von Art. 6 Abs. 1 lit. b) DSGVO. Sie müssen dabei diejenigen personenbezogenen Daten angeben, die für die Bearbeitung Ihres jeweiligen Anliegens bzw. die Vorbereitung oder Durchführung der Geschäftsbeziehung mit Ihnen erforderlich sind. Ohne diese Daten werden wir nicht in der Lage sein, Ihre Anfrage zu bearbeiten bzw. den Vertrag mit Ihnen zu erfüllen. Ich stimme daher zu, das OM Immobilienmanagement meine personenbezogenen Daten im Einzelfall z.B. bei Kauf- oder Mietvertragsabschlüssen abspeichert und an Dritte (Eigentümer/Notar/Behörden) übermitteln darf.
Grundriss
Grundriss EG
>
>
Grundriss DG
>
>
Grundriss KG
>
>
Adresse
38471 Rühen
Interessante Orte
Preis- und Lageinformationen
Preistrend für Bestandsimmobilien in Rühen