Dieses moderne Fertighaus bietet jungen Familien mit bis zu zwei Kindern ein durchdachtes Zuhause zum Wohlfühlen. Die klare Architektur mit weißem Mineralputz, Erker, Balkon und großen Glasflächen fügt sich harmonisch in jedes Baugebiet ein. Im Erdgeschoss überzeugt der offene Wohn-, Ess- und Kochbereich, während praktische Räume wie Technikraum, Garderobe und Gäste-WC kurze Wege ermöglichen. Das Dachgeschoss bietet zwei gleich große Kinderzimmer, ein Elternschlafzimmer mit Ankleide sowie ein komfortables Wellnessbad. So entsteht ein familienfreundliches Wohnkonzept mit viel Licht, Funktionalität und Raum für gemeinsame Zeit.
Grundrisse und Abbildungen können Extras zeigen. Flächenangaben nach DIN 277.
Ihr Familienhaus für die Region Hamburg
23919 Berkenthin
Die vollständige Adresse der Immobilie erhalten Sie vom Anbieter.
Auf Karte anzeigen
Die vollständige Adresse der Immobilie erhalten Sie vom Anbieter.
Finanzierungszertifikat
In nur zwei Minuten zu Ihrem persönlichen Finanzierungszertifkat.
Infos
| Haustyp | Einfamilienhaus |
|---|---|
| Etagenzahl | 2 |
| Wohnfläche ca. | 126 m2 |
| Grundstücksfläche | 499 m2 |
| Zimmer | 4 |
| Schlafzimmer | 3 |
| Badezimmer | 1 |
Kosten
| Kaufpreis |
462.300 € |
|---|
Finanzierungsrechner:
Kaufpreis:
600.000 €
Eigenkapital:
600.000 €
Monatliche Rate
0 €
Effektiver Jahreszins
0 %
Sollzinsbindung
10 Jahre
Bausubstanz & Energieausweis
| Baujahr | 2026 |
|---|---|
| Bauphase | Haus in Planung (projektiert) |
| Energieausweis | laut Gesetz nicht erforderlich |
Beschreibung des Objekts
Ausstattung
Unsere Bien-Zenker Häuser werden in langlebiger Qualitätsausführung "zur Ausstattung fertig" angeboten. Enthalten sind unter anderem:
- moderne PV-Anlage mit europäischen Modulen und VARTA-Speicher
- Außenwände im KfW-40-Energieeffizienzstandard
- hochwertige 3-fach-verglaste Fenster (KfW 40)
- elektrische, gedämmte Alu-Rollläden im Erd- und Obergeschoss, inklusive Smart-Home-Steuerung
- neueste Wohlfühlklimaheizung Plus mit kontrollierter Be- und Entlüftung sowie Wärmerückgewinnung
- integrierte Kühlfunktion für warme Tage
- freie Grundrissplanung
- Bodenplatte
Den letzten Feinschliff gestalten Sie nach Ihren Wünschen:
Malerarbeiten, Bodenbeläge, Innentüren und Sanitärobjekte fehlen bewusst, um Ihnen maximale Gestaltungsfreiheit zu lassen. Diese Gewerke können auf Wunsch selbstverständlich ergänzt werden.
Im Angebot enthalten:
- Grundstück
- Bodengutachten
- BlowerDoor-Test
- zuzüglich Baunebenkosten
Wenn Sie Eigenleistungen einbringen und Kosten sparen möchten, können einzelne Gewerke flexibel herausgenommen werden.
Bei Fragen oder individuellen Anpassungen stehe ich Ihnen gern zur Verfügung.
Lage
⛵ Bauen in Berkenthin (23919): Charmanter Amtssitz mit besten Lücken!
Berkenthin, der attraktive Amtssitz in der Lauenburgischen Seenplatte, bietet eine hohe Wohn- und Lebensqualität mit direkter Nähe zum Elbe-Lübeck-Kanal. Die Gemeinde verfügt über eine solide, voll entwickelte Infrastruktur mit Schulen, Kitas und Einkaufsmöglichkeiten. Die Schließung einer Baulücke ist hier Ihre seltene Gelegenheit, in einer bereits etablierten, gefragten Lage zu bauen.
Sonstige Angaben
Unsere herausragenden Merkmale auf einen Blick:
- Über 120 Jahre Erfahrung
- Alle Häuser "Made in Germany"
- 30 Jahre Gewährleistung auf die Grundkonstruktion
- 5 Jahre Gewährleistung auf alle anderen Elemente
- Ausgezeichnet als:
- Fairstes Preis-Leistungsverhältnis
- Fairster Fertighausanbieter
- Höchste Nachhaltigkeit und Verantwortung
- Über 80.000 erfolgreich gebaute Häuser
- Bien-Zenker Service-Center-App
- Inkludierte Versicherungsleistungen:
- Bauherrenhaftpflicht
- Bau- und Unfallversicherung
- Bauleistungsversicherung
- Wohngebäudeversicherung
- Baufinanzierungsschutz
- Unterstützung bei der Finanzierung
- Hilfe bei der Grundstückssuche
- Individuelle Grundrissplanung - keine Standardhäuser
- Komplette Abwicklung aus einer Hand
- Festpreisgarantie für 18 Monate
- Bestpreisgarantie: Wenn die Baupreise sinken, sinkt auch Ihr Hauspreis nachträglich
- Bauzeitgarantie
- Crefo-zertifiziert
- BIEN ZENKER Bauherren-APP, um Sie stets auf dem aktuellen Stand zu halten
Die Baunebenkosten müssen noch berücksichtigt werden. Gerne bespreche ich diese mit Ihnen, um Ihnen eine umfassende Kostensicherheit zu bieten und böse Überraschungen zu vermeiden!
Zusätzlich biete ich Ihnen interessante Finanzierungsmöglichkeiten an und unterstütze Sie bei der Beantragung aller verfügbaren Fördermittel!
Gemeinsam mit unseren Architekten planen wir Ihr individuelles BIEN ZENKER-Haus, das perfekt auf Ihre Bedürfnisse zugeschnitten ist - kein "Haus von der Stange".
Sind Sie interessiert? Zögern Sie nicht und rufen Sie uns gleich an, um einen Gesprächstermin zu vereinbaren.
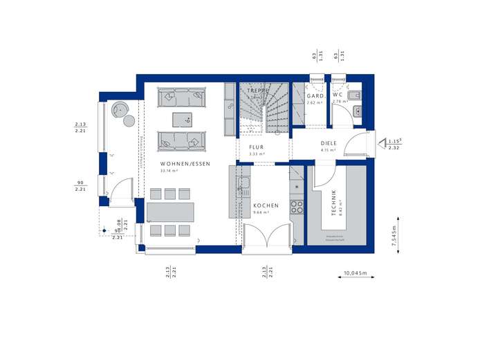
Grundriss
EVO 122 V3 KAT EG
>
>
EVO 122 V3 KAT DG
>
>