Das Reihenhaus wurde 2008 in Massivbauweise errichtet.
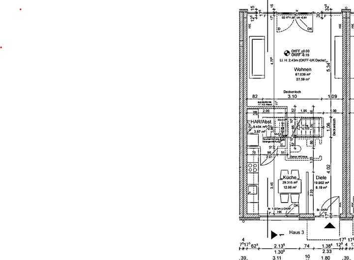
Das Erdgeschoss verfügt über ein geräumiges Wohnzimmer mit Zugang zur Süd-Terrasse, eine geräumige, offene Küche, einen Hauswirtschaftsraum sowie einen Flur.
Im Obergeschoss sind ein großes, offenes Studio, ein gefliestes Vollbad und ein weiteres Wohn-/ Schlafzimmer vorhanden.
Das Dachgeschoss verfügt über ein großes, lichtdurchflutetes Zimmer mit einer anliegenden Süd-Dachterrasse.
Die Zimmer sind mit Laminat bzw. Vinyl ausgestattet; Bad, Küche und Hauswirtschaftsraum sind gefliest. Die oberen Geschosse sind über moderne Stahltreppen erreichbar. Im Objekt sind eine Einbauküche, eine Waschmaschine und ein Trockner vorhanden; diese können gegen Zahlung eines Abstandes übernommen werden.
Das gemütliche Grundstück ist pflegeleicht gestaltet. Neben der Terrasse sind weiterhin ein kleiner Schuppen sowie Rasenfläche vorhanden. Zum Haus gehört ein PKW-Außenstellplatz.
Modernes Reihenhaus mit Dachterrasse in Greifswald
17491 Greifswald
Die vollständige Adresse der Immobilie erhalten Sie vom Anbieter.
Auf Karte anzeigen
Die vollständige Adresse der Immobilie erhalten Sie vom Anbieter.
Infos
| Haustyp | Reihenmittelhaus |
|---|---|
| Wohnfläche ca. | 140 m2 |
| Grundstücksfläche | 150 m2 |
| Bezugsfrei ab | sofort |
| Zimmer | 4 |
| Schlafzimmer | 3 |
| Badezimmer | 1 |
| Anzahl Garage/Stellplatz | 1 |
Kosten
| Kaltmiete |
1.600 € |
|---|---|
| Nebenkosten | + 100 € |
| Heizkosten | keine Angabe |
| Gesamtmiete | 1.700 € |
| Miete für Garage/Stellplatz | 50 € |
| Kaution o. Genossenschaftsanteile | 2 Kaltmieten |
Weiter mieten oder doch kaufen?
Wer in Miete wohnt, überweist dem Vermieter im Laufe der Jahre hohe Summen, die sich
auch in die eigenen vier Wände investieren lassen könnten.
Bausubstanz & Energieausweis
| Baujahr | 2008 |
|---|---|
| Heizungsart | Fernwärme |
| Wesentliche Energieträger | Fernwärme |
| Energieausweis | liegt vor |
| Energieausweistyp | Verbrauchsausweis |
| Energieverbrauchskennwert | 50,3 kWh/(m²*a) |
| Energieeffizienzklasse | B |
50,3
kWh/(m²*a)
Energieeffizienzklasse B
- A+
- A
- B
- C
- D
- E
- F
- G
- H
- 0
- 25
- 50
- 75
- 100
- 125
- 150
- 175
- 200
- 225
- >250
Beschreibung des Objekts
Lage
Das Reihenhaus liegt am Rande der Obstbausiedlung, einer der begehrtesten Wohngegenden der Hanse- und Universitätsstadt Greifswald. In unmittelbarer Nähe befinden sich Einkaufsmöglichkeiten, Schule, Ärzte, Bahnhof und öffentliche Verkehrsmittel u.a.. Die Innenstadt von Greifswald ist kurzfrisitg zu erreichen. Das gesamte Wohngebiet ist in den letzten 15 Jahren entstanden und hat sich auf Grund der nahen Stadtlage zu einem begehrtem Wohnumfeld entwickelt.
Sonstige Angaben
Kaltmiete 1.600,- €
BK 100,- €
Stellplatz 50,- €
Gesamt 1.750,- €
(zzgl. Strom, Wasser, Abwasser, Fernwärme)
Adresse
17491 Greifswald
Interessante Orte
Preis- und Lageinformationen
Preistrend für Bestandsimmobilien in Schönwalde I / Südstadt