Willkommen in Ihrem neuen Traumhaus in Trippstadt, Kaiserslautern! Dieses großzügige, projektiertes Eigenheim mit 5 Zimmern und einer Wohnfläche von 173,21 m² wird ganz nach Ihren Vorstellungen und Wünschen gestaltet. Auf einem weitläufigen Grundstück von 640 m² erstreckt sich das zweigeschossige Haus, das Ihnen mit seinen vier Schlafzimmern und einem Badezimmer mit Dusche, Wanne und Fenster sowie einem zusätzlichen Gäste-WC ausreichend Platz für die ganze Familie bietet.
Das durchdachte Projekt- und Baukonzept ermöglicht es Ihnen, Ihr Zuhause nach Ihren individuellen Bedürfnissen zu gestalten. Mit einem Fokus auf Nachhaltigkeit und Energieeffizienz entspricht das Haus den Standards eines Niedrigenergiehauses (KFW40 oder KFW55), sodass Sie nicht nur komfortabel wohnen, sondern auch aktiv zur Schonung der Umwelt beitragen.
Die Möglichkeiten zur Personalisierung sind nahezu unbegrenzt - von den Bodenbelägen, die wahlweise aus Dielen, Fertigparkett, Fliesen oder Laminat bestehen können, bis hin zur Farbgestaltung der Wände. Die Wahl hochwertiger Materialien sorgt nicht nur für eine ansprechende Optik, sondern auch für ein angenehmes Raumklima.
Mit einer modernen Wärmepumpe als Befeuerungsart profitieren Sie von einer umweltfreundlichen und kosteneffizienten Heizlösung, die Ihnen in der kalten Jahreszeit ein warmes Zuhause garantiert.
Ihr individuelles Traumhaus in Trippstadt - gestalten Sie Ihr Zuhause nach Ihren Wünschen!
67705 Trippstadt
Die vollständige Adresse der Immobilie erhalten Sie vom Anbieter.
Auf Karte anzeigen
Die vollständige Adresse der Immobilie erhalten Sie vom Anbieter.
Finanzierungszertifikat
In nur zwei Minuten zu Ihrem persönlichen Finanzierungszertifkat.
Infos
| Etagenzahl | 2 |
|---|---|
| Wohnfläche ca. | 173 m2 |
| Grundstücksfläche | 640 m2 |
| Zimmer | 5 |
| Schlafzimmer | 4 |
| Badezimmer | 1 |
| Garage/Stellplatz | Garage |
| Anzahl Garage/Stellplatz | 1 |
Kosten
| Kaufpreis |
460.739 € |
|---|---|
| Preis für Garage/Stellplatz | 8.000 € |
Finanzierungsrechner:
Kaufpreis:
600.000 €
Eigenkapital:
600.000 €
Monatliche Rate
0 €
Effektiver Jahreszins
0 %
Sollzinsbindung
10 Jahre
Bausubstanz & Energieausweis
| Baujahr | unbekannt |
|---|---|
| Bauphase | Haus in Planung (projektiert) |
| Qualität der Austattung | Gehoben |
| Heizungsart | Wärmepumpe |
Beschreibung des Objekts
Ausstattung
- Hochwertige Ausstattung mit verschiedenen Bodenbelägen wie Dielen, Fertigparkett, Fliesen, Laminat und Parkett nach Wunsch.
- Bäder mit Dusche, Wanne und Fenster für maximalen Komfort.
- Wärmepumpe für effiziente Beheizung und umweltfreundliches Wohnen.
- Niedrigenergiehaus mit KFW40 und KFW55 Standards für hohe Energieeffizienz und Kostensenkung.
Lage
Das Haus ist auf einem realen Baugrundstück geplant oder auf einem Grundstück in einer Planungsphase. Das Grundstück erwerben Sie direkt vom Eigentümer.
Bitte haben Sie Verständnis, dass wir ohne ein persönliches Gespräch keine Grundstücksdaten weiterleiten.
Gern sind wir bei der Wahl Ihres Traumgrundstückes behilflich! Natürlich können wir ihren Haustraum auch auf einem anderen Grundstück realisieren, lassen Sie sich dazu in einem unverbindlichen Gespräch zu Ihrem Bauvorhaben beraten.
Wir freuen uns auf Sie!
Stefan Wirth
Verkaufsberatung Einfamilienhaus (IHK zertifiziert)
Mobil 0174 2463732
Mail: stefan.wirth@allkauf.de
Sonstige Angaben
allkauf heißt:
Maximale Sicherheit, kurze Lieferzeiten, garantierte Fertigstellung.
Wir bieten:
- kurze Lieferzeiten
- Liefergarantie
- Garantierte Sicherheit
- Festpreisgarantie
- Fertigstellungsgarantie
Zu allen Häusern gehört:
- Energieeffizienzwand
- Echtholztreppe
- Luft-Wasser-Wärmepumpe
- Fußbodenheizung
- Be- und Entlüftungsanlage
- 3-fach verglaste Fenster inklusive Rollläden mit Aluminiumlamellen
- Lichte Raumhöhe 2,75 m
- inkl. erhöhten Fenstern und Türen
- TOXPROOF Gütesiegel - schadstoffgeprüfter Materialien
- Just-in-Time-Lieferungen
- Bemustern im eigenen Bemusterungszentrum mit Markenprodukten
Ob Einfamilienhaus, Doppelhaus oder Bungalow - bei allkauf finden Sie Ihr Traumhaus!
Vereinbaren Sie noch heute Ihren Termin zur Planung Ihres allkauf Traumhauses.
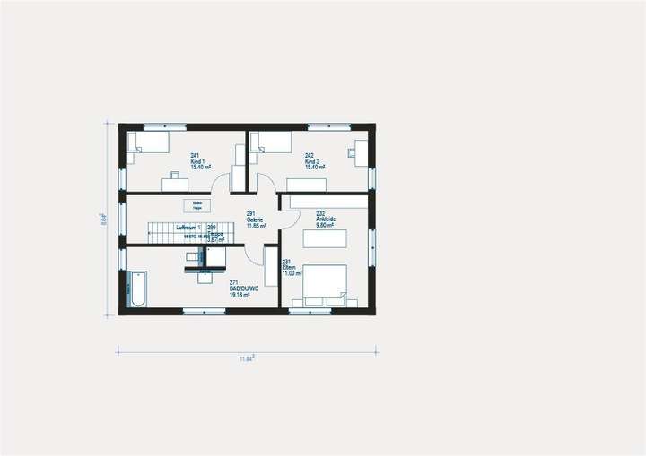
Grundriss
Erdgeschoss
>
>
Obergeschoss
>
>
Adresse
67705 Trippstadt
Interessante Orte
Preis- und Lageinformationen
Preistrend für Bestandsimmobilien in Trippstadt