Das eigentliche Haupthaus wurde im Jahr 1971 errichtet. 1995 erfolgte ein Anbau von zwei weiteren Wohneinheiten.
Die jetzige Wohnfläche von ca. 334 m² verteilt sich auf drei Wohneinheiten: eine zweigeschossige Einheit (ehemaliges Haupthaus), eine Erdgeschosswohnung sowie eine Dachgeschosswohnung. Das Objekt ist bereits gemäß WEG geteilt.
Das ehemalige Einfamilienhaus bietet eine durchdachte Raumaufteilung mit sieben lichtdurchfluteten Zimmern, verteilt auf zwei Etagen. Eine Garage sowie ein PKW-Stellplatz vor dem Haus sichern ausreichende Stellflächen. Die Einheit ist derzeit fremdvermietet, wird jedoch zum 01. April 2026 bezugsfrei.
Die Erdgeschosswohnung ist aktuell nicht vermietet. Hier finden Sie drei Zimmer vor: einen großen Wohn- und Essbereich, eine geräumige Küche, zwei Schlafzimmer, ein Bad sowie einen praktischen Abstellraum.
Die derzeit vermietete Einliegerwohnung im Obergeschoss des Objekts bietet vier Zimmer mit offenem Wohn- und Essbereich. Ein gemütlicher Balkon lädt zum Entspannen im Freien ein und das Carport ermöglicht bequemes Parken. Die aktuellen Mieteinnahmen belaufen sich auf 700,00 € monatlich.
Das Objekt befindet sich in einem guten Pflegezustand und wurde regelmäßig instandgehalten.
Drei Wohneinheiten, ein Zuhause - solides Dreifamilienhaus in Westerstede!
26655 Westerstede
Die vollständige Adresse der Immobilie erhalten Sie vom Anbieter.
Auf Karte anzeigen
Die vollständige Adresse der Immobilie erhalten Sie vom Anbieter.
Finanzierungszertifikat
In nur zwei Minuten zu Ihrem persönlichen Finanzierungszertifkat.
Infos
| Haustyp | Mehrfamilienhaus |
|---|---|
| Wohnfläche ca. | 333 m2 |
| Grundstücksfläche | 894 m2 |
| Zimmer | 14 |
| Schlafzimmer | 8 |
| Badezimmer | 7 |
Kosten
| Kaufpreis |
415.000 € |
|---|---|
| Provision |
7,14 inkl. MwSt |
Finanzierungsrechner:
Kaufpreis:
600.000 €
Eigenkapital:
600.000 €
Monatliche Rate
0 €
Effektiver Jahreszins
0 %
Sollzinsbindung
10 Jahre
Bausubstanz & Energieausweis
| Baujahr | 1971 |
|---|---|
| Wesentliche Energieträger | Erdgas leicht |
| Energieausweis | liegt vor |
| Energieausweistyp | Bedarfsausweis |
| Energieverbrauchskennwert | 139,0 kWh/(m²*a) |
| Energieeffizienzklasse | E |
139,0
kWh/(m²*a)
Energieeffizienzklasse E
- A+
- A
- B
- C
- D
- E
- F
- G
- H
- 0
- 25
- 50
- 75
- 100
- 125
- 150
- 175
- 200
- 225
- >250
Beschreibung des Objekts
Ausstattung
- Massivbauweise
- Verblender mit hellem Klinker
- Satteldach mit Betonfalzziegeln
- Bodenbeläge: Fliesen, Laminat, Holzdielen
- Kunststofffenster mit doppelter Isolierverglasung aus 2021
- Außenrollläden
- Gas-Zentralheizung: Wohnhaus: Bj. 2005; Anbau: Bj. 1997
- Pflasterung erneuert in 2021
- Erneuerung Haustür 2022
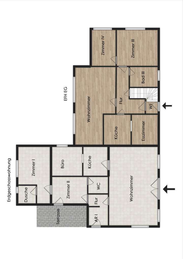
Aufteilung:
I. Einfamilienhaus Erdgeschoss (90,2 m²)
- Windfang
- Flur
- Küche
- Esszimmer
- Wohnzimmer
- Zimmer III
- Zimmer IV
- Bad III
II. Einfamilienhaus Obergeschoss (70,9m²)
- Flur
- Bad III
- Zimmer III
- Zimmer IV
- Bad IV
- Zimmer V
- Bad V
Sonstiges:
- Doppelgarage
- PKW-Stellplatz
III. Erdgeschosswohnung (86,93m²):
- Wohnzimmer
- Flur
- Abstellraum I
- Zimmer II
- WC
- Zimmer I
- Bad I
- Küche
- Büro
- Terrasse
Sonstiges:
- 2 PKW-Stellplätze
- überdachte Terrasse
IV. Einliegerwohnung im Obergeschoss (85,8m²)
- überdachter Balkon
- Wohnzimmer
- Küche
- Flur
- Bad
- Zimmer I
- Zimmer II
- Abstellraum
- Zimmer III
- Ausgebauter Spitzboden mit zwei weiteren Zimmern
Sonstiges:
- Carport
Lage
Das Grundstück befindet sich in Hollriede, einem kleinen Stadtteil Westerstedes, welcher sich etwas außerhalb des städtischen Trubels befindet. Innerhalb von nur 10 Minuten erreichen sie die Innenstadt jedoch problemlos. In der Fußgängerzone finden Sie sämtliche Geschäfte des täglichen Bedarfs. Schulen, Kindergärten, Ärzte sowie diverse Freizeit- und Erholungsmöglichkeiten befinden sich im Stadtkern Westerstedes und sind somit ebenfalls in unmittelbarer Umgebung.
Durch die gute Verkehrsanbindung über die Autobahn A28 sind auch die umliegenden Städte Oldenburg, Bad Zwischenahn und Leer schnell erreichbar. Eine regelmäßige Busverbindung sorgt zudem für eine gute Anbindung an den öffentlichen Nahverkehr.
Die Lage ist damit sowohl für Familien als auch Kapitalanleger äußerst attraktiv – sie verbindet zentrales Wohnen mit der Ruhe einer gepflegten, grünen Wohngegend.
Grundriss
Erdgeschoss
>
>
Obergeschoss
>
>
Adresse
26655 Westerstede
Interessante Orte
Preis- und Lageinformationen
Preistrend für Bestandsimmobilien in Westerstede