Willkommen in Ihrem neuen Zuhause – ein modernes Einfamilienhaus, das Zukunft, Komfort und Wohnqualität neu definiert.“
Dieses Neubau-Einfamilienhaus präsentiert sich als außergewöhnlich attraktives Angebot für Käufer, die Wert auf zeitgemäße Architektur, funktionale Grundrisse und hochwertige Ausstattung legen. Das Objekt ist bereits vollständig einzugbereit und wartet nur darauf, seinen neuen Eigentümer in einem harmonischen Wohnambiente willkommen zu heißen – vielleicht sogar schon zum kommenden Weihnachtsfest.
Das Haus verbindet moderne Technik, energieeffiziente Haustechnik und klare Gestaltung zu einem Wohnkonzept, das sowohl Familien als auch anspruchsvolle Paare begeistert. Lichtdurchflutete Räume, eine hochwertige Ausstattung und die Möglichkeit, die Innenräume nach eigenem Geschmack zu gestalten, machen diese Immobilie zu einem Ort, an dem Wohnträume wahr werden.
Flexible und frei gestaltbare Inneneinrichtung
Das Objekt wird unmöbliert übergeben, sodass Sie die Innenräume frei nach Ihren Wünschen und Ihrem persönlichen Stil gestalten können.
Die abgebildete Möblierung stellt eine KI-basierte Visualisierung dar und dient ausschließlich der Veranschaulichung. Die gezeigten Bodenbeläge sind hingegen real und entsprechen dem tatsächlichen Zustand der Immobilie. Die Immobilie befindet sich in einem einzugsbereiten Zustand.
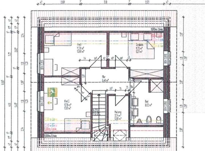
Hier die Raumaufteilung:
Erdgeschoss:
Eingang Flur : ca. 13,49 m²
Gast: ca. 14,70 m²
Gäste WC mit Dusche : ca. 4,10 m²
Wohnzimmer: ca. 22,35 m²
Küche: ca. 14,06 m²
HWR: ca. 7,29 m²
(gesamte Fläche: ca. 75,99 m²)
Obergeschoss
Flur: ca. 6,48 m²
Bad: ca. 3,52 m²
Kind1: ca. 12,78 m²
Kind2: ca. 12,79 m²
Zimmer : ca. 12,71 m²
(gesamte Fläche: ca. 48,28m²)
Angaben zum Energieausweis:
Art: Bedarfsausweis
Gültig bis: 23.04.2035
Endenergiebedarf: 90,3 kWh/(m²*a)
Baujahr lt. Energieausweis: 2021
Wesentlicher Energieträger: Erdgas
Baujahr der Heizung: 2023
Energieeffizienzklasse: C
*Top ausgestattetes, neu gebautes Einfamilienhaus wartet auf Sie!*
26903 Surwold
Die vollständige Adresse der Immobilie erhalten Sie vom Anbieter.
Auf Karte anzeigen
Die vollständige Adresse der Immobilie erhalten Sie vom Anbieter.
Finanzierungszertifikat
In nur zwei Minuten zu Ihrem persönlichen Finanzierungszertifkat.
Infos
| Haustyp | Einfamilienhaus |
|---|---|
| Wohnfläche ca. | 130 m2 |
| Grundstücksfläche | 383 m2 |
| Zimmer | 5 |
| Anzahl Garage/Stellplatz | 2 |
Kosten
| Kaufpreis |
0 € |
|---|---|
| Provision |
4,17 % Käuferprovision (inkl. gesetzl. MwSt.) |
Finanzierungsrechner:
Kaufpreis:
600.000 €
Eigenkapital:
600.000 €
Monatliche Rate
0 €
Effektiver Jahreszins
0 %
Sollzinsbindung
10 Jahre
Bausubstanz & Energieausweis
| Baujahr | 2025 |
|---|---|
| Objektzustand | Erstbezug |
| Wesentliche Energieträger | Erdgas leicht |
| Energieausweis | liegt vor |
| Energieausweistyp | Bedarfsausweis |
| Energieverbrauchskennwert | 90,3 kWh/(m²*a) |
| Energieeffizienzklasse | B |
90,3
kWh/(m²*a)
Energieeffizienzklasse B
- A+
- A
- B
- C
- D
- E
- F
- G
- H
- 0
- 25
- 50
- 75
- 100
- 125
- 150
- 175
- 200
- 225
- >250
Beschreibung des Objekts
Ausstattung
Ausstattungshighlights – modern, durchdacht und zukunftssicher
✔ Carport bereits in Planung
Der komfortable Carport wird zeitnah errichtet und bietet einen geschützten Stellplatz – optimal zu jeder Jahreszeit.
✔ Fußbodenheizung im gesamten Haus
Sanfte, gleichmäßige Wärme sorgt für ein herausragendes Wohnklima und maximale Behaglichkeit in allen Räumen.
✔ Elektrische Rollläden
Mehr Sicherheit, Komfort und Energieeffizienz – bequem steuerbar auf Knopfdruck.
✔ Strukturierte Netzwerkverkabelung mit LAN in jedem Raum
Ob Homeoffice, Streaming oder moderne Smart-Home-Lösungen: Die vollständige LAN-Verkabelung macht das Haus ideal für digitales Arbeiten und eine zuverlässige Mediennutzung.
✔ Effiziente Gas-Zentralheizung (Energieklasse B)
Ein modernes Heizsystem sorgt für nachhaltige Wärme, niedrige Betriebskosten und ein gutes Energiebewusstsein.
Lage
Willkommen in Surwold im idyllischen Börgerwald! Dieses Einfamilienhaus bietet Dir die perfekte Kombination aus Naturverbundenheit und guter Erreichbarkeit.
Stell Dir vor, jeden Morgen von sanftem Vogelgezwitscher und frischer Waldluft geweckt zu werden – ein wahrer Traum für Naturliebhaber. Die Umgebung ist geprägt von üppigen Wäldern und friedlichen Seen, die zu entspannten Spaziergängen oder aufregenden Fahrradtouren einladen.
Trotz der ruhigen Lage musst Du auf die Vorzüge der städtischen Infrastruktur nicht verzichten. In der Umgebung findest Du alles, was das Herz begehrt:
Von gemütlichen Cafés, kleinen Geschäften bis hin zu Schulen und Sportvereinen. Die Nachbarschaft ist bekannt für ihren freundlichen, engen Zusammenhalt – hier fühlt man sich sofort willkommen.
Durch die gute Anbindung an die umliegenden Städte ist auch der Arbeitsweg bequem zu meistern. Für diejenigen, die gerne mal einen Ausflug machen, bieten sich zahlreiche Möglichkeiten, um die Schönheit der Region zu entdecken.
Mach dieses wunderbare Haus in Surwold zu Deinem neuen Zuhause und genieße das Leben im Herzen der Natur!
Sonstige Angaben
**** BITTE SCHICKEN SIE UNS EINE E-Mail, DAMIT WIR IHRE ANFRAGE BERÜCKSICHTIGEN KÖNNEN !!!! ****
Sie finden auch ein Video auf Instagram unter:
https://www.instagram.com/martinkenningimmobilien
Martin Kenning
RE/MAX Immo-Team
geprüfter Immobilienmakler
nach § 34c GewO
Tel.: 04961/77 909-16
E-Mail: martin.kenning@remax.de
Provision: 4,17 % vom Kaufpreis inkl. MwSt.
Impressum:
Vertretungsberechtigter: Martin Kenning
Genehmigung nach § 34c & 34i Abs. 1 1 Satz 1 Nr. 1 GewO
Registrierungsnummer D-W-162- B89C 28
Berufsaufsichtsbehörde: IHK für Ostfriesland und Papenburg, Postfach 1752, 26697 Emden
USt.ID: 53/121/ 06289
Adresse
26903 Surwold
Interessante Orte
Preis- und Lageinformationen
Preistrend für Bestandsimmobilien in Surwold