Das Objekt umfasst 3 hochwertige Wohneinheiten und eignet sich ideal für Kapitalanleger, Eigennutzer mit Teilvermietung oder Mehrgenerationenwohnen.
Alle Wohnungen sind aktuell nicht vermietet und sofort frei verfügbar.
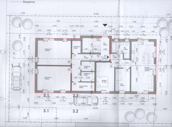
Wohnung 1 – Erdgeschoss
3-Zimmer-Wohnung ca. 73,40 m²
Terrasse ca. 5 m², ca. 40 m² Gartenanteil, separater Abstellraum.
Anthrazit-Fliesen 60×60, Hochglanz-Einbauküche von Nolte, Bad mit Wanne + Dusche, zusätzliches WC.
1 PKW Stellplatz
Mietpotenzial ca. 1.000 € kalt/Monat.
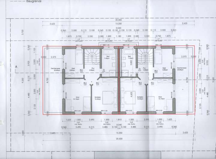
Wohnung 2 – Maisonette links
5-Zimmer-Maisonette ca. 132,70 m²
Balkon + Dachterrasse ca. 20,80 m², Hobbyraum im EG, Abstellraum.
Spanische Glanzfliesen 80×80 (creme), weiße Nolte-Hochglanzküche mit Kochinsel, 2 WC, Wanne + Dusche.
2 PKW Stellplätze
Mietpotenzial ca. 1.800 € kalt/Monat.
Wohnung 3 – Maisonette rechts
5-Zimmer-Maisonette ca. 132,70 m²
Balkon + Dachterrasse ca. 20,80 m², Hobbyraum, Abstellraum.
Anthrazit-Fliesen 60×60, grau/blaue Nolte-Hochglanzküche mit Kochinsel, 2 WC, Wanne + Dusche.
2 PKW Stellplätze
Mietpotenzial ca. 1.800 € kalt/Monat.
Ausstattung Haus:
3-fach verglaste Fenster (WIKKA), elektrische Rollläden, Gasheizung, Solarmodule für Warmwasser, moderne Grundrisse, neuwertiger Zustand.
Der Außenbereich (Stellplätze, Pflaster, Einfriedung) ist noch nicht final gestaltet und bietet Käufern die Möglichkeit, eigene Vorstellungen und Designideen umzusetzen.
Nutzungskonzepte:
Kapitalanlage mit sofortiger Vermietung
Eigennutzung + Teilvermietung
Mehrgenerationenhaus
Wohnen & Arbeiten kombinieren
Fazit:
Ein modernes Mehrfamilienhaus in neuwertigem Zustand mit hochwertiger Ausstattung, attraktiven Außenflächen zum selbst gestallten, starkem Mietpotenzial und maximaler Flexibilität für Eigennutzer oder Investoren.
Alle Optionen sind sofort möglich, da keine Mietverhältnisse bestehen.
Bilder der einzelnen Wohnungen folgen in kürze.
Gesamtmiete realistisch: ca. 4.600 € kalt/Monat (ca. 55.200 € p.a.).
Kaufpreisvorstellung: 1.600.000 €
Modernes Mehrfamilienhaus (BJ 2019) mit Flachdach auf ca. 500 m² Grundstück in Stockstadt am Rhein.
64589 Stockstadt am Rhein
Die vollständige Adresse der Immobilie erhalten Sie vom Anbieter.
Auf Karte anzeigen
Die vollständige Adresse der Immobilie erhalten Sie vom Anbieter.
Finanzierungszertifikat
In nur zwei Minuten zu Ihrem persönlichen Finanzierungszertifkat.
Infos
| Haustyp | Mehrfamilienhaus |
|---|---|
| Etagenzahl | 3 |
| Wohnfläche ca. | 325 m2 |
| Nutzfläche | 100 m2 |
| Grundstücksfläche | 500 m2 |
| Bezugsfrei ab | 27.12.2025 |
| Zimmer | 13 |
| Schlafzimmer | 13 |
| Badezimmer | 5 |
| Garage/Stellplatz | Außenstellplatz |
Kosten
| Kaufpreis |
1.600.000 € |
|---|---|
| Provision | Nein |
Finanzierungsrechner:
Kaufpreis:
600.000 €
Eigenkapital:
600.000 €
Monatliche Rate
0 €
Effektiver Jahreszins
0 %
Sollzinsbindung
10 Jahre
Bausubstanz & Energieausweis
| Baujahr | 2019 |
|---|---|
| Bauphase | Haus fertig gestellt |
| Qualität der Austattung | Gehoben |
| Heizungsart | Gas-Heizung |
| Energieausweis | liegt vor |
Beschreibung des Objekts
Lage
Stockstadt am Rhein verbindet ruhiges Wohnen im Grünen mit hervorragender Anbindung an die Metropolregion Rhein-Main-Neckar. Der Ort bietet eine ausgewogene Mischung aus Idylle, Alltagstauglichkeit und Mobilität – ideal für Familien, Berufspendler und Kapitalanleger.
Eine gute Busanbindung besteht in Richtung Griesheim, Groß-Gerau und Darmstadt. Besonders attraktiv ist die direkte Zugverbindung mit der RE70, die eine schnelle und komfortable Anbindung nach Frankfurt am Main sowie Mannheim ermöglicht. Pendler profitieren von kurzen Fahrzeiten und regelmäßigen Verbindungen.
In der näheren Umgebung befinden sich zahlreiche Unternehmen und Gewerbestandorte, was den Standort auch wirtschaftlich sehr stabil macht. Einkaufsmöglichkeiten für den täglichen Bedarf, Supermärkte, Bäcker und weitere Dienstleister sind im Ort und in der Umgebung gut erreichbar.
Ein besonderes Highlight ist die unmittelbare Nähe zum Kühkopf-Knoblochsaue, dem größten Naturschutzgebiet Hessens, sowie zu den Altrheinauen. Diese bieten einen hohen Freizeit- und Erholungswert mit Möglichkeiten zum Spazierengehen, Radfahren und Naturerleben – ein echter Mehrwert für Bewohner aller Altersklassen.
Kindergärten, Schulen und Betreuungseinrichtungen befinden sich in unmittelbarer Nähe und sind gut erreichbar, was die Lage besonders familienfreundlich macht.
Insgesamt überzeugt Stockstadt am Rhein durch eine praktische Infrastruktur, sehr gute Verkehrsanbindung und ein naturnahes Wohnumfeld – eine Lage, die sowohl heute als auch langfristig gefragt bleibt.
Grundriss
Grundriss EG
>
>
Grundriss OG1
>
>
Grundriss OG2
>
>
Adresse
64589 Stockstadt am Rhein
Interessante Orte
Preis- und Lageinformationen
Preistrend für Bestandsimmobilien in Stockstadt am Rhein