Sunshine 210 - dein Zuhause, wie du es dir erträumst!
Stell dir vor: 5 Schlafzimmer, 3 Bäder und ein offener Wohn-Essbereich, in dem eure Familie lacht, Freunde feiern und Erinnerungen entstehen. Die inklusive Design-Küche wird zum Herzstück, in dem kochen zum Vergnügen wird - vom schnellen Frühstück bis zum großen Festmahl.
Riesige Fenster lassen die Sonne herein und machen jeden Raum hell und freundlich, hochwertige Materialien und moderne Bauweise sorgen für Komfort und Energieeffizienz. Hier findet jeder sein eigenes Reich zum Entspannen, Toben oder Träumen.
Sunshine 210 ist mehr als ein Haus - es ist euer Ort zum Ankommen, Leben und Wachsen.
Mach jeden Tag zum Highlight und genieße das Leben in vollen Zügen - willkommen zu Hause!
Dein 210qm Traumhaus wartet auf dich
01900 Bretnig-Hauswalde
Die vollständige Adresse der Immobilie erhalten Sie vom Anbieter.
Auf Karte anzeigen
Die vollständige Adresse der Immobilie erhalten Sie vom Anbieter.
Finanzierungszertifikat
In nur zwei Minuten zu Ihrem persönlichen Finanzierungszertifkat.
Infos
| Haustyp | Einfamilienhaus |
|---|---|
| Etagenzahl | 2 |
| Wohnfläche ca. | 210 m2 |
| Nutzfläche | 210 m2 |
| Grundstücksfläche | 810 m2 |
| Zimmer | 7 |
| Schlafzimmer | 5 |
| Badezimmer | 3 |
Kosten
| Kaufpreis |
670.276 € |
|---|---|
| Provision | Nein |
Finanzierungsrechner:
Kaufpreis:
600.000 €
Eigenkapital:
600.000 €
Monatliche Rate
0 €
Effektiver Jahreszins
0 %
Sollzinsbindung
10 Jahre
Bausubstanz & Energieausweis
| Baujahr | 2026 |
|---|---|
| Bauphase | Haus in Planung (projektiert) |
| Qualität der Austattung | Gehoben |
| Heizungsart | Wärmepumpe |
| Energieausweis | liegt vor |
| Energieausweistyp | Bedarfsausweis |
| Energieverbrauchskennwert | 18,0 kWh/(m²*a) |
| Energieeffizienzklasse | A+ |
18,0
kWh/(m²*a)
Energieeffizienzklasse A+
- A+
- A
- B
- C
- D
- E
- F
- G
- H
- 0
- 25
- 50
- 75
- 100
- 125
- 150
- 175
- 200
- 225
- >250
Beschreibung des Objekts
Ausstattung
Folgende Leistungen sind in unserem Angebot bereits enthalten:
+ die Baugenehmigungsplanung
+ alle erforderlichen Bauversicherungen
+ von außen fix und fertig, inkl. hochwertiger Haustür
+ Fenster mit 3-Scheiben-Isolierverglasung
+ in der Wand eingebaute Rollläden mit Kurbelantrieb,
+ verzinkte Dachrinnen und Fallrohren
+ hochwertige Dacheindeckung mit 30 Jahren Garantie
+ Außenputz (4mm durch gefärbt) in verschiedenen Farben
+ Wohlfühl-Klima-Heizung mit Kühlfunktion
+ Offene, eingestemmte, keilgezinkte Vollholztreppe
+ Sanitär- und Elektroinstallation betriebsbereit installiert
+ die Bodenplatte inkl. Baugrunduntersuchung.
+ inkl. Küche der Firma ,,Nolte"
Mit Livinghaus baust du kein Haus, du baust dein Zuhause.
Zuhause - das ist mehr als ein Ort. Zuhause, das ist vor allem ein Gefühl. Was genau ein Zuhause ausmacht, ist für jeden anders.
Und doch für alle gleich!
Darüber hinaus steht Ihnen unser Experten-Netzwerk zu folgenden Themen zur Verfügung
3 Tage professionelles Ausbau-Coaching vor Ort mit der DIY Academy
24/7 Beratungs-Service
Umfangreiches Versicherungspaket inklusive
Architektenleistungen gemäß Bau- und Leistungsbeschreibung inklusive Terminsicherheit
18 Monate Festpreisgarantie
Detaillierte Bau- und Leistungsbeschreibung
Transparente und verständliche Vertragsunterlagen
Produktion im hochmodernen Hausbauwerk, Qualität "Made in Germany"
Geschlossene Wände ab Werk
30 Jahre Gewährleistung auf die Grundkonstruktion deines Living Hauses
5 Jahre Gewährleistung nach BGB auf die übrigen Bauleistungen deines Living Hauses
Ausgezeichnetes Wohnklima
Holz von PEFC-zertifizierten Lieferanten aus nachhaltiger Forstwirtschaft
Gold-Standard zertifiziert von der Deutschen Gesellschaft für Nachhaltiges Bauen (DGNB)
Markenprodukte in geprüfter Qualität
Vereinbare am besten gleich dein persönliches Beratungsgespräch und wir gestalten gemeinsam dein Traumhaus.
Lage
Großröhrsdorf vereint idyllisches Wohnen im Grünen mit schneller Anbindung an Dresden - perfekt für alle, die Ruhe genießen und dennoch schnell in der Stadt sein wollen. Schulen, Kitas, Einkaufsmöglichkeiten und Ärzte sind in wenigen Minuten erreichbar und machen den Alltag besonders bequem. Die wunderschöne Massenei mit ihren Rad- und Wanderwegen bietet Erholung direkt vor der Haustür - ideal für Familien, Paare und Naturliebhaber.
Sonstige Angaben
Du suchst nicht nur vier Wände - du suchst DEIN Zuhause.
Ein Fertighaus, das zu dir passt, bezahlbar ist und vor allem bleibt.
Wir bei Living Haus wissen, wie das geht: mit erstklassigem Service, umfangreichen Inklusiv-Leistungen und voller Gestaltungsfreiheit für dein neues Zuhause. Eine Kombination, die du nur bei uns findest.
MACHER gesucht!
Vereinbare noch heute deinen persönlichen Termin - wir zeigen dir, wie dein Traumhaus Wirklichkeit wird und wie du mit unserem cleveren Konzept sogar richtig Geld sparen kannst.
📩 E-Mail: paula.mikolajczyk@livinghaus.de
📱 Mobil/WhatsApp: 0151-5025-0425
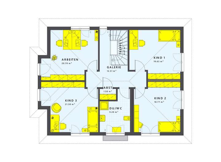
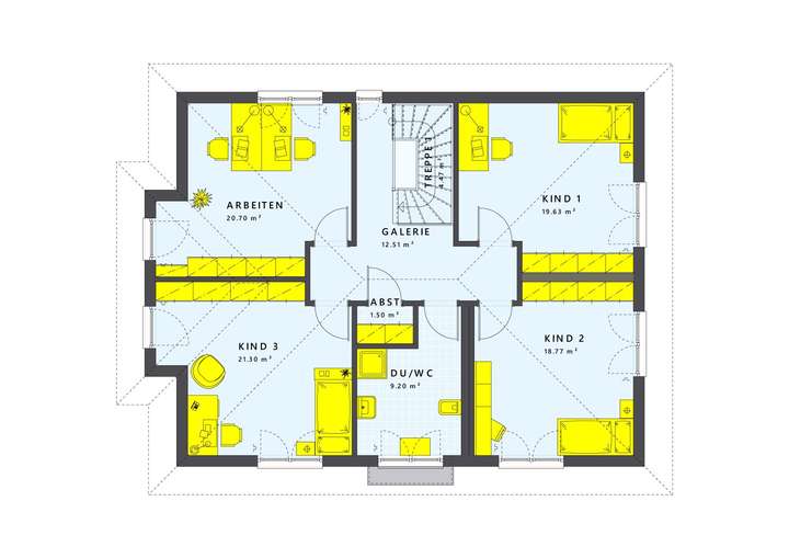
Grundriss
Grundriss Erdgeschoss
>
>
Grundriss Obergeschoss
>
>
Adresse
01900 Bretnig-Hauswalde
Interessante Orte
Preis- und Lageinformationen
Preistrend für Bestandsimmobilien in Bretnig-Hauswalde