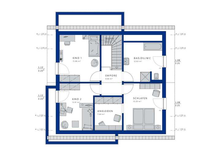
Das Bien-Zenker Hausprojekt bietet Ihnen die einzigartige Möglichkeit, Ihr persönliches Traumhaus genau nach Ihren Vorstellungen zu realisieren. Ob Sattel-, Walm- oder Flachdach - jede Variante beeindruckt durch ihre moderne Architektur und cleveren Detaillösungen. Das EVOLUTION 152 begeistert mit einem großartigen Grundriss und einer Wohnfläche von 152 m², die sich auf 1,5 Etagen erstreckt. Im Erdgeschoss finden Sie neben dem offenen Wohnbereich ein praktisches Arbeitszimmer, das nahtlos in den großzügigen Außenbereich übergeht. Im Obergeschoss erwarten Sie zwei liebevoll gestaltete Kinderzimmer sowie eine komfortable Ankleide, die ein Maximum an Privatsphäre und Funktionalität bieten.
Die Ausbaustufe "Schlüsselfertig" verspricht einen stressfreien Bauprozess, bei dem Bien-Zenker den kompletten Innenausbau für Sie übernimmt - vom Fundament bis zur letzten Schraube. So können Sie sich zurücklehnen und die Vorfreude genießen, während alle Arbeiten professionell erledigt werden. Sobald alles fertig ist, ziehen Sie einfach in Ihr neues Zuhause ein, ohne sich um weiteres kümmern zu müssen. Diese komfortable Lösung spart Ihnen Zeit, Nerven und eine Menge Planung, sodass Sie sich ganz auf das Wesentliche konzentrieren können: das Leben in Ihrem neuen Traumhaus.
Bei Bien-Zenker erhalten Sie nicht nur ein Haus. Es ist vielmehr ein Zuhause, das Geborgenheit und Lebensfreude ausstrahlt - geschaffen von einem der erfahrensten Fertighausanbieter Deutschlands mit über 115 Jahren Firmengeschichte. Jedes Bauprojekt wird individuell gestaltet und umgesetzt, begleitet von einem kompetenten Team aus mehr als 700 engagierten Mitarbeitenden. Mit hochwertigen Materialien und innovativen Standards sind Bien-Zenker Häuser bestens für die Zukunft gerüstet.
Grundrisse und Abbildungen können Extras zeigen. Flächenangaben nach DIN 277.
Ihr Traumhaus mit Bien-Zenker: Wo Wünsche Wirklichkeit werden
36154 Hosenfeld
Die vollständige Adresse der Immobilie erhalten Sie vom Anbieter.
Auf Karte anzeigen
Die vollständige Adresse der Immobilie erhalten Sie vom Anbieter.
Finanzierungszertifikat
In nur zwei Minuten zu Ihrem persönlichen Finanzierungszertifkat.
Infos
| Etagenzahl | 1 |
|---|---|
| Wohnfläche ca. | 152 m2 |
| Grundstücksfläche | 400 m2 |
| Zimmer | 6 |
Kosten
| Kaufpreis |
549.000 € |
|---|
Finanzierungsrechner:
Kaufpreis:
600.000 €
Eigenkapital:
600.000 €
Monatliche Rate
0 €
Effektiver Jahreszins
0 %
Sollzinsbindung
10 Jahre
Bausubstanz & Energieausweis
| Baujahr | unbekannt |
|---|
Beschreibung des Objekts
Ausstattung
Mit einer großzügigen Wohnfläche von 152 m² bietet dieses Bien-Zenker Haus genügend Raum für die ganze Familie. Die durchdachte Aufteilung der Zimmer sorgt dafür, dass jedes Familienmitglied seinen persönlichen Rückzugsort findet. Drei Schlafzimmer bieten ausreichend Platz für Eltern und Kinder gleichermaßen, während das gut ausgestattete Badezimmer Komfort und Funktionalität vereint. Die besondere Gestaltung mit 1,5 Etagen schafft ein offenes Raumgefühl und fördert gleichzeitig Privatsphäre.
Besonderes Augenmerk wurde auf die detaillierte Ausstattung gelegt: Großzügige Fensterfronten lassen viel Licht herein und schaffen eine angenehme Wohnatmosphäre. Der direkte Zugang zum Außenbereich ermöglicht entspannte Stunden im Freien auf der Terrasse oder im Garten - ideal für Familienaktivitäten oder gesellige Abende mit Freunden.
Die Entscheidung für die Ausbaustufe "Schlüsselfertig" garantiert einen reibungslosen Bauablauf ohne Stress oder zeitaufwändige Eigenleistungen. Vom Anfang bis zum Ende stehen Ihnen unsere Experten zur Seite und sorgen dafür, dass Ihr neues Zuhause nach Ihren Vorstellungen entsteht - bereit zum Einzug ab dem ersten Tag.
Lage
Hosenfeld besticht durch seine hervorragende Lage inmitten einer idyllischen Umgebung mit zahlreichen Möglichkeiten für Bildung, Gesundheit und Freizeitgestaltung. Schulen und Kindergärten sind schnell erreichbar und bieten eine solide Basis für die Bildung Ihrer Kinder. Für Ihre Gesundheit stehen verschiedene Arztpraxen zur Verfügung, während nahegelegene Einkaufsmöglichkeiten alle Bedürfnisse des täglichen Lebens abdecken.
In Ihrer Freizeit lädt die Umgebung zu abwechslungsreichen Aktivitäten ein - ob Wandern in der Natur oder sportliche Betätigungen in örtlichen Vereinen. Dank der guten Anbindung an den öffentlichen Nahverkehr erreichen Sie bequem umliegende Städte oder nutzen die nahegelegenen Autobahnen für längere Ausflüge.
Genießen Sie das harmonische Zusammenspiel von Naturverbundenheit und städtischem Komfort in Hosenfeld - ideal für Familien, Paare oder Ruhesuchende.
Adresse
36154 Hosenfeld
Interessante Orte
Preis- und Lageinformationen
Preistrend für Bestandsimmobilien in Hosenfeld