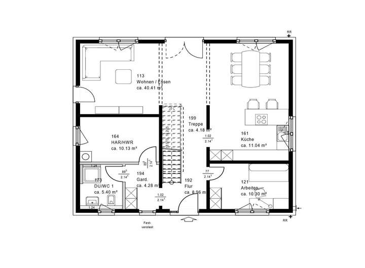
Das Einfamilienhaus Design 16 besticht auf zwei Etagen durch sein großes Platzangebot, die clevere Raumaufteilung und exklusive Ausstattungsdetails. Vom Eingang im Erdgeschoss führt ein langer Flur geradeaus in den gegenüber liegenden Essbereich, der zu beiden Seiten offen ist und in den großen Wohnbereich und in die Küche übergeht. So findet das Tageslicht, das durch die zahlreichen Fenster und Glastüren dringt, seinen Weg bis in den letzten Winkel. Ergänzt wird das Raumangebot im Erdgeschoss durch den von der Küche aus zugänglichen Hauswirtschaftsraum, das Gäste-WC mit Dusche direkt am Eingang sowie das lichtdurchflutete Arbeitszimmer, das selbstverständlich auch als Gästezimmer genutzt werden kann. Im Obergeschoss gelangen Sie von der zentral gelegenen, geräumigen Galerie in den großzügig bemessenen Elternbereich mit Schlafzimmer, direkt angrenzendem begehbarem Kleiderschrank und einem Badezimmer.
Schickes, großzügiges Einfamilienhaus inkl. Grundstück -bezugsfertig
65824 Schwalbach am Taunus
Die vollständige Adresse der Immobilie erhalten Sie vom Anbieter.
Auf Karte anzeigen
Die vollständige Adresse der Immobilie erhalten Sie vom Anbieter.
Finanzierungszertifikat
In nur zwei Minuten zu Ihrem persönlichen Finanzierungszertifkat.
Infos
| Haustyp | Einfamilienhaus |
|---|---|
| Etagenzahl | 2 |
| Wohnfläche ca. | 180 m2 |
| Grundstücksfläche | 885 m2 |
| Zimmer | 6 |
| Schlafzimmer | 3 |
| Badezimmer | 1 |
Kosten
| Kaufpreis |
1.107.900 € |
|---|
Finanzierungsrechner:
Kaufpreis:
600.000 €
Eigenkapital:
600.000 €
Monatliche Rate
0 €
Effektiver Jahreszins
0 %
Sollzinsbindung
10 Jahre
Bausubstanz & Energieausweis
| Baujahr | unbekannt |
|---|---|
| Bauphase | Haus in Planung (projektiert) |
| Qualität der Austattung | Gehoben |
Beschreibung des Objekts
Ausstattung
Bei Okal bedeutet "einzugsfertig" eine Komplettlösung, bei der vom ersten Beratungsgespräch bis zur Endreinigung alle Leistungen inklusive sind. Sie erhalten die Schlüssel und können direkt einziehen.
Unter anderem sind nachfolgende Leistungen im berechneten Hauspreis (Ausbaustufe: "einzugsfertig") enthalten:
+ Architektenleistung
+ Bodengutachten
+ 2,80 m Raumhöhe
+ Elektrische Aluminiumrollläden
+ Zertifizierte Nachhaltigkeit
+ Frischluftwärmetechnik von PROXON
+ Sockeldämmung
+ Einbau der Sanitärobjekte
+ Verlegung von Boden- und Wandfliesen
+ Installation von Türen und Türzargen
+ Innenfensterbänke
+ Bauendreinigung vor Hausübergabe
+ Küchengutschein im Wert von Wert von 6.800 EUR
***Der gezeigte Grundrisse dient als Beispiel und kann ohne zusätzliche Kosten individuell angepasst werden, sofern die Gesamtwohn- bzw. bebaute Fläche unverändert bleibt.***
Lage
Schwalbach am Taunus befindet sich in attraktiver Lage am Rand des Taunus und überzeugt durch die unmittelbare Nähe zur Metropole Frankfurt am Main, die in kurzer Zeit erreichbar ist. Als Teil der wirtschaftsstarken Rhein-Main-Region bietet die Stadt eine gelungene Kombination aus ruhigem Wohnen und ausgezeichneter Anbindung an das regionale und überregionale Verkehrsnetz.
Das lebendige Ortszentrum mit Verwaltung, kulturellen Einrichtungen und vielfältigen Einkaufsmöglichkeiten bildet das Herz der Stadt. Zahlreiche Angebote für alle Altersgruppen - von Betreuungseinrichtungen für Kinder und Jugendliche bis hin zu Treffpunkten und Wohnangeboten für Senioren - unterstreichen die hohe Lebensqualität. Auch das schulische Angebot ist umfassend und deckt alle Bildungsstufen ab.
Dank der schnellen Erreichbarkeit von Frankfurt, dem internationalen Flughafen sowie den Städten Darmstadt und Wiesbaden ist Schwalbach besonders für Pendler attraktiv. Das angebotene Grundstück liegt in einem gewachsenen Wohngebiet mit angenehmer Nachbarschaft, umgeben von viel Grün und gleichzeitig in unmittelbarer Nähe zu einer hervorragend ausgebauten Infrastruktur.
Sonstige Angaben
Der ausgewiesene Kaufpreis umfasst sowohl das Grundstück als auch das geplante Haus. Nicht enthalten sind die allgemein üblichen Baunebenkosten und die Abrisskosten des Bestandsgebäudes.
Innovative Pioniere, die bereits 1928 den Grundstein für unseren heutigen Erfolg legten, und erfahrene Mitarbeiter, die Tag für Tag daran arbeiten, unsere hohen Qualitätsziele zu übertreffen - das ist OKAL! Vor mehr als 90 Jahren gegründet, streben wir auch heute noch danach, neuste Entwicklungen als Vorreiter der Branche voranzutreiben und unseren Kunden so einen vollumfänglichen Service anzubieten, der unsere jahrelange Erfahrung mit den modernen Ideen von morgen vereint. Nachhaltig, innovativ, verlässlich - für uns nicht nur leere Worte, sondern gelebte Philosophie, die sich in einem jeden OKAL-Premiumhaus widerspiegelt.
Adresse
65824 Schwalbach am Taunus
Interessante Orte
Preis- und Lageinformationen
Preistrend für Bestandsimmobilien in Schwalbach am Taunus