Dieses massiv gebaute, freistehende Zweifamilienhaus in Hillesheim (Rheinhessen) aus dem Jahr 1988 vereint geräumiges Wohnen, Ruhe und vielfältige Nutzungsmöglichkeiten. Ob als Mehrgenerationenhaus, zur Kombination aus Eigennutzung & Vermietung, zur großzügigen Alleinnutzung oder als attraktive Kapitalanlage.
Beide vollständig abgeschlossene Wohneinheiten, der große Keller, die Garage, Stellplätze und der gemütliche Garten machen dieses Haus zu einem großartigen Angebot mit außergewöhnlichem Potenzial.
Wohnen im EG (ca. 110 qm):
- 4 Zimmer
- Küche mit angrenzendem Vorratsraum
- Tageslichtbad mit Wanne
- Flur mit Garderobe
- Terrasse mit Gartenzugang
Hohe Decken und große Fenster (mit Rollläden) schaffen ein angenehmes Raumgefühl. Diese helle Wohnung ist etwas in die Jahre gekommen und bietet damit die perfekte Chance, Ihren persönlichen Wohntraum zu verwirklichen.
Wohnen im DG (ca. 90 qm):
- 3 Zimmer
- Küche mit EBK (2018) und angrenzendem Vorratsraum
- Tageslichtbad mit Dusche (2016)
- Flur mit Garderobe (2016)
- Balkon mit West-Ausrichtung
- Zugang zum Speicher
Diese gepflegte Wohnung ist direkt bezugsfertig. Sie ist modernisiert, mit gemütlicher Dachschräge und der sonnige überdachte Balkon schafft ein warmes und einladendes Wohngefühl.
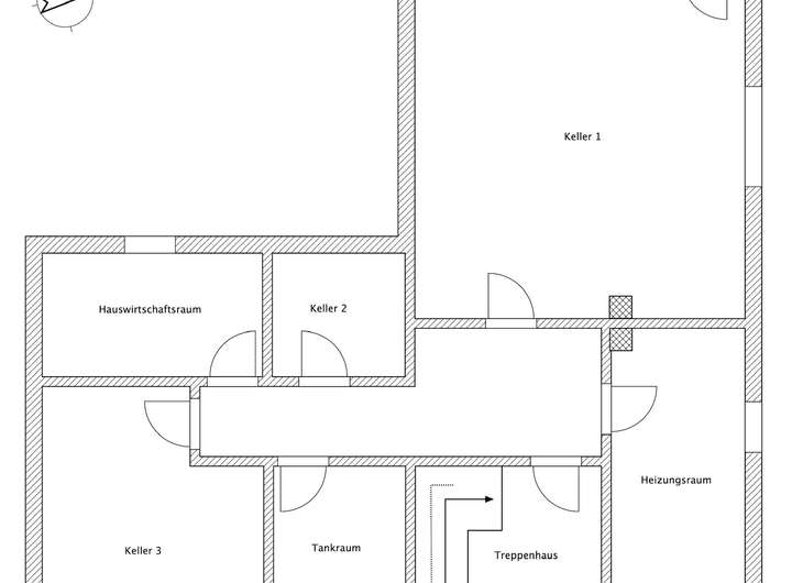
Das solide Haus ist zudem vollunterkellert und bietet neben dem Heizungsraum (Ölheizung von 2002) vier weitere große trockene Räume (teilweise mit Fenstern). Über eine Außentreppe gelangen Sie direkt in den herrlichen Garten.
Eine Gästetoilette mit Tageslicht befindet sich im EG des Treppenhauses.
Das Grundstück hat eine Größe von ca. 644 qm und somit bietet der große Garten vielfältige Möglichkeiten zum Entspannen, Spielen oder Gärtnern. Eine Garage und mehrere Stellplätze vor dem Haus runden das Angebot ab.
Ein Energieausweis liegt vor.
Das Haus ist noch bewohnt, Besichtigungen sind nach Absprache möglich. Melden Sie sich gerne bei uns!
Makleranfragen sind nicht erwünscht.
Zweifamilienhaus mit Keller und großem Garten - ideal für Familien
67586 Hillesheim
Die vollständige Adresse der Immobilie erhalten Sie vom Anbieter.
Auf Karte anzeigen
Die vollständige Adresse der Immobilie erhalten Sie vom Anbieter.
Finanzierungszertifikat
In nur zwei Minuten zu Ihrem persönlichen Finanzierungszertifkat.
Infos
| Haustyp | Mehrfamilienhaus |
|---|---|
| Etagenzahl | 2 |
| Wohnfläche ca. | 198 m2 |
| Grundstücksfläche | 644 m2 |
| Bezugsfrei ab | 01.04.2026 |
| Zimmer | 7 |
| Badezimmer | 2 |
| Garage/Stellplatz | Garage |
| Anzahl Garage/Stellplatz | 1 |
Kosten
| Kaufpreis |
630.000 € |
|---|---|
| Provision | Nein |
Finanzierungsrechner:
Kaufpreis:
600.000 €
Eigenkapital:
600.000 €
Monatliche Rate
0 €
Effektiver Jahreszins
0 %
Sollzinsbindung
10 Jahre
Bausubstanz & Energieausweis
| Baujahr | 1988 |
|---|---|
| Bauphase | Haus fertig gestellt |
| Objektzustand | Gepflegt |
| Qualität der Austattung | Normal |
| Heizungsart | Zentralheizung |
| Wesentliche Energieträger | Öl, Strom |
| Energieausweis | liegt vor |
| Energieausweistyp | Verbrauchsausweis |
| Energieverbrauchskennwert | 145,6 kWh/(m²*a) |
| Energieeffizienzklasse | E |
145,6
kWh/(m²*a)
Energieeffizienzklasse E
- A+
- A
- B
- C
- D
- E
- F
- G
- H
- 0
- 25
- 50
- 75
- 100
- 125
- 150
- 175
- 200
- 225
- >250
Beschreibung des Objekts
Lage
In direkter Nähe befinden sich ein Supermarkt und eine Bäckerei. Ein Hausarzt befindet sich fußläufig im Nachbarort Dorn-Dürkheim.
Der Kindergarten ist nur wenige Schritte entfernt und die Grundschule in einer der direkten Nachbargemeinden (Dolgesheim).
Auch der beliebte Spielplatz ist zu Fuß erreichbar.
Die Anbindung an das öffentliche Verkehrsnetz ist sehr gut. Die Bushaltestelle ist nur eine Straße weiter und der Bahnhof in Alsheim bietet direkte Bahnverbindungen.
Die Bundesstraße B9 sowie die Autobahnen A61 und A63 sind in kurzer Zeit erreichbar.
Damit eignet sich die Lage ideal für Berufspendler, die ländliches Wohnen mit guter Erreichbarkeit kombinieren möchten.
Adresse
67586 Hillesheim
Interessante Orte
Preis- und Lageinformationen
Preistrend für Bestandsimmobilien in Hillesheim