Hochwertig saniertes Altstadthaus mit Geschichte und Charme – Ideal für Wohnen und Arbeiten.
Dieses einzigartige Altstadthaus in der historischen Limburger Altstadt vereint jahrhundertealte Geschichte mit modernem Wohnkomfort. Das Haus wurde um 1469 erbaut und erhielt im 18.-19. Jahrhundert auf einer Seite eine elegante klassizistische Fassade. Im Jahr 2003 wurde es für den Eigenbedarf, hochwertig saniert und bietet heute vielfältige Nutzungsmöglichkeiten:
• Historischer Charme: Erbaut um 1469, mit einer klassizistischen
Fassade aus dem 18.-19. Jahrhundert.
• Moderne Ausstattung: Die hochwertige Sanierung im Jahr 2003 hat das Haus in ein modernes, komfortables Zuhause verwandelt, ohne den historischen Charme zu verlieren.
• Auf etwa 138 m² Wohnfläche verteilen sich zwei
separate Einheiten:
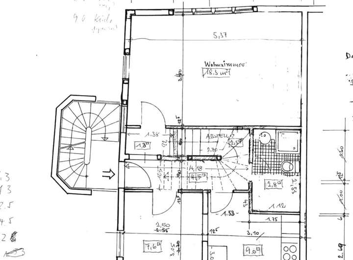
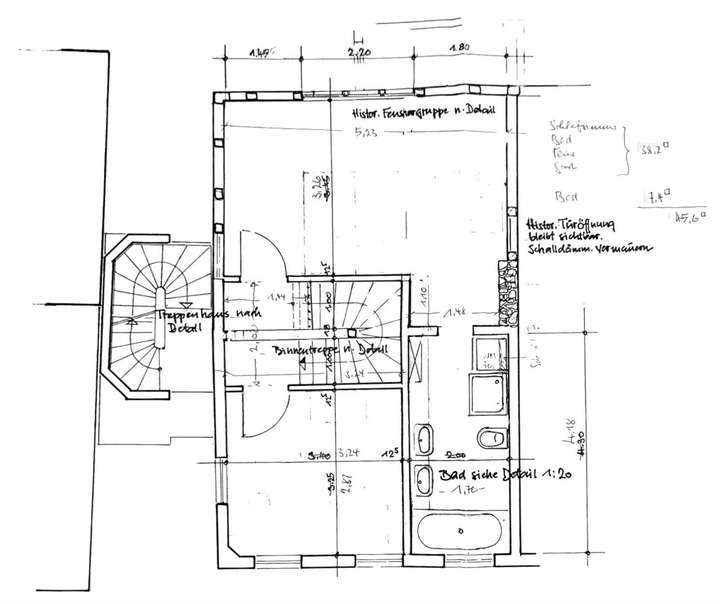
• 90 m²: 2 Bäder, geräumiges Wohnzimmer, 2 Schlafzimmer und
Einbauküche.
• 48 m²: 1 Bad, Wohnzimmer, Schlafzimmer und Einbauküche. Beide
Einheiten sind vermietbar oder ideal für eine Kombination aus Wohnen und Arbeiten geeignet.
• Ausbaupotenzial im Dachgeschoss: Das Dachgeschoss bietet mit rund
38 m² zusätzliches Ausbaupotenzial für individuelle Wohn- oder
Arbeitsräume.
• Gepflegter Garten: Auf einem Grundstück von ca. 185 m² befindet sich
ein ca. 90 m² großer Garten – eine absolute Rarität in der Limburger Altstadt.
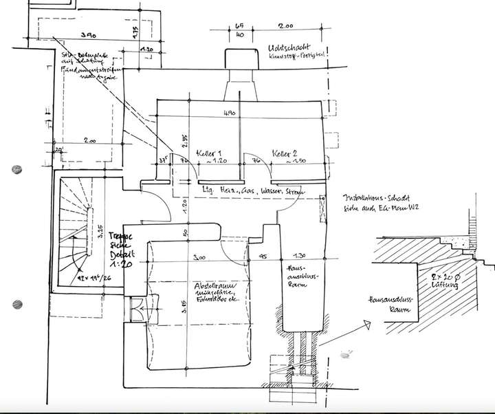
• 2 Keller (Haus und Gartengebäude): Für ausreichend Platz sorgen zwei
geräumige Unterkeller. für Abstell-, Trocken- und Waschräume.
Dieses Altstadthaus ist eine seltene Gelegenheit für Liebhaber
historischer Bauten, die ein repräsentatives und
gleichzeitig modernes Zuhause suchen.
Nutzen Sie das Potenzial dieses Hauses ob als privates Domizil oder für eine clevere Kombination aus Wohnen und Arbeiten.
In der belebten Altstadt, aber trotzdem sehr ruhig gelegen. Der auf der Rückseite das Hauses gelegene Garten ist von Aussen nicht einsehbar. Die Einheiten stehen leer, so dass ein neuer Eigentümer das Haus ganz nach Belieben nutzen kann.
2 Parteien-Altstadthaus mit Garten und gehobener Innenausstattung
65549 Limburg an der Lahn
Die vollständige Adresse der Immobilie erhalten Sie vom Anbieter.
Auf Karte anzeigen
Die vollständige Adresse der Immobilie erhalten Sie vom Anbieter.
Finanzierungszertifikat
In nur zwei Minuten zu Ihrem persönlichen Finanzierungszertifkat.
Infos
| Haustyp | Mehrfamilienhaus |
|---|---|
| Etagenzahl | 5 |
| Wohnfläche ca. | 138 m2 |
| Nutzfläche | 100 m2 |
| Grundstücksfläche | 185 m2 |
| Bezugsfrei ab | 28.12.2025 |
| Zimmer | 6,5 |
| Schlafzimmer | 3 |
| Badezimmer | 3 |
Kosten
| Kaufpreis |
570.000 € |
|---|---|
| Provision | Nein |
Finanzierungsrechner:
Kaufpreis:
600.000 €
Eigenkapital:
600.000 €
Monatliche Rate
0 €
Effektiver Jahreszins
0 %
Sollzinsbindung
10 Jahre
Bausubstanz & Energieausweis
| Letzte Sanierung | 2003 |
|---|---|
| Bauphase | Haus fertig gestellt |
| Denkmalschutzobjekt | Ja |
| Objektzustand | Vollständig Renoviert |
| Qualität der Austattung | Gehoben |
| Heizungsart | Gas-Heizung |
| Wesentliche Energieträger | Gas |
| Energieausweis | laut Gesetz nicht erforderlich |
Beschreibung des Objekts
Ausstattung
Fußbodenheizung
Lage
Limburg an der Lahn, im Stadtteil Limburg an der Lahn gelegen, bietet eine gut ausgebaute Infrastruktur. Die Anbindung an den öffentlichen Nahverkehr ist gegeben, was tägliche Wege erleichtert. Einkaufsmöglichkeiten für den täglichen Bedarf sowie diverse Dienstleister sind in der Nähe vorhanden. Die Stadt verfügt über ein breites Angebot an Freizeitmöglichkeiten, kulturellen Einrichtungen und gastronomischen Angeboten, die das Leben in Limburg bereichern.
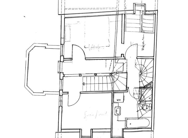
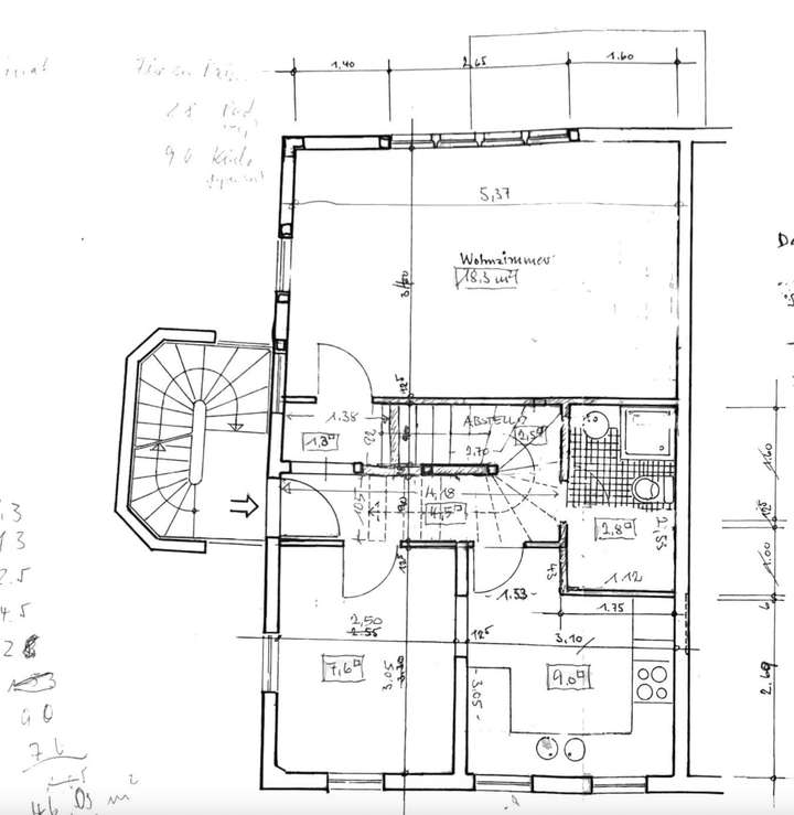
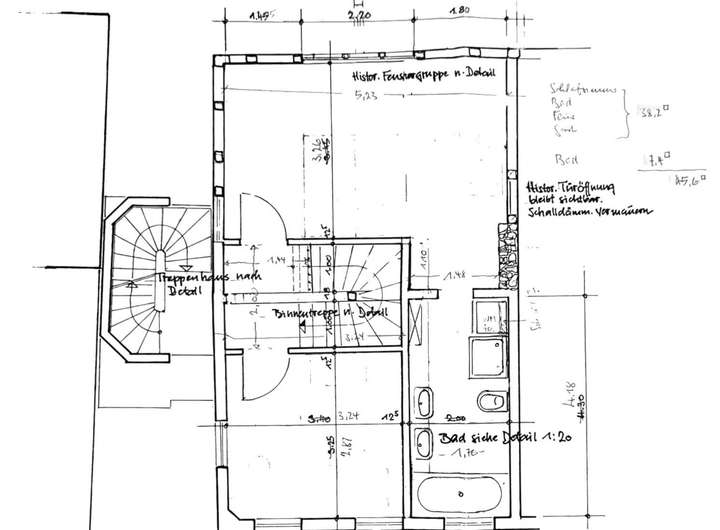
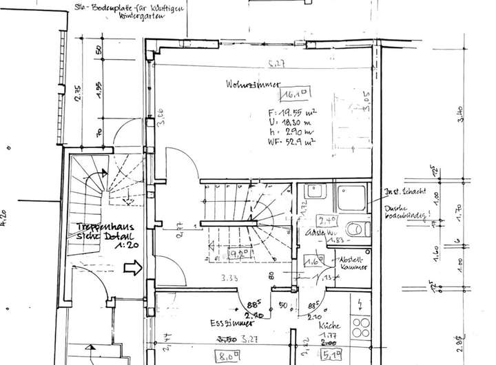
Grundriss
EG
>
>
OG
>
>
2OG
>
>
Dachgeschoss
>
>
UG
>
>
Adresse
65549 Limburg an der Lahn
Interessante Orte
Preis- und Lageinformationen
Preistrend für Bestandsimmobilien in Limburg an der Lahn