Hier entsteht Ihr persönliches Traumhaus.
Ein Ort, an dem man ankommt, durchatmet und sich zuhause fühlt. Dieser wunderschöne Neubau in massiver Holzständerbauweise verbindet natürliche Materialien mit moderner Architektur - warm, gemütlich und gleichzeitig hochwertig. Genau so, wie man sich sein eigenes Zuhause immer vorgestellt hat.
Die hellen, offenen Räume bieten viel Platz für persönliche Träume und Ideen. Jeder Schritt im Haus fühlt sich nach "hier möchte ich bleiben" an. Es ist der perfekte Ort, um anzukommen, zu leben und sich jeden Tag aufs Neue wohlzufühlen.
Wenn Sie mehr erfahren möchten oder einfach neugierig sind:
Rufen Sie mich gern an oder schreiben Sie mir eine WhatsApp.
Tel.: 0171/4442234
Ich freue mich darauf, Ihnen diesen Lebenstraum näherzubringen.
Wohnen im Eigenheim - massa haus Neubau zum fairen Preis
36452 Kaltennordheim
Die vollständige Adresse der Immobilie erhalten Sie vom Anbieter.
Auf Karte anzeigen
Die vollständige Adresse der Immobilie erhalten Sie vom Anbieter.
Finanzierungszertifikat
In nur zwei Minuten zu Ihrem persönlichen Finanzierungszertifkat.
Infos
| Etagenzahl | 2 |
|---|---|
| Wohnfläche ca. | 130 m2 |
| Grundstücksfläche | 470 m2 |
| Zimmer | 4 |
Kosten
| Kaufpreis |
263.000 € |
|---|
Finanzierungsrechner:
Kaufpreis:
600.000 €
Eigenkapital:
600.000 €
Monatliche Rate
0 €
Effektiver Jahreszins
0 %
Sollzinsbindung
10 Jahre
Bausubstanz & Energieausweis
| Baujahr | unbekannt |
|---|---|
| Bauphase | Haus in Planung (projektiert) |
Beschreibung des Objekts
Ausstattung
Bei Ihrem Neubau entscheiden Sie selbst, ob Sie durch Eigenleistung sparen möchten oder ob massa haus den Innenausbau für Sie bis zur Schlüsselübergabe übernimmt.
Verbaut werden ausschließlich hochwertige Markenprodukte namhafter Hersteller - für ein Zuhause, das in Qualität, Komfort und Energieeffizienz überzeugt.
IM ANGEBOTSPREIS ENTHALTEN:
-Projektierte Ausbauhaus-Variante
-Ihr Grundstück inklusive
-FREIRAUM-Deckenhöhe 2,75 m
-Bodenplatte inkl. Baugrunduntersuchung, Abdichtung & Sockeldämmung
-(Keller optional möglich)
-Klima-Plus-Wände für hervorragenden Energie- und Schallschutz
-Hochwertige Dachziegel
-Dachrinnen & Fallrohre aus Titanzink
-Dreifach verglaste Wärmeschutzfenster
-Aluminium-Außenfensterbänke
-Rollläden
-Moderne, massive Haustür mit Sicherheitsverriegelung & Edelstahlgriff
-Luft-Wasser-Wärmepumpe (verschiedene Ausführungen möglich)
-Kontrollierte Be- und Entlüftungsanlage mit bis zu 90 % Wärmerückgewinnung
-Elektroinstallation (deutsche Markenhersteller)
-Sanitär-Rohinstallation für Bäder und Küche
-Hochwertige Vollholztreppe in verschiedenen Designs
-Materiallieferung für Dämmung & Innenbeplankung
-Architektenleistungen (Planung, Bauantrag, Vermessung, Bauleitung)
-Blower-Door-Test
-Energieausweis
-14 Wochen Lieferzeit
Inklusive aller wichtigen Versicherungen:
-Bauleistungsversicherung
-Bauherren-Haftpflicht
-Wohngebäudeversicherung
-Feuer-Rohbauversicherung
-Einkommensschutzversicherung (ALV-plus)
+15 Monate Festpreisgarantie
+Sicherheit eines Großunternehmens mit über 47 Jahren Bauerfahrung
+Keine Vorauszahlungen - bezahlt wird erst nach Abnahme
Zzgl.: Erschließung, Tiefbau sowie Innenausbau nach Vereinbarung.
AUSSERDEM BIETEN WIR IHNEN:
-Finanzierungsservice (auch ohne Eigenkapital möglich)
-Grundstücksservice
-Persönliche Bauberatung & zuverlässige Betreuung bis zur Fertigstellung
Kontaktieren Sie mich gern - telefonisch oder per WhatsApp.
Ich unterstütze Sie dabei, Ihr perfektes Traumhaus zu verwirklichen!
Tel.:0171/4442234
Lage
Das Baugrundstück liegt in zentraler, dennoch ruhiger Wohnlage einer Kleinstadt im südlichen Thüringen. Die Umgebung ist geprägt von gepflegten Wohngebieten, kurzen Wegen zu Einkaufsmöglichkeiten, Schulen, Kindergärten sowie medizinischer Versorgung.
Eine gute Verkehrsanbindung ermöglicht schnelle Verbindungen zu den umliegenden Städten und regionalen Arbeitsplätzen. Gleichzeitig sorgt die naturnahe Umgebung mit Grünflächen, Wander- und Radwegen für hohe Lebensqualität und vielfältige Freizeitmöglichkeiten.
Diese Lage ist ideal für Familien, Paare und Bauherren, die ruhiges Wohnen, gute Infrastruktur und naturnahe Erholung verbinden möchten.
Sonstige Angaben
WICHTIGE INFO FÜR ALLE INTERESSENTEN
Kontaktaufnahmen, Rückrufe oder Terminvereinbarungen erfolgen grundsätzlich nur mit Interessenten deren korrekte und vollständige Kontaktdaten mir vorliegen. Nutzen Sie dafür bitte das Online-Kontaktformular in diesem Angebot, ich melde mich umgehend bei Ihnen.
Angebot freibleibend. Irrtum, Änderungen und alle Rechte vorbehalten.
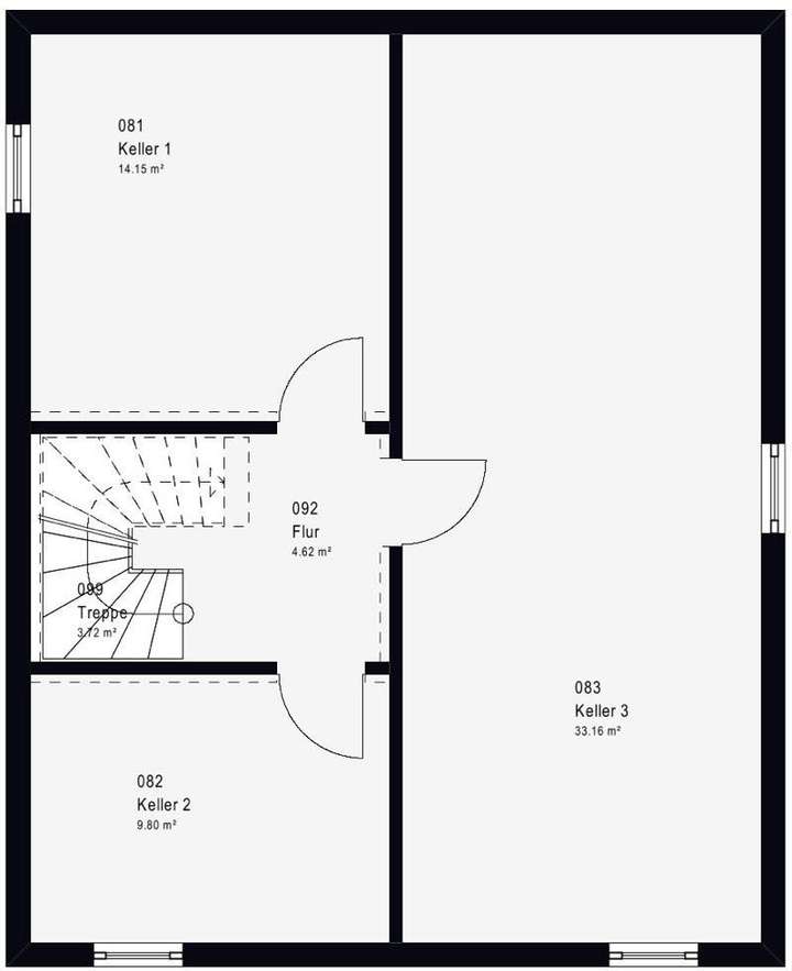
Grundriss
Grundriss EG
>
>
Grundriss OG
>
>
Grundriss KG (optional)
>
>
Adresse
36452 Kaltennordheim
Interessante Orte
Preis- und Lageinformationen
Preistrend für Bestandsimmobilien in Kaltennordheim