Bien-Zenker - EVOLUTION 136 mit Satteldach: Kompakt geplant, großzügig gelebt
Das EVOLUTION 136 ist die ideale Wahl für alle, die modernes Wohnen mit klassischer Architektur verbinden möchten. Das zeitlose Satteldach fügt sich harmonisch in städtische wie ländliche Umgebungen ein und verleiht dem Haus eine elegante, bodenständige Ausstrahlung.
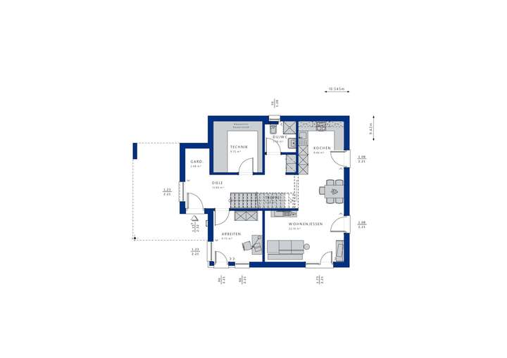
Mit ca. 136 m² Wohnfläche bietet dieses Einfamilienhaus genug Raum für Familien, Paare oder individuelle Lebensentwürfe. Im Erdgeschoss erwartet Sie ein offener, lichtdurchfluteter Wohn-/Essbereich mit direktem Zugang zur Terrasse. Die große Küche, ein Gäste-WC, der Technikraum und eine praktische Abstellfläche sorgen für Komfort im Alltag.
Im Obergeschoss befinden sich zwei gleichwertige Kinder- oder Arbeitszimmer, ein geräumiges Familienbad mit Dusche und Wanne sowie ein ruhiger Elternbereich mit separater Ankleide - perfekt für Rückzug und Entspannung.
Der durchdachte Grundriss, die moderne Technik und das hochwertige Erscheinungsbild machen das EVOLUTION 136 zu einem zuverlässigen Begleiter für viele Lebensphasen - kompakt geplant, aber überraschend großzügig erlebbar.
Bien-Zenker - Nachhaltig wohnen - energieeffizient & hochwertig gebaut
51766 Engelskirchen
Die vollständige Adresse der Immobilie erhalten Sie vom Anbieter.
Auf Karte anzeigen
Die vollständige Adresse der Immobilie erhalten Sie vom Anbieter.
Finanzierungszertifikat
In nur zwei Minuten zu Ihrem persönlichen Finanzierungszertifkat.
Infos
| Haustyp | Einfamilienhaus |
|---|---|
| Wohnfläche ca. | 136 m2 |
| Grundstücksfläche | 587 m2 |
| Bezugsfrei ab | 2026 |
| Zimmer | 5 |
| Schlafzimmer | 3 |
| Badezimmer | 2 |
Kosten
| Kaufpreis |
468.555 € |
|---|
Finanzierungsrechner:
Kaufpreis:
600.000 €
Eigenkapital:
600.000 €
Monatliche Rate
0 €
Effektiver Jahreszins
0 %
Sollzinsbindung
10 Jahre
Bausubstanz & Energieausweis
| Baujahr | 2026 |
|---|---|
| Bauphase | Haus in Planung (projektiert) |
| Qualität der Austattung | Gehoben |
Beschreibung des Objekts
Ausstattung
Ausstattung - durchdacht, hochwertig & bereit für Ihre persönliche Note.
Dieses Haus wird als energieeffizientes KfW 40 Haus geplant - nachhaltig, förderfähig und mit moderner Haustechnik ausgestattet. In der beliebten Ausbaustufe "Zur Ausstattung fertig" ist bereits alles vorbereitet, damit Sie auf Wunsch selbst Hand anlegen oder mit Ihren eigenen Fachfirmen weitergestalten können.
Folgende Leistungen sind bereits im Angebot enthalten:
Effizienzhaus KfW 40 inkl. Energieausweis
Luft-Wasser-Wärmepumpe mit Lüftungsanlage und Wärmerückgewinnung für ein gesundes Raumklima
3-fach verglaste Fenster mit Wärmeschutzverglasung
Elektrische Aluminium-Rollläden im Erd- und Obergeschoss
Innenwände fertig gespachtelt, grundiert und geschliffen - bereit für den letzten Anstrich
Fußbodenheizung mit verlegtem Estrich - ideal für Ihren Wunschboden
Sanitär- und Elektroinstallation vollständig vorbereitet
Rauchwarnmelder in allen Aufenthaltsräumen
Individuelle Grundrissplanung, inklusive Gäste-WC, Technik- und Abstellraum
Hochwertige Außenhülle mit Vollwärmeschutz - bereits komplett fertiggestellt
Koordination und Qualitätskontrolle durch Bien-Zenker Bauleitung
Was bedeutet das für Sie?
Ihr Haus ist technisch komplett ausgestattet, außen fertig gedämmt und innen bereit zur Vollendung. Wandgestaltung, Bodenbeläge, Türen und Sanitärobjekte können Sie ganz nach Ihrem Geschmack auswählen - ob in Eigenleistung oder mit Ihrem Handwerker.
Alternativ können Sie sich auch für unsere schlüsselfertige Variante entscheiden: Dann übernehmen wir alle Ausbauarbeiten für Sie - und Sie ziehen ganz entspannt in Ihr fertiges Zuhause ein.
Lage
Ruhig wohnen in naturnaher Lage von Engelskirchen
Diese Lage in Engelskirchen-Buschhausen bietet die perfekte Kombination aus erholsamem Wohnen im Grünen und praktischer Nähe zur Infrastruktur. Eingebettet in eine ruhige, gewachsene Wohngegend genießen Sie hier ein angenehmes Umfeld mit viel Natur, freundlicher Nachbarschaft und guter Anbindung.
In der Umgebung finden sich Kindergärten, Schulen, Supermärkte und medizinische Versorgung - alles bequem erreichbar. Für Berufspendler ist die schnelle Anbindung an die A4 ein echter Pluspunkt: Ob Richtung Gummersbach, Köln oder Siegen - Sie bleiben flexibel. Auch der Bahnhof Engelskirchen mit Anschluss Richtung Köln ist nur wenige Minuten entfernt.
Die Nähe zur Natur lädt zu Spaziergängen, Fahrradtouren oder entspannten Stunden im eigenen Garten ein - ein idealer Ort für Familien, Paare oder alle, die in ruhiger Umgebung leben, aber auf Komfort nicht verzichten möchten.
Sonstige Angaben
Der angegebene Preis umfasst sowohl das Haus in der Ausbaustufe "Zur Ausstattung fertig" als auch das Grundstück. Damit erhalten Sie ein realistisches Gesamtpaket für Ihr zukünftiges Zuhause - mit transparenter Kalkulation und geprüfter Bebaubarkeit.
Bitte beachten Sie: Die gezeigten Bilder dienen nur als Beispiel. Bien-Zenker baut keine Häuser "von der Stange", sondern individuelle Architektenhäuser, die ganz nach den Wünschen und Bedürfnissen unserer Bauherren geplant werden. Ob Grundriss, Dachform, Fensteranordnung oder Fassadengestaltung - Sie entscheiden, wie Ihr neues Zuhause aussehen soll.
Das angebotene Grundstück ist real vorhanden - es handelt sich nicht um eine fiktive Projektierung. Aus Rücksicht auf unsere Partner und Eigentümer geben wir detaillierte Informationen zur Lage ausschließlich an Bien-Zenker Kunden weiter.
Sollte dieses Grundstück nicht zu Ihnen passen, helfen wir Ihnen gerne über unser Netzwerk aus erfahrenen Maklern und Projektentwicklern bei der Suche nach einer passenden Alternative.
Ihre Vorteile mit Bien-Zenker:
Über 115 Jahre Erfahrung im Hausbau
Mehr als 80.000 gebaute Häuser
30 Jahre Garantie auf die Grundkonstruktion
18 Monate Festpreisgarantie
KfW-40 Effizienzstandard möglich
Persönliche Betreuung - vom ersten Gespräch bis zur Schlüsselübergabe
Bauen Sie mit einem Partner, der Ihre Wünsche ernst nimmt - und dafür sorgt, dass Sie sich nicht nur auf den Einzug freuen können, sondern auf ein echtes Zuhause fürs Leben.
Grundriss
5702-315-2-g
>
>
5703-315-3-g
>
>
Adresse
51766 Engelskirchen
Interessante Orte
Preis- und Lageinformationen
Preistrend für Bestandsimmobilien in Engelskirchen