SCHLÜSSELFERTIG!*
Wir bauen Ihr neues Haus in einer zentralen Ortslage. Mit insgesamt 132 m² bietet es ausreichend Platz für Familien, die nach einem komfortablen Zuhause suchen.
Der großzügige Ess-Koch-Wohn-Bereich bildet das Herzstück des Hauses. Mit offener Gestaltung lädt dieser Bereich zum gemeinsamen Kochen, Essen und Entspannen ein. Hier können Sie Ihre Familie und Freunde bequem empfangen und schöne Momente gemeinsam verbringen.
Das Haus verfügt zudem über ein großzügiges Badezimmer mit hochwertigen Armaturen und moderner Ausstattung.
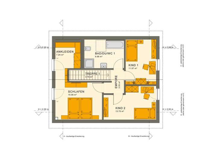
Für erholsame Nächte und Privatsphäre sorgen drei geräumige Schlafzimmer im Obergeschoss. Hier können sich Ihre Liebsten zurückziehen und die verdiente Ruhe genießen. Ob das Zimmer im Erdgeschoss als weiteres Arbeitszimmer oder Gästezimmer genutzt wird, können Sie nach Bedarf entscheiden - die flexiblen Räume bieten Ihnen viele Gestaltungsmöglichkeiten.
Um Familien beim Kauf dieses Traumhauses zu unterstützen, gibt es die Möglichkeit für eine Förderungsoption. Die genauen Details können beim Besprechungstermin erörtert werden.
* es können Erwerbsnebenkosten für das Grundstück anfallen / Alle Abbildungen sind Visualisierungen und können Sonderwünsche enthalten
Das ultimative Wohngefühl - Entdecken Sie Ihr neues Traumhaus!
73663 Berglen
Die vollständige Adresse der Immobilie erhalten Sie vom Anbieter.
Auf Karte anzeigen
Die vollständige Adresse der Immobilie erhalten Sie vom Anbieter.
Finanzierungszertifikat
In nur zwei Minuten zu Ihrem persönlichen Finanzierungszertifkat.
Infos
| Etagenzahl | 2 |
|---|---|
| Wohnfläche ca. | 132 m2 |
| Nutzfläche | 9 m2 |
| Grundstücksfläche | 270 m2 |
| Zimmer | 5 |
| Schlafzimmer | 4 |
| Badezimmer | 1 |
| Garage/Stellplatz | Garage |
| Anzahl Garage/Stellplatz | 1 |
Kosten
| Kaufpreis |
739.222 € |
|---|
Finanzierungsrechner:
Kaufpreis:
600.000 €
Eigenkapital:
600.000 €
Monatliche Rate
0 €
Effektiver Jahreszins
0 %
Sollzinsbindung
10 Jahre
Bausubstanz & Energieausweis
| Baujahr | unbekannt |
|---|---|
| Qualität der Austattung | Gehoben |
| Heizungsart | Solar-Heizung |
| Wesentliche Energieträger | Solarheizung |
Beschreibung des Objekts
Ausstattung
Livinghaus Fertighaus - schlüsselfertig gebaut
- inklusive Grundstück, Bodenplatte und Baugrunduntersuchung
- Baunebenkosten
- Abriss Bestandsgebäude
- Baugenehmigungsplanung
- Bauversicherungen
- 3-fach-verglaste Isolier-Kunststofffenster inkl. Rollläden
- Wohlfühl-Klima-Heizung mit Kühlfunktion betriebsbereit installiert
- Hochwertige Einbauküche mit Bosch Küchengeräten
- Offene Vollholztreppe
- Effizienzhaus 55 inkl. Photovoltaik-Anlage
- Garage und Gartengestaltung
- alle Innenarbeiten inklusive Malerarbeiten, Bodenbelagsarbeiten und Sanitäreinrichtungen inklusive!
Lage
Ihr neues Livinghaus befindet sich in einer ruhigen, verkehrsgünstigen Straße zentral in Hößlinswart und bietet in der Umgebung vielfältige Einkaufsmöglichkeiten für den alltäglichen Bedarf.
Im Interesse des Grundstückseigentümers können wir die konkreten Grundstücksdaten erst nach einem persönlichen Gespräch nennen.
Sonstige Angaben
Mit diesem Livinghaus erwartet Sie ein modernes und komfortables Zuhause, das den Bedürfnissen Ihrer Familie gerecht wird. Zögern Sie nicht und vereinbaren Sie noch heute einen Termin zur Besichtigung.
Wir freuen uns darauf, Ihnen dieses einzigartige Angebot präsentieren zu dürfen; rufen Sie an oder schreiben Sie mir - gemeinsam setzen wir Ihre Träume mit Ihrem Livinghaus um: nicolaj.pietsch@livinghaus.de oder 0176/31160395
Grundriss
Grundriss Dachgeschoss
>
>
Grundriss Erdgeschoss
>
>
Adresse
73663 Berglen
Interessante Orte
Preis- und Lageinformationen
Preistrend für Bestandsimmobilien in Berglen