Dieser attraktive, hochwertige Bungalow vereint klassischen Charme mit modernem Wohnkomfort. Das Haus wurde 1966 erbaut und das Erdgeschoss bereits umfassend saniert. Die Immobilie bietet mit rund 160 qm Wohnfläche und einem großzügigen Garten viel Platz für Familien oder auch Paare mit gehobenem Anspruch.
Das Herzstück des Hauses bildet der offene Wohn- und Essbereich mit hochwertiger Einbauküche und direktem Zugang zum lichtdurchfluteten Wintergarten. Ein gemütlicher Kaminofen sorgt im Wohnzimmer für ein behagliches Wohngefühl in der kühleren Jahreszeit.
Daneben befinden sich im Erdgeschoss ein modernes Badezimmer mit Dusche, einem Schlafzimmer, einem Arbeits- sowie einem Kinderzimmer. Alle Wohnräume sind mit edlem Parkettboden ausgestattet.
Das Dachgeschoss mit zwei Schlafzimmern und einem kleinen Badezimmer eignet sich ideal als separaten Bereich für die Kinder.
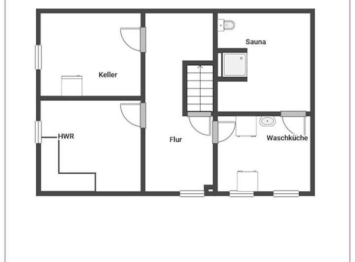
Das Kellergeschoss verfügt über ca. 70 qm Nutzfläche. Diese verteilt sich auf den Hauswirtschaftsraum, die Waschküche, einen Vorratsraum sowie auf einen Raum mit Sauna und Dusche.
Der große Garten bietet viel Platz für Selbstversorger zum Gärtnern und Kindern zum Austoben.
Ihnen steht zudem eine Garage sowie zwei Stellplätze im Freien zur Verfügung. Diese sind in der Miete enthalten.
Der Bungalow wird vollständig möbliert vermietet. Die Miete beläuft sich auf 2.380,00 Euro zuzüglich 500 Euro Nebenkosten.
Exklusiver, möblierter Bungalow mit großzügigem Garten zur Miete in Iphofen
97346 Iphofen
Die vollständige Adresse der Immobilie erhalten Sie vom Anbieter.
Auf Karte anzeigen
Die vollständige Adresse der Immobilie erhalten Sie vom Anbieter.
Infos
| Haustyp | Bungalow |
|---|---|
| Wohnfläche ca. | 160 m2 |
| Nutzfläche | 70 m2 |
| Grundstücksfläche | 1.000 m2 |
| Bezugsfrei ab | 01.02.2026 |
| Zimmer | 6 |
| Badezimmer | 2 |
| Haustiere | Nach Vereinbarung |
| Garage/Stellplatz | Garage |
| Anzahl Garage/Stellplatz | 1 |
Kosten
| Kaltmiete |
2.380 € |
|---|---|
| Nebenkosten | + 500 € |
| Heizkosten | in Nebenkosten enthalten |
| Gesamtmiete | 2.880 € |
| Kaution o. Genossenschaftsanteile | 6.000,-- EUR |
Weiter mieten oder doch kaufen?
Wer in Miete wohnt, überweist dem Vermieter im Laufe der Jahre hohe Summen, die sich
auch in die eigenen vier Wände investieren lassen könnten.
Bausubstanz & Energieausweis
| Baujahr | 1966 |
|---|---|
| Objektzustand | Gepflegt |
| Qualität der Austattung | Normal |
| Heizungsart | Zentralheizung |
| Wesentliche Energieträger | Gas |
| Energieausweis | liegt vor |
| Energieausweistyp | Bedarfsausweis |
| Energieverbrauchskennwert | 194,9 kWh/(m²*a) |
| Energieeffizienzklasse | F |
194,9
kWh/(m²*a)
Energieeffizienzklasse F
- A+
- A
- B
- C
- D
- E
- F
- G
- H
- 0
- 25
- 50
- 75
- 100
- 125
- 150
- 175
- 200
- 225
- >250
Beschreibung des Objekts
Lage
Der Bungalow befindet sich in Iphofen, einer charmanten fränkischen Stadt mit sehr guter Infrastruktur. Einkaufsmöglichkeiten, Schulen, Kindergärten sowie Ärzte sind bequem erreichbar. Die Umgebung bietet eine hohe Lebensqualität mit Weinbergen, Natur und guter Verkehrsanbindung - ideal für Familien oder Menschen, die Ruhe und Komfort suchen.
Sonstige Angaben
Energiebedarfsausweis Energiekennwert: 194,90 kWh/(qm*a) Energieeffizienz: Klasse F (kl.200) Heizung: Zentralheizung mit Gas Baujahr laut Energieausweis: 1966
1 x Garage, 2 x Stellplatz außen
Grundriss
Grundriss Untergeschoss Bungal
>
>
Grundriss Erdgeschoss Bungalow
>
>
Grundriss Dachgeschoss Bungalo
>
>
Adresse
97346 Iphofen
Interessante Orte
Preis- und Lageinformationen
Preistrend für Bestandsimmobilien in Iphofen