Die Gillenmoor GmbH & Co. eGbR ist Eigentümer der Fläche des Plangebietes "Am Gillenmoor" und beplant, entwickelt, erschließt und vermarktet die Grundstücke.
Nach erfolgreicher Planung und Erstellung eines Flächennutzungsplanes und eines Bebauungsplanes durch die Gemeinde Bispingen erfolgt durch uns die Erschließung des Plangebietes. Dieses umfasst die Herstellung der Ver- und Entsorgung, die herzustellenden Straßen bis hin zur Straßenlaterne, so dass vollerschlossene Grundstücke durch uns hergestellt und vermarktet werden.
Bei Fragen zu den Grundstücken oder zu der Verfügbarkeit einzelner Grundstücke, wenden Sie sich gerne per mail an uns unter:
info@gillenmoor.de
oder rufen Sie uns gerne an.
Finanzierungszertifikat
In nur zwei Minuten zu Ihrem persönlichen Finanzierungszertifkat.
Infos
| Vermarktungsart | Kaufen |
|---|---|
| Grundstücksfläche | 864 m2 |
| Erschließung | Erschlossen |
| Verfügbar ab | nach Absprache |
Kosten
| Miete pro Jahr |
154.656 € |
|---|---|
| Provision | Nein |
Finanzierungsrechner:
Kaufpreis:
600.000 €
Eigenkapital:
600.000 €
Monatliche Rate
0 €
Effektiver Jahreszins
0 %
Sollzinsbindung
10 Jahre
Beschreibung des Objekts
Lage
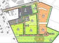
Das Baugebiet "Am Gillenmoor" befindet sich mitten in Bispingen, im Zentrum der Lüneburger Heide.
Der erste Bauabschnitt des Bebauungsplanes Nr.168 der Gemeinde Bispingen umfasst 34 Baugrundstücke.
Diese Grundstücke sind mit Einzel-, Doppel- und Mehrfamilienhäusern bebaubar.
Infrastruktur (im Umkreis von 5 km):
Apotheke, Lebensmittel-Discount, Allgemeinmediziner, Kindergarten, Grundschule, Hauptschule, Realschule, Öffentliche Verkehrsmittel
Sonstige Angaben
Gillenmoor GmbH & Co. eGbR
Borsteler Straße 30
29646 Bispingen
Telefon:0160-93843575
Email:info@gillenmoor.de
Geschäftsführer:Dipl.-Kfm. Florian Groffmann
Steffen Brunckhorst
Registergericht:Amtsgericht Lüneburg
Steuernummer:41/203/08943
GsR-Nr.:195
ohne-makler (OM) ist weder Anbieter noch Vermittler der Immobilie. OM betreibt eine Plattform für Immobilieneigentümer, die unter anderem die gleichzeitige Veröffentlichung einzelner Inserate auf mehreren Immobilienportalen ermöglicht. Die Inhalte dieser Inserate werden ausschließlich von Dritten verantwortet. Für die Richtigkeit, Vollständigkeit oder Rechtmäßigkeit der Angaben übernimmt OM keine Haftung. Hinweise auf mögliche Rechtsverstöße können jederzeit gemeldet werden und werden nach Prüfung umgehend bearbeitet.