Diese vielseitige Immobilie bietet eine seltene Kombination aus Wohnen, Nutzungspotenzial und Entwicklungsmöglichkeiten. Auf einem ca. 4.242 m² großen Grundstück befinden sich ein Einfamilienhaus, mehrere Nebengebäude sowie zwei aktuell noch verpachtete Gebäude mit attraktiven Perspektiven ab Ende 2026.
.
Das Grundstück ist derzeit klar aufgeteilt in einen privaten eingezäunten Bereich von ca. 2.700 m² sowie einen verpachteten Bereich mit ca. 1.500 m². Die beiden bestehenden Pachtverträge sind jedoch bereits gekündigt und enden im August 2026. Somit steht Ihnen das gesamte Grundstück dann zur Eigennutzung oder zur erneuten Verpachtung zu.
.
Im vorderen privaten Grundstücksbereich befindet sich das massiv gebaute Einfamilienhaus aus dem Jahr 1946 mit einer Wohnfläche von ca. 116 m², verteilt auf zwei Etagen.
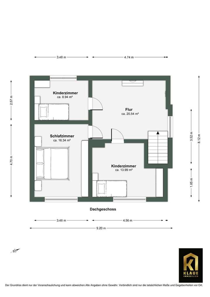
Im Erdgeschoss befinden sich das Badezimmer, die Küche, eine Abstellkammer sowie das Wohnzimmer mit Kamin. Das Obergeschoss umfasst drei Schlafzimmer sowie einen großzügigen Flurbereich, der sich auch als zusätzliche Nutzfläche eignet. Das Gebäude ist nicht voll unterkellert, es gibt nur einen kleinen Kellerraum unter der Küche.
.
Das Haus wurde im Laufe der Jahre fortlaufend instand gehalten und teilweise renoviert. Die zuletzt erfolgte Maßnahme war im Jahr 2018 der Einbau einer neuen Gastherme der Firma Viessmann. Weitere Modernisierungen wurden überwiegend in den 1980er und 1990er Jahren durchgeführt. Entsprechend entspricht der Ausstattungsstandard in Teilen nicht mehr dem heutigen Zeitgeschmack, sodass Renovierungsbedarf besteht.
Das Gebäude ist in massiver Bauweise Stein auf Stein errichtet. Die gedämmte Fassade aus echten Klinkern verleiht dem Haus ein dauerhaftes und wertbeständiges Erscheinungsbild.
.
Die Immobilie ist sehr gut erschlossen und verfügt über einen Anschluss an Gas, Frischwasser, Strom sowie Glasfaser. Ein Anschluss an das öffentliche Abwassernetz ist nicht vorhanden. Die Abwasserentsorgung erfolgt über eine Grube, die regelmäßig geleert werden muss.
.
Außenbereich und Nebengebäude:
.
Der private Grundstücksteil überzeugt durch großzügige Flächen und zusätzliche Nutzmöglichkeiten:
- Überdachte Terrasse mit ca. 30 m²
- Scheune aus den 1970er Jahren mit ca. 70 m²
- Zwei Garagen sowie ein Carport
- Großer Garten mit vielfältigen Nutzungsmöglichkeiten
.
Der aktuell verpachtete Grundstücksteil bietet künftig interessante Optionen zur Eigennutzung oder zur erneuten Verpachtung.
.
Dorfschmiede:
- ca. 220 m²
- besonderes Gebäude mit historischem Charakter
- originale Bestandteile der ehemaligen Schmiede sind erhalten
- Baujahr 1970er Jahre
- derzeit an die Gemeinde verpachtet
- Nutzung als Veranstaltungs- und Feierlocation
- Ausstattung mit Bar, kleiner Bühne und Sitzplätzen
- Pachtvertrag endet im August 2026
.
Feuerwehrgebäude:
- ca. 80 m²
- Aktuell von der Freiwilligen Feuerwehr genutzt
- Pachtvertrag endet im August 2026
.
.
Die gesamte Immobilie ist ab Ende 2026 verfügbar. Sie bietet viel Raum für individuelle Konzepte und Nutzungsideen und eignet sich sowohl für Eigennutzer mit erhöhtem Platzbedarf als auch für Käufer, die Wohnen mit zusätzlichen Nutzungsmöglichkeiten kombinieren möchten. Das großzügige Grundstück, das Wohnhaus sowie die vielseitig nutzbaren Gebäude eröffnen unterschiedliche Perspektiven und machen dieses Objekt zu einer attraktiven Gelegenheit.
Vielseitiges Anwesen mit Einfamilienhaus, Veranstaltungsgebäuden & großem Grundstück in Tauche!
15848 Tauche
Die vollständige Adresse der Immobilie erhalten Sie vom Anbieter.
Auf Karte anzeigen
Die vollständige Adresse der Immobilie erhalten Sie vom Anbieter.
Finanzierungszertifikat
In nur zwei Minuten zu Ihrem persönlichen Finanzierungszertifkat.
Infos
| Haustyp | Einfamilienhaus |
|---|---|
| Etagenzahl | 2 |
| Wohnfläche ca. | 116 m2 |
| Nutzfläche | 370 m2 |
| Grundstücksfläche | 4.242 m2 |
| Bezugsfrei ab | Ende 2026 |
| Zimmer | 5 |
| Schlafzimmer | 3 |
| Badezimmer | 1 |
| Garage/Stellplatz | Carport |
| Anzahl Garage/Stellplatz | 4 |
Kosten
| Kaufpreis |
279.000 € |
|---|---|
| Provision |
3,57% inkl. 19% USt. vom Kaufpreis, zahlbar vom Käufer an Klaue Immobilien. Die Provision i.H.v. 3,57% inkl. 19% USt. ist fällig und verdient mit Beurkundung des Kaufvertrags. Ich habe einen Maklervertrag in gleicher Höhe mit dem Verkäufer abgeschlossen. |
Finanzierungsrechner:
Kaufpreis:
600.000 €
Eigenkapital:
600.000 €
Monatliche Rate
0 €
Effektiver Jahreszins
0 %
Sollzinsbindung
10 Jahre
Bausubstanz & Energieausweis
| Baujahr | 1946 |
|---|---|
| Letzte Sanierung | 2018 |
| Objektzustand | Renovierungsbedürftig |
| Qualität der Austattung | Einfach |
| Heizungsart | Zentralheizung |
| Wesentliche Energieträger | Gas |
| Energieausweis | liegt vor |
| Energieausweistyp | Bedarfsausweis |
| Energieverbrauchskennwert | 189,0 kWh/(m²*a) |
| Energieeffizienzklasse | F |
189,0
kWh/(m²*a)
Energieeffizienzklasse F
- A+
- A
- B
- C
- D
- E
- F
- G
- H
- 0
- 25
- 50
- 75
- 100
- 125
- 150
- 175
- 200
- 225
- >250
Beschreibung des Objekts
Ausstattung
- Grundstücksgröße: ca. 4.242 m²
- Privater eingezäunter Grundstücksteil: ca. 2.700 m²
- Verpachteter Grundstücksteil: ca. 1.500 m²
- Einfamilienhaus Baujahr 1946
- Wohnfläche: ca. 116 m²
- Massive Bauweise Stein auf Stein
- Gedämmte Fassade aus echten Klinkern
- Gastherme Viessmann, Baujahr 2018
- Renovierungsbedarf vorhanden
- Überdachte Terrasse ca. 30 m²
- Zwei Garagen und ein Carport
- Scheune Baujahr 1970er Jahre, ca. 70 m²
- Dorfschmiede ca. 220 m², derzeit noch verpachtet
- Feuerwehrgebäude ca. 80 m², derzeit noch verpachtet
- Gesamtfläche der Nebengebäude ca. 370 m²
- Gas, Frischwasser, Strom und Glasfaser vorhanden
- Abwasserentsorgung über Grube
- Verfügbarkeit der Gesamtimmobilie ab Ende 2026
Lage
Das Grundstück befindet sich in ruhiger und naturnaher Lage in Tauche, einer Gemeinde im Landkreis Oder-Spree im Land Brandenburg. Die Umgebung ist geprägt von ländlicher Idylle, weitläufigen Grünflächen sowie einer gewachsenen Wohnstruktur mit überwiegend Ein- und Zweifamilienhäusern.
Tauche bietet eine hohe Lebensqualität für Familien, Ruhesuchende und Naturliebhaber. Zahlreiche Wälder, Wiesen und Seen in der näheren Umgebung laden zu Freizeitaktivitäten wie Spaziergängen, Radfahren oder Erholung im Grünen ein. Gleichzeitig ist die Region für ihre landschaftliche Vielfalt und geringe Verkehrsbelastung bekannt.
Die Grundversorgung ist in Tauche und den umliegenden Ortschaften, wie zum Beispiel im nahegelegenen Beeskow, gewährleistet. Dort befinden sich Einkaufsmöglichkeiten, Schulen, Kindertagesstätten, medizinische Versorgung sowie gastronomische Angebote. Beeskow ist in wenigen Fahrminuten erreichbar.
Die Verkehrsanbindung ist gut:
Der Standort Tauche ist an den regionalen öffentlichen Personennahverkehr angebunden. In der Gemeinde Tauche sowie in den umliegenden Ortsteilen verkehren Buslinien, die eine Verbindung zu nahegelegenen Städten und Gemeinden herstellen, insbesondere nach Beeskow.
Der Bahnhof Beeskow bildet den zentralen ÖPNV-Knotenpunkt der Region und ist mit dem Bus oder dem Auto gut erreichbar. Von dort bestehen regelmäßige Regionalbahnverbindungen, unter anderem in Richtung Frankfurt (Oder) sowie mit Anschlussmöglichkeiten weiter nach Berlin. Dadurch ist auch für Berufspendler eine praktikable Anbindung gegeben.
Der ÖPNV ist vor allem auf den regionalen Bedarf ausgerichtet und eignet sich gut für Alltagswege, Schulverkehr sowie Verbindungen in die umliegenden Orte. Für längere Strecken oder eine höhere zeitliche Flexibilität bietet sich ergänzend die Nutzung des Pkw an.
Insgesamt verbindet die Lage eine ruhige, naturnahe Wohnatmosphäre mit einer guten Erreichbarkeit wichtiger infrastruktureller Einrichtungen – ideal für alle, die entspanntes Wohnen im Grünen schätzen, ohne auf eine angemessene Anbindung verzichten zu wollen.
Sonstige Angaben
Provisionspflichtig für den Käufer. Die Provision beträgt 3,57% inkl. 19 % USt. und ist verdient und fällig mit Kaufvertragsunterzeichnung. Es wurde ein Maklervertrag mit dem Verkäufer in gleicher Höhe abgeschlossen.
Alle gemachten Angaben zu Objekten sind ohne Gewähr und basieren ausschließlich auf Informationen, die mir von meinem Auftraggeber oder von Dritten übermittelt wurden. Ich übernehme keine Gewähr für die Richtigkeit, die Vollständigkeit sowie die Aktualität dieser Angaben, insbesondere die Angaben zur Wohnfläche, zur Nutzfläche und zur Aufteilung der Wohn-/Nutzfläche sind von mir nicht durch ein eigenes Aufmaß oder eine eigene Wohnflächenberechnung kontrolliert und die Angaben zum Baujahr sind nicht überprüft worden.
Vermögensschaden-Haftpflichtversicherung abgeschlossen bei Hiscox SA Versicherungsgesellschaft, 35 F Avenue John F. Kennedy, L-1855 Luxemburg.
Grundriss
Grundriss OG
>
>
Grundriss EG
>
>
Adresse
15848 Tauche
Interessante Orte
Preis- und Lageinformationen
Preistrend für Bestandsimmobilien in Tauche