Wir haben ZUHAUSE verstanden.
Um ZUHAUSE zu verstehen, muss man die Menschen verstehen. Deshalb beschäftigen wir uns fortlaufend und intensiv mit Menschen, die bauen möchten oder bereits gebaut haben. Wir stehen im Dialog mit ihnen, diskutieren und lernen. Wir haben verstanden, dass ZUHAUSE in allererster Linie ein Gefühl ist und dann erst ein Gebäude.
Du suchst mehr als vier Wände und ein Dach. Du suchst ein Zuhause. Ein Fertighaus, das genau zu Dir und Deiner Familie passt.
Indem du dich genauso ZUHAUSE fühlst wie alle, die mit Dir darin leben. Mit dem sicheren Ausbauhaus-Konzept von Living Haus machst Du diesen Traum ganz sicher wahr.
Einzigartige Services, umfangreiche Inklusiv-Leistungen und die ganze Gestaltungsfreiheit eines Ausbauhauses.
Eine Kombination, die du nur beim großartigsten Fertighausanbieter findest. Was ein Fertighaus überhaupt ist und warum es genau das Richtige für Dich ist?
Dein Living Haus Fertighaus ist vorgefertigt. Das heißt: Alle Bau- und Einzelteile sind schon an ihrem Platz. Diese bekommst Du dann geliefert. Vor Ort, auf deinem Grundstück, wird dein Zuhause in Fertighausbauweise an meist nur zwei Tagen von einem eingespielten Montage-Team endmontiert.
Mit kurzer Bauzeit, hoher Termintreue und hervorragender Ökobilanz schlägt dein Fertighaus ein Massivhaus in klassischer Bauweise um Längen. Zusätzlich sparst du dir langwieriges Trockenwohnen im Massivhaus und kommst direkt in deinem neuen Living Haus an. Statt auf irgendwas zu warten, beginnst Du damit, es zu Deinem Zuhause zu machen.
Der große Vorteil bei deinem Fertighaus von Living Haus - neben den vielen tollen Inklusiv-Leistungen: Du bekommst alle für den Hausaufbau wesentlichen Leistungen aus einer Hand, bis zu dem Punkt, an dem du den Ausbau selbst übernimmst.
Denn was dein Zuhause ausmacht, entscheidest immer Du. Pack es an! Kontaktiere mich und vereinbare noch heute einen kostenlosen und unverbindlichen Beratungstermin unter 0162/3174096
Altersgerechtes Wohnen in Ludwigsfelde
14974 Ludwigsfelde
Die vollständige Adresse der Immobilie erhalten Sie vom Anbieter.
Auf Karte anzeigen
Die vollständige Adresse der Immobilie erhalten Sie vom Anbieter.
Finanzierungszertifikat
In nur zwei Minuten zu Ihrem persönlichen Finanzierungszertifkat.
Infos
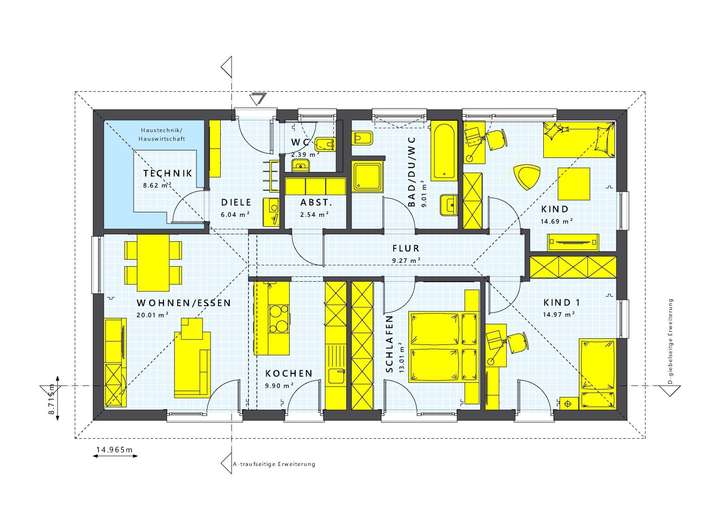
| Haustyp | Bungalow |
|---|---|
| Etagenzahl | 1 |
| Wohnfläche ca. | 110 m2 |
| Grundstücksfläche | 1.211 m2 |
| Bezugsfrei ab | 2026 |
| Zimmer | 4 |
| Schlafzimmer | 3 |
| Badezimmer | 1 |
Kosten
| Kaufpreis |
679.000 € |
|---|
Finanzierungsrechner:
Kaufpreis:
600.000 €
Eigenkapital:
600.000 €
Monatliche Rate
0 €
Effektiver Jahreszins
0 %
Sollzinsbindung
10 Jahre
Bausubstanz & Energieausweis
| Baujahr | 2026 |
|---|---|
| Bauphase | Haus in Planung (projektiert) |
| Heizungsart | Wärmepumpe |
Beschreibung des Objekts
Ausstattung
Living Haus, da ist alles mit drin.
- Grundstücks-Service
- Finanzierungs-Service
- Hausbau-Förderung
- alle notwendigen Bauherren-Versicherungen
- DGNB-Zertifizierung in Gold
- der Architekt für die Baugenehmigungsplanung
Das alles brauchst du sowieso - deshalb bekommst du das bei Living Haus gleich mit dazu, ohne Zusatzkosten - Einfach alles mit drin. Und noch viel mehr.
Großartige Extra-Leistungen, die du so nirgends findest.
Wie ...
- unsere Living Haus Bau-Cockpit App, mit der hast du immer den Durchblick und bist auf dem aktuellen Projektstand
- unser Zuhause-Paket
- unser DIY-Ausbau-Coaching
- unsere Ausbau-Tutorials, wir zeigen Dir wie es geht
- die Bodenplatte oder der Keller
- QNG Förderung
... und sowieso inklusive: die richtige Hausbau-Beratung bei deinem Hausberater.
Dabei gehen wir selbstverständlich auf alle Themen ein, die den Weg in das neue Zuhause betreffen.
Lass deiner Kreativität freien Lauf: Du nimmst den Innenausbau ja schließlich selbst in die Hand! (wählbar) Unser Zuhause-Paket, mit dem du wirklich ALLE Materialien direkt zu dir geliefert bekommst und sofort durchstarten kannst und eine Prise Inspiration sind die perfekte Basis für deinen individuellen Innenausbau.
Du musst dich nicht durch Bauvorschriften, Förderkataloge und technische Spezifikationen wühlen. Das haben wir schon gemacht. Ergebnis: ein intelligent konfiguriertes Paket. Perfekt aufeinander abgestimmte Komponenten, die alle Vorteile vereinen.
+ Photovoltaik-Anlage
+ Batteriespeicher
+ Wärmepumpenheizung inkl. Komfortlüftung und Wärmerückgewinnung
+ Ideal gedämmte Gebäudehülle
= Dein Living Haus mit Deinem Plus an Sicherheit für die Zukunft
Melde Dich gern, wenn Du Fragen diesbezüglich hast.
01623174096
Lage
Das Grundstück für dieses Hausprojekt befindet sich in Ludwigsfelde, angenehm und ruhig gelegen. Einkaufsmöglichkeiten, soziale Einrichtungen und öffentlicher Verkehr sind ortsüblich erreichbar.
Doch nicht ganz deine Wunschlage? Das ist kein Problem. Wir sollten uns einfach über deine Wünsche unterhalten. Zurzeit verfüge ich über zahlreiche weitere Grundstücke in der Region.
Du hast bereits ein eigenes Baugrundstück? Glückwunsch! Natürlich baue ich mit dir auch auf deinem eigenen Grundstück dein Traumhaus für dich und deine Familie.
Also, einfach anrufen unter 0162/3174096. Es gibt für fast alles eine überzeugende Lösung.
Jedoch bitte ich dich zu berücksichtigen:
Im Interesse der jeweiligen Grundstückseigentümer sowie meiner Bauherren werde ich ohne ein persönliches Gespräch zum Thema Hausbau keine Grundstücksdaten weiterleiten.
Meine Angebote erfolgen freibleibend und unverbindlich. Irrtum und Zwischenverkauf bleiben vorbehalten. Den, auf die einzelnen Grundstücke bezogenen, Angaben liegen den mir gegenüber erteilten Auskünften und Informationen zugrunde. Trotz sorgfältiger Prüfung kann ich daher eine Haftung für deren Richtigkeit und Vollständigkeit nicht übernehmen.
Und... natürlich ist es mir, selbst mit bestem Willen, nicht möglich, eine dauerhafte Verfügbarkeit der Grundstücke zu garantieren. Denn jedes Grundstück ist einzigartig und eben nur einmal verfügbar.
Sonstige Angaben
Das hier angebotene Grundstück ist im obigen Preis eingerechnet. Es wird ohne zusätzliche Provision an einen Living Haus-Bauherren bereitgestellt.
Zusätzliche Baunebenkosten müssen noch hinzugerechnet werden, hierüber beraten wir dich gern.
Wir bieten auch interessante Finanzierungsmöglichkeiten inklusive Beantragung aller Fördermittel!
Die Hausabbildungen und die Bilder der Inneneinrichtung zeigen möglicherweise Extras, die nicht im angegebenen Kaufpreis inbegriffen sind.
Gute Beratung ist der Anfang von Allem. Deshalb analysieren wir gemeinsam mit dir deine Vorstellungen, Wünsche und Bedürfnisse und finden so das für dich und deine Familie passende Living Haus.
Interessiert? Kontaktiere mich und vereinbare noch heute einen kostenlosen und unverbindlichen Beratungstermin unter 0162/3174096
Grundriss
Grundriss
>
>
Adresse
14974 Ludwigsfelde
Interessante Orte
Preis- und Lageinformationen
Preistrend für Bestandsimmobilien in Ludwigsfelde