Diese außergewöhnliche Villa befindet sich in ruhiger, naturnaher Lage von Asendorf am Nordrand der Lüneburger Heide und bietet ein Höchstmaß an Privatsphäre, Großzügigkeit und diskretem Luxus. Das Anwesen liegt auf einem ca. 7.473 m² großen, parkähnlich angelegten Grundstück mit altem Baumbestand und grenzt unmittelbar an die weitläufige Heidelandschaft.
Das freistehende Haus wurde ursprünglich 1965 errichtet und in den vergangenen Jahren kontinuierlich modernisiert und hochwertig ausgestattet. Es präsentiert sich heute als repräsentative Wohnimmobilie mit klarer Architektur, solider Bausubstanz und durchdachter Raumaufteilung.
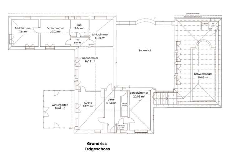
Im Erdgeschoss stehen ca. 191 m² Wohnfläche zur Verfügung. Großzügige, lichtdurchflutete Räume, ein offener Wohn- und Essbereich sowie der direkte Zugang zu den Terrassen und in den Garten prägen das Wohngefühl. Die Raumgestaltung ermöglicht sowohl repräsentatives Wohnen als auch komfortables Familienleben auf einer Ebene.
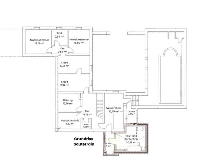
Ergänzt wird das Raumangebot durch ein hochwertig ausgebautes und beheiztes Souterrain mit ca. 273 m² Wohn- und Nutzfläche. Hier befinden sich mehrere Gäste- und Arbeitszimmer, ein Wellnessbereich mit Sauna und Ruheraum sowie ein großzügiger, ganzjährig nutzbarer Indoor-Pool. Der Souterrainbereich ist vollständig in das Wohnkonzept integriert und bietet vielseitige Nutzungsmöglichkeiten.
Die Liegenschaft verfügt über eine massive Garagenanlage sowie ausreichend Stellflächen auf dem Grundstück. Die Kombination aus Grundstücksgröße, hochwertiger Ausstattung, Wellnessangebot und der Nähe zur Metropolregion Hamburg macht diese Villa zu einer seltenen Gelegenheit für anspruchsvolle Käufer.
Exklusive Villa mit Indoor-Pool auf großzügigem Grundstück – nahe Hamburg
21271 Asendorf
Die vollständige Adresse der Immobilie erhalten Sie vom Anbieter.
Auf Karte anzeigen
Die vollständige Adresse der Immobilie erhalten Sie vom Anbieter.
Finanzierungszertifikat
In nur zwei Minuten zu Ihrem persönlichen Finanzierungszertifkat.
Infos
| Haustyp | Villa |
|---|---|
| Etagenzahl | 2 |
| Wohnfläche ca. | 375 m2 |
| Nutzfläche | 100 m2 |
| Grundstücksfläche | 7.473 m2 |
| Zimmer | 9 |
| Schlafzimmer | 4 |
| Badezimmer | 4 |
| Garage/Stellplatz | Garage |
| Anzahl Garage/Stellplatz | 5 |
Kosten
| Kaufpreis |
2.990.000 € |
|---|---|
| Provision | Nein |
Finanzierungsrechner:
Kaufpreis:
600.000 €
Eigenkapital:
600.000 €
Monatliche Rate
0 €
Effektiver Jahreszins
0 %
Sollzinsbindung
10 Jahre
Bausubstanz & Energieausweis
| Baujahr | 1965 |
|---|---|
| Letzte Sanierung | 2021 |
| Objektzustand | Neuwertig |
| Qualität der Austattung | Luxus |
| Heizungsart | Blockheizkraftwerk |
| Energieausweis | liegt zur Besichtigung vor |
Beschreibung des Objekts
Ausstattung
• Großzügige Wohnfläche auf einer Ebene im Erdgeschoss
• Hochwertig ausgebautes, beheiztes Souterrain
• Mehrere flexibel nutzbare Gäste- und Arbeitszimmer
• Exklusiver Wellnessbereich mit Sauna, Ruheraum und Indoor-Pool
• Beheizter, ganzjährig nutzbarer Indoor-Pool mit großzügiger Wasserfläche
• Großformatige Marmorböden in den Wohn- und Aufenthaltsbereichen
• Große Fensterflächen mit viel Tageslicht
• Repräsentativer Eingangsbereich
• Massive Bauweise mit Klinkerfassade
• Gepflegtes, repräsentatives Grundstück mit altem Baumbestand
• Großzügige Terrassenflächen
• Massive Garagenanlage
• Elektrisch betriebene Tore
• Funktionale Neben- und Technikräume
• Gas-Zentralheizung (Blockheizkraftwerk, Baujahr 2016)
• Ruhige, nicht einsehbare Lage
• Repräsentative, massiv errichtete Garagenanlage mit insgesamt fünf Stellplätzen
Lage
Die Immobilie befindet sich in bevorzugter Wohnlage von Asendorf am Nordrand der Lüneburger Heide. Die Umgebung ist geprägt von weitläufigen Wald- und Heidelandschaften sowie großzügigen Grundstücken mit geringer Bebauungsdichte. Die Lage bietet ein hohes Maß an Ruhe, Privatsphäre und naturnahem Wohnen.
Asendorf selbst verfügt über eine gute Grundversorgung für den täglichen Bedarf. Einkaufsmöglichkeiten, Ärzte, Kindergärten und Schulen sind in kurzer Fahrzeit erreichbar. Weiterführende Schulen befinden sich in den umliegenden Orten.
Die Anbindung an die Metropolregion Hamburg ist sehr gut. Die Hamburger Innenstadt ist sowohl über die A7 (Anschlussstelle Ramelsloh) als auch über die A1 in ca. 35–40 Minuten erreichbar. Damit eignet sich die Lage ideal für Berufspendler, die naturnah wohnen möchten, ohne auf die Nähe zur Großstadt zu verzichten.
Die Lüneburger Heide bietet darüber hinaus ein vielfältiges Freizeit- und Erholungsangebot mit Reit-, Rad- und Wanderwegen sowie zahlreichen Natur- und Landschaftsschutzgebieten.
Sonstige Angaben
Der Verkauf umfasst ein ca. 7.473 m² großes Flurstück, auf dem sich die Villa befindet. Die großzügige Grundstücksfläche bietet neben dem bestehenden Anwesen zusätzliches bauliches Entwicklungspotenzial.
Für das angebotene Grundstück liegt ein positiver Bauvorbescheid vor, der eine weitere bauliche Nutzung grundsätzlich ermöglicht. Insgesamt kann das Grundstück – bei entsprechender Planung – um weitere ca. 14.956 m² erweitert werden, sodass perspektivisch eine Gesamtfläche von rund 22.400 m² zur Verfügung stehen könnte.
Eine mögliche zusätzliche Bebauung oder Grundstückserweiterung ist nicht verpflichtend und erfolgt vorbehaltlich der jeweiligen behördlichen Genehmigungen. Der bestehende Villencharakter, die Privatsphäre sowie die besondere Lage bleiben hiervon unberührt.
Alle Angaben erfolgen ohne Gewähr und basieren auf den vorliegenden Informationen.
Adresse
21271 Asendorf
Interessante Orte
Preis- und Lageinformationen
Preistrend für Bestandsimmobilien in Asendorf
>
>