Dieses gepflegte Einfamilienhaus vereint großzügiges Wohnen mit einem hohen Maß an Komfort auf einem ca. 700 m² großen Grundstück. Mit einer Wohnfläche von ca. 170 m² bietet die Immobilie viel Platz für Familien, Paare oder alle, die ein großzügiges Raumangebot zu schätzen wissen.
Das im Jahr 1996 errichtete Wohnhaus überzeugt durch seine durchdachte Raumaufteilung und eine moderne Ausstattung. Insgesamt stehen Ihnen 5 Zimmer zur Verfügung.
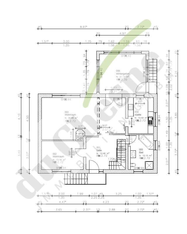
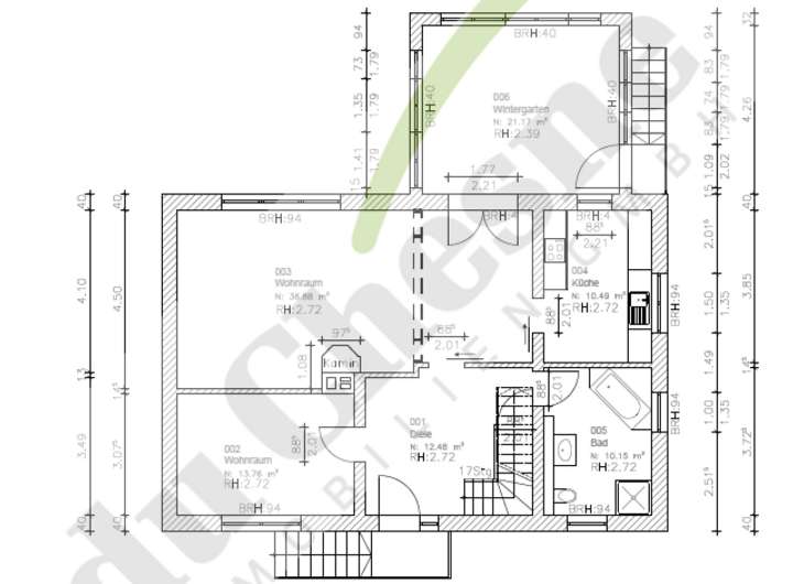
Im Erdgeschoss erwartet Sie ein großzügiges Wohnzimmer mit angrenzendem Essbereich, das viel Raum für gemeinsames Wohnen und gesellige Stunden bietet. Ergänzt wird diese Ebene durch ein weiteres Zimmer, das sich ideal als Büro, Gäste- oder Schlafzimmer nutzen lässt. Eine gut ausgestattete Küche sowie ein geräumiges Badezimmer mit Badewanne und Dusche runden das Erdgeschoss ab.
Das Obergeschoss verfügt über drei Schlafzimmer sowie ein weiteres vollwertiges Badezimmer mit Dusche – ideal für das Familienleben.
Das Haus ist voll unterkellert und bietet dadurch zusätzlichen Stauraum sowie vielseitige Nutzungsmöglichkeiten, etwa für Hobby, Hauswirtschaft oder Lagerflächen.
Für eine nachhaltige und effiziente Wärmeversorgung sorgt eine moderne Geothermie-Heizung aus dem Jahr 2022. Ein im Jahr 2017 errichteter Wintergarten erweitert den Wohnraum und bietet zu jeder Jahreszeit einen schönen Blick in den Garten.
Der großzügige Außenbereich lädt zum Entspannen, Spielen und Gärtnern ein. Mehrere Stellplätze auf dem Grundstück stehen ebenfalls zur Verfügung und bieten komfortable Parkmöglichkeiten.
Diese Immobilie bietet ideale Voraussetzungen für alle, die ein großzügiges Einfamilienhaus in ruhiger Umgebung suchen.
Modernes Anwesen für die ganze Familie am Feld
14974 Ludwigsfelde
Die vollständige Adresse der Immobilie erhalten Sie vom Anbieter.
Auf Karte anzeigen
Die vollständige Adresse der Immobilie erhalten Sie vom Anbieter.
Finanzierungszertifikat
In nur zwei Minuten zu Ihrem persönlichen Finanzierungszertifkat.
Infos
| Haustyp | Einfamilienhaus |
|---|---|
| Etagenzahl | 2 |
| Wohnfläche ca. | 170 m2 |
| Grundstücksfläche | 700 m2 |
| Zimmer | 5 |
| Schlafzimmer | 4 |
| Badezimmer | 2 |
| Garage/Stellplatz | Carport |
Kosten
| Kaufpreis |
599.000 € |
|---|---|
| Provision |
3,57 Bei Abschluss eines notariellen Kaufvertrages wird eine vom Käufer an du Chesne Immobilien GmbH zu entrichtende Provision in Höhe von 3,57% des tatsächlichen Kaufpreises inkl. Gesetzlicher MwSt. |
Finanzierungsrechner:
Kaufpreis:
600.000 €
Eigenkapital:
600.000 €
Monatliche Rate
0 €
Effektiver Jahreszins
0 %
Sollzinsbindung
10 Jahre
Bausubstanz & Energieausweis
| Baujahr | 1996 |
|---|---|
| Objektzustand | Gepflegt |
| Qualität der Austattung | Normal |
| Heizungsart | Zentralheizung |
| Wesentliche Energieträger | Erdwärme |
Beschreibung des Objekts
Lage
Das angebotene Objekt befindet sich im idyllischen Ortsteil Gröben der Stadt Ludwigsfelde, umgeben von einer ruhigen, dörflichen Atmosphäre, die ideal für naturnahes Wohnen ist. Die Lage bietet eine hervorragende Anbindung für Autofahrer: Über die nahegelegene Autobahn A10 erreichen Sie Berlin in etwa 30 Minuten. Auch die Bundesstraße B101 sorgt für eine schnelle Verbindung in die umliegenden Regionen.
Gröben ist gut an den öffentlichen Nahverkehr angebunden, sodass Sie bequem in die umliegenden Städte und nach Berlin gelangen können. Einkaufsmöglichkeiten sind direkt in Ludwigsfelde sowie in den angrenzenden Ortsteilen vorhanden. Für die ärztliche Versorgung ist ebenfalls gesorgt, mit zahlreichen Arztpraxen, Apotheken und einem Klinikum. In der unmittelbaren Umgebung lädt ein Gasthof zu regionalen Speisen und einem gemütlichen Aufenthalt ein.
Die Lage vereint somit die Vorteile eines ruhigen, naturnahen Wohnens mit einer ausgezeichneten Erreichbarkeit und guter Infrastruktur.
Sonstige Angaben
Besichtigungstermine
Bei Rückfragen oder dem Wunsch einer Besichtigung (gerne auch am Wochenende)
erreichen sie mich unter 0172 1505 400 oder per Mail: wdc@du-chesne.de.
Mit freundlichen Grüßen,
William du Chesne
Grundriss
Erdgeschoss
>
>
Obergeschoss
>
>
Keller
>
>
Schnitt
>
>
Adresse
14974 Ludwigsfelde
Interessante Orte
Preis- und Lageinformationen
Preistrend für Bestandsimmobilien in Ludwigsfelde