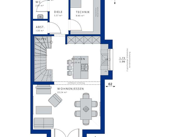
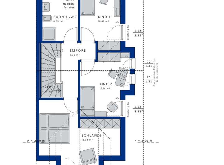
Das CELEBRATION 114 ist mehr als nur ein Haus - es ist Ihr zukünftiges Zuhause, das speziell nach Ihren Wünschen und Vorstellungen projektiert wird. Mit einer Wohnfläche von 125 m² und einer Grundstücksgröße von 450 m² bietet dieses flexible Doppelhaus genügend Raum für Ihre individuellen Bedürfnisse. Die durchdachte Architektur ermöglicht eine Anpassung an persönliche Lebensstile, sei es in zwei oder drei Geschossen. Im Erdgeschoss befindet sich der großzügige Wohnbereich, der das Herzstück Ihrer Familie bildet und gleichzeitig eine harmonische Verbindung zu den intelligent gestalteten Räumlichkeiten im Obergeschoss schafft. Hier finden sich drei gemütliche Schlafzimmer und zwei moderne Badezimmer, die nicht nur funktional, sondern auch einladend gestaltet sind. Diese durchdachte Raumaufteilung sorgt nicht nur für ein Gefühl von Weite, sondern auch für eine perfekte Privatsphäre, ideal für Familienleben und Rückzug.
Die Komfortdetails dieses Hauses sind bemerkenswert. Genießen Sie lichtdurchflutete Räume, die eine warme und einladende Atmosphäre schaffen. Der zeitgemäße Baustil wird durch Balkone und Terrassen ergänzt, die Ihnen die Möglichkeit bieten, die Natur in vollen Zügen zu genießen. Zusätzliche Abstellräume sorgen für Ordnung und Platz für Ihre persönlichen Dinge. Der Zugang zu einem Keller oder weiteren Stauraum ist ebenfalls möglich, was den Alltag erleichtert und Ihre Wohnqualität erhöht. Mit dem CELEBRATION 114 können Sie sich auf eine harmonische Verbindung von Innen- und Außenbereich freuen, die das Wohnen zum Erlebnis macht.
Die Ausbaustufe "Schlüsselfertig" bedeutet für Sie maximalen Komfort. Bien-Zenker übernimmt den kompletten Hausbau samt Innenausbau - vom ersten Stein bis zur letzten Fliese. Alle Anforderungen des staatlichen Qualitätssiegels für Nachhaltigkeit werden dabei erfüllt, sodass Sie nicht nur von einem durchweg hohen Standard profitieren, sondern auch attraktive Förderungen über die KfW in Anspruch nehmen können. Dies sorgt für einen reibungslosen Bauablauf, bei dem Sie sich um nichts kümmern müssen, bis Sie den Schlüssel zu Ihrem neuen Zuhause in der Hand halten. Freuen Sie sich auf ein stressfreies Erlebnis, bei dem Ihre Vorstellungen im Mittelpunkt stehen.
Grundrisse und Abbildungen können Extras zeigen. Flächenangaben nach DIN 277.
Doppelhauspartner gesucht - Wohlfühloase für die Familie im Hamburger Süden nahe der Elbe
21217 Seevetal
Die vollständige Adresse der Immobilie erhalten Sie vom Anbieter.
Auf Karte anzeigen
Die vollständige Adresse der Immobilie erhalten Sie vom Anbieter.
Finanzierungszertifikat
In nur zwei Minuten zu Ihrem persönlichen Finanzierungszertifkat.
Infos
| Haustyp | Doppelhaushaelfte |
|---|---|
| Wohnfläche ca. | 125 m2 |
| Grundstücksfläche | 450 m2 |
| Zimmer | 4 |
| Schlafzimmer | 3 |
| Badezimmer | 2 |
Kosten
| Kaufpreis |
548.470 € |
|---|
Finanzierungsrechner:
Kaufpreis:
600.000 €
Eigenkapital:
600.000 €
Monatliche Rate
0 €
Effektiver Jahreszins
0 %
Sollzinsbindung
10 Jahre
Bausubstanz & Energieausweis
| Baujahr | unbekannt |
|---|---|
| Bauphase | Haus in Planung (projektiert) |
| Qualität der Austattung | Gehoben |
Beschreibung des Objekts
Ausstattung
Der Grundriss des CELEBRATION 114 ist durchdacht und bietet Ihnen vier Zimmer, die sich perfekt für eine Familie oder Paare eignen. Mit drei Schlafzimmern und zwei Badezimmern ist jeder Raum optimal aufgeteilt. Der offene Wohnbereich im Erdgeschoss ist der perfekte Ort, um gemeinsam Zeit zu verbringen, während die oberen Etagen Rückzugsorte bieten, die Privatsphäre und Ruhe garantieren. Hier können Sie ungestört leben, während die gut durchdachte Anordnung der Räume eine harmonische und einladende Atmosphäre schafft.
Die Komfortdetails dieses Hauses sind ein Traum für jeden, der Wert auf Lebensqualität legt. Genießen Sie lichtdurchflutete Räume, die eine freundliche und warme Atmosphäre schaffen. Der großzügige Balkon und die Terrasse laden zu entspannten Stunden im Freien ein, während die Abstellräume für zusätzlichen Stauraum sorgen. Diese Elemente tragen nicht nur zur Funktionalität Ihres Zuhauses bei, sondern steigern auch die Lebensqualität und den Wohnkomfort, indem sie Ihnen mehr Raum für Ihre persönlichen Dinge und Freizeitaktivitäten bieten.
Mit der Ausbaustufe "Schlüsselfertig" entscheiden Sie sich für eine stressfreie Bauweise. Bien-Zenker übernimmt alles für Sie, vom Rohbau bis zur letzten Fliese. Das bedeutet, dass Sie sich keine Gedanken um den Innenausbau machen müssen - alles ist im Preis enthalten. Dies ermöglicht Ihnen einen reibungslosen Übergang in Ihr neues Zuhause, wo Sie schnell und unkompliziert einziehen können. Die Einhaltung aller Nachhaltigkeitsstandards sorgt zudem dafür, dass Ihr neues Zuhause nicht nur schön, sondern auch zukunftssicher ist.
Lage
Seevetal bietet Ihnen eine hervorragende Lebensqualität in einer ruhigen und familienfreundlichen Umgebung. Die Lage besticht durch ihre Nähe zu diversen Bildungsinstitutionen, angefangen von Kindergärten bis hin zu Schulen, die sowohl fußläufig als auch mit dem Fahrrad schnell erreicht werden können. Für Ihre Gesundheitsversorgung stehen Ihnen mehrere Ärzte und Apotheken in der Nähe zur Verfügung. Einkaufsmöglichkeiten sind im Umkreis ebenfalls reichlich vorhanden - von kleinen Boutiquen bis zu großen Supermärkten finden Sie alles, was Sie zum täglichen Leben benötigen.
Die Verkehrsanbindung ist dank des nahegelegenen öffentlichen Nahverkehrs und Autobahnanschlüssen optimal. Ob Sie zur Arbeit pendeln oder Ausflüge in die umliegenden Städte unternehmen möchten, alles ist bequem erreichbar. Der ÖPNV bringt Sie in kurzer Zeit in die Metropolregion Hamburg, während Sie mit dem Auto ebenfalls rasch die Autobahn A1 erreichen können. Die idyllische Umgebung von Seevetal bietet Ihnen zudem viele Freizeitmöglichkeiten, darunter Parks, Sporteinrichtungen und Wanderwege, die zur Erholung und zum aktiven Lebensstil einladen. Hier sind Sie nicht nur Zuhause, sondern leben in einer lebendigen Gemeinschaft, die alle Annehmlichkeiten des Lebens bietet.
Sonstige Angaben
Der hier angegebene Wert zur zu zahlenden Grunderwerbsteuer ist ein vom Portalbetreiber automatisierter Wert, der nicht der Realität entspricht, da die Grunderwerbsteuer nur auf den im Gesamtangebot einberechneten Grundstückswert berechnet wird.
Inkl. PV - Anlage und Speicher für die eigene Stromversorgung
Auf Wunsch können alle Kriterien für eine KFN - QNG Förderung erfüllt werden.
Hausabbildungen mit Sonderwünschen
Grundrisse können individuell geändert und angepasst werden.
Auf Wunsch ist ein Keller möglich.
Adresse
21217 Seevetal
Interessante Orte
Preis- und Lageinformationen
Preistrend für Bestandsimmobilien in Seevetal
>
>