Das Haus ist auf einem realen Baugrundstück geplant oder auf einem Grundstück in einer Planungsphase. Die Bilder zeigen ggf. Extras, die im Rahmen des Bebauungsplans noch geprüft werden müssen.
Bitte beachten Sie, dass wir im Interesse der jeweiligen Grundstückseigentümer sowie unserer Bauherren ohne ein persönliches Gespräch zum Thema Hausbau keine Grundstücksdaten zur Verfügung stellen.
Doch nicht ganz Ihre Wunschlage? Gern sind wir bei der Wahl Ihres Traumgrundstückes behilflich! Sie haben bereits ein eigenes Baugrundstück? Glückwunsch! Natürlich können wir Ihr Haus auch auf Ihrem Grundstück planen und bauen.
Neues Jahr. Neuer Platz für Ihr Leben.
09577 Niederwiesa
Die vollständige Adresse der Immobilie erhalten Sie vom Anbieter.
Auf Karte anzeigen
Die vollständige Adresse der Immobilie erhalten Sie vom Anbieter.
Finanzierungszertifikat
In nur zwei Minuten zu Ihrem persönlichen Finanzierungszertifkat.
Infos
| Haustyp | Einfamilienhaus |
|---|---|
| Etagenzahl | 2 |
| Wohnfläche ca. | 125 m2 |
| Grundstücksfläche | 710 m2 |
| Zimmer | 4 |
| Schlafzimmer | 3 |
| Badezimmer | 1 |
Kosten
| Kaufpreis |
455.600 € |
|---|---|
| Provision | Nein |
Finanzierungsrechner:
Kaufpreis:
600.000 €
Eigenkapital:
600.000 €
Monatliche Rate
0 €
Effektiver Jahreszins
0 %
Sollzinsbindung
10 Jahre
Bausubstanz & Energieausweis
| Baujahr | 2026 |
|---|---|
| Bauphase | Haus in Planung (projektiert) |
| Qualität der Austattung | Gehoben |
Beschreibung des Objekts
Ausstattung
BAUEN SIE ENTSPANNT MIT UNSERER FESTPREISGARANTIE!
So einzigartig wie unsere Baufamilien sind auch unsere Häuser. Mit Bien-Zenker entwerfen Sie Ihr individuelles Haus genau nach Ihren Vorstellungen und Wünschen.
Bei BIEN-ZENKER bereits INKLUSIVE:
* Bodenplatte
* Baugrundgutachten
* innovative Effizienzhaus-40-Wand
* Wärmepumpe mit Kühlfunktion
* PV-Anlage und Batteriespeicher
* HighEnd-Thermo-Energiesparfenster mit 3-fach-Isolierverglasung
* Hochwertige Einbauküche mit Kochinsel und BOSCH Einbaugeräten
* Premium-Versicherungspaket rund um das Thema Hausbau
* Energieberater und KfW-Begleitung
Malerarbeiten, Bodenbeläge und Innentüren sowie sanitäre Objekte erfolgen in Eigenregie. Gern bieten wir Ihnen auf Wunsch auch eine schlüsselfertige Ausführung an.
Lage
Niederwiesa bietet Ihnen eine hervorragende Lebensqualität in einer ruhigen und dennoch zentralen Lage. Die Umgebung ist geprägt von zahlreichen Bildungseinrichtungen, die eine ausgezeichnete Versorgung für Familien mit Kindern garantieren. Kindergärten und Schulen sind in unmittelbarer Nähe, sodass kurze Wege für den Schulweg sorgen.
Einkaufsmöglichkeiten für den täglichen Bedarf sind ebenfalls gut erreichbar, sodass Sie alle Besorgungen bequem und schnell erledigen können. Für Ihre Freizeitgestaltung stehen Ihnen zahlreiche Optionen zur Verfügung, darunter Sporteinrichtungen, Wanderwege und Freizeitparks. Die gute Anbindung an den öffentlichen Nahverkehr und die nahegelegene Autobahn ermöglichen Ihnen zudem eine schnelle Erreichbarkeit der umliegenden Städte und Regionen, was die Lage besonders attraktiv macht.
Genießen Sie die Vorzüge einer ruhigen Wohngegend, ohne auf die Annehmlichkeiten einer Stadt verzichten zu müssen. Niederwiesa ist der perfekte Ort, um sich niederzulassen und ein harmonisches Familienleben zu führen.
Sonstige Angaben
Das Grundstück ist im obigen Preis eingerechnet, es wird ohne zusätzliche Provision für Bien-Zenker Bauherren verkauft.
Die Baunebenkosten müssen noch hinzugerechnet werden, hierüber beraten wir Sie gern.
Wir bieten Ihnen umfassende Finanzierungsmöglichkeiten inklusive Beantragung aller Fördermittel!
Die Hausabbildungen zeigen teilweise Sonderausstattungen, die nicht im Preis enthalten sind.
Sie möchten dieses Haus besichtigen: Rufen Sie uns an und zufriedene Kunden zeigen ihnen gern ihr Haus!
Gute Beratung ist der Anfang von Allem.
Deshalb analysieren wir gemeinsam mit Ihnen Ihre Vorstellungen, Wünsche und Bedürfnisse und finden so das für Sie und Ihre Familie passende BIEN ZENKER Haus.
Interessiert? Rufen Sie gleich an und vereinbaren Sie noch heute einen kostenlosen und unverbindlichen Beratungstermin- 0173-5927790 Tino Böhme
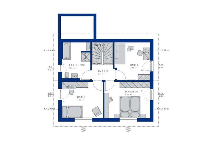
Grundriss
Grundriss Erdgeschoss
>
>
Grundriss Dachgeschoss
>
>
Adresse
09577 Niederwiesa
Interessante Orte
Preis- und Lageinformationen
Preistrend für Bestandsimmobilien in Niederwiesa