Sanierungsobjekt
Die Immobilie befindet sich in einem sanierungsbedürftigen Zustand. Es besteht Sanierungsaufwand, der bei der Kaufentscheidung zu berücksichtigen ist.
Zum Verkauf steht ein charmantes Einfamilienhaus in massiver Bauweise aus ca. 1920. Die Immobilie erstreckt sich über zwei Geschosse und bietet mit rund 137 m² Wohnfläche ausreichend Platz für Paare oder Familien. Ergänzt wird das Raumangebot durch weitere Nebengebäude, die vielseitige Nutzungs- oder Abstellmöglichkeiten bieten.
Zum einen das Nebenhaus, wo aktuell eine große Werkstatt untergebracht ist und die Garage, die sich links neben dem Haupthaus anschließt.
Das Haus verfügt über insgesamt vier gut geschnittene Zimmer sowie ein Badezimmer im Erdgeschoss. Eine Terrasse lädt zum Entspannen im Freien ein und bietet einen angenehmen Übergang zum ca. 300 m² großen Grundstück.
Die Immobilie ist mit Kunststofffenstern mit Doppelverglasung ausgestattet, Rollläden sind ebenfalls vorhanden. Beheizt wird das Haus über eine moderne Gas-Brennwerttherme aus dem Jahr 2013 (befindlich in der Küche), die für eine effiziente Wärmeversorgung sorgt.
Ein weiterer Pluspunkt ist die zum Haus gehörende Garage, die einen sicheren PKW-Stellplatz bietet.
Dieses Einfamilienhaus vereint den Charme eines Altbaus mit praktischer Ausstattung und dem Potenzial eines gemütlichen Zuhauses.
Bei diesem Einfamilienhaus handelt es sich um ein renovierungsbedürftiges Haus, das sich insbesondere für Käufer eignet, die handwerkliches Geschick mitbringen und die Immobilie nach eigenen Vorstellungen modernisieren und umgestalten möchten. Trotzdem vereint das Objekt den Charme eines Altbaus mit praktischer Ausstattung und dem Potenzial eines gemütlichen Zuhauses.
Haftungsausschluss
Alle Angaben basieren auf Informationen, die uns von den Eigentümern zur Verfügung gestellt wurden. Für die Richtigkeit, Vollständigkeit und Aktualität dieser Angaben übernehmen wir keine Gewähr. Änderungen, Irrtümer und der Zwischenverkauf bleiben vorbehalten.
Handwerkerobjekt I Ruhig gelegenes Einfamilienhaus mit Nebengebäuden und viel Potenzial
14959 Trebbin
Die vollständige Adresse der Immobilie erhalten Sie vom Anbieter.
Auf Karte anzeigen
Die vollständige Adresse der Immobilie erhalten Sie vom Anbieter.
Finanzierungszertifikat
In nur zwei Minuten zu Ihrem persönlichen Finanzierungszertifkat.
Infos
| Haustyp | Einfamilienhaus |
|---|---|
| Etagenzahl | 2 |
| Wohnfläche ca. | 137 m2 |
| Nutzfläche | 54,74 m2 |
| Grundstücksfläche | 300 m2 |
| Bezugsfrei ab | sofort |
| Zimmer | 4 |
| Schlafzimmer | 2 |
| Badezimmer | 1 |
| Garage/Stellplatz | Garage |
| Anzahl Garage/Stellplatz | 1 |
Kosten
| Kaufpreis |
179.000 € |
|---|---|
| Provision |
3,57 % Bei Abschluss eines notariellen Kaufvertrages wird eine vom Käufer an du Chesne Immobilien GmbH zu entrichtende Provision in Höhe von 3,57% des tatsächlichen Kaufpreises inkl. Gesetzlicher MwSt. |
Finanzierungsrechner:
Kaufpreis:
600.000 €
Eigenkapital:
600.000 €
Monatliche Rate
0 €
Effektiver Jahreszins
0 %
Sollzinsbindung
10 Jahre
Bausubstanz & Energieausweis
| Baujahr | 1920 |
|---|---|
| Objektzustand | Renovierungsbedürftig |
| Qualität der Austattung | Einfach |
| Heizungsart | Zentralheizung |
| Wesentliche Energieträger | Gas |
Beschreibung des Objekts
Lage
Die Immobilie befindet sich in Kliestow, einem Ortsteil der Stadt Trebbin (Landkreis Teltow-Fläming). Die Lage ist ländlich geprägt und bietet eine ruhige Wohnumgebung.
Die Anbindung mit dem PKW ist gut: Über die Bundesstraße B101 sowie den nahegelegenen Berliner Ring (A10) sind sowohl das Berliner Stadtgebiet als auch Potsdam und das südliche Brandenburg zügig erreichbar.
Der öffentliche Personennahverkehr ist ebenfalls gegeben. Der Bahnhof Trebbin ist in kurzer Fahrzeit erreichbar und bietet regelmäßige Regionalbahnverbindungen, unter anderem in Richtung Berlin. Ergänzend bestehen Busverbindungen in die umliegenden Orte.
Insgesamt bietet der Standort eine verkehrsgünstige Lage für Pendler, die ruhiges Wohnen mit einer guten Erreichbarkeit der umliegenden Zentren verbinden möchten.
Sonstige Angaben
Bei Rückfragen oder dem Wunsch einer Besichtigung, gerne auch am Wochenende, erreichen Sie mich unter 0172 3272272 oder per Mail: rn@du-chesne.de.
Mit freundlichen Grüßen
Robert Nowak
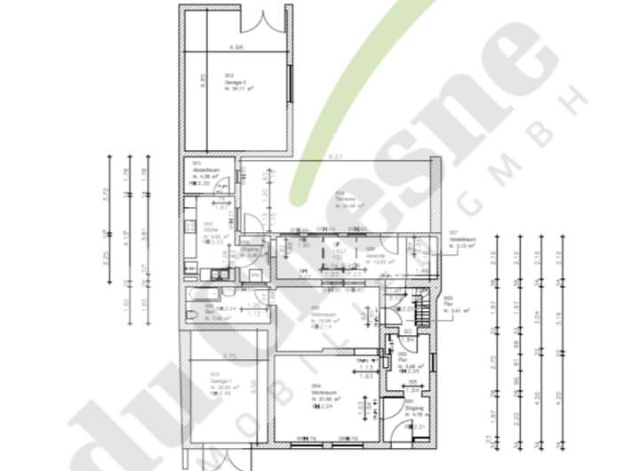
Grundriss
Erdgeschoss
>
>
Dachgeschoss
>
>
Schnitt
>
>
Adresse
14959 Trebbin
Interessante Orte
Preis- und Lageinformationen
Preistrend für Bestandsimmobilien in Trebbin