Willkommen in Ihrem individuellen Einfamilienhaus in Nochern! Dieses großzügige, projektiert Haus mit 5 Zimmern und einer beeindruckenden Wohnfläche von 222,30 m² wird ganz nach Ihren Vorstellungen und Wünschen realisiert. Hier können Sie Ihrer Kreativität freien Lauf lassen und ein Zuhause schaffen, das perfekt zu Ihnen passt. Mit 4 Schlafzimmern, einem Badezimmer und einem zusätzlichen Gäste-WC bietet dieses Haus genügend Platz für die gesamte Familie. Das durchdachte Baukonzept erstreckt sich über zwei Etagen und sorgt für eine harmonische Aufteilung der Räumlichkeiten.
Gestalten Sie Ihr Traum-Einfamilienhaus nach Ihren Wünschen!
56357 Reitzenhain
Die vollständige Adresse der Immobilie erhalten Sie vom Anbieter.
Auf Karte anzeigen
Die vollständige Adresse der Immobilie erhalten Sie vom Anbieter.
Finanzierungszertifikat
In nur zwei Minuten zu Ihrem persönlichen Finanzierungszertifkat.
Infos
| Haustyp | Einfamilienhaus |
|---|---|
| Etagenzahl | 2 |
| Wohnfläche ca. | 222 m2 |
| Grundstücksfläche | 567 m2 |
| Zimmer | 5 |
| Schlafzimmer | 4 |
| Badezimmer | 1 |
Kosten
| Kaufpreis |
536.214 € |
|---|
Finanzierungsrechner:
Kaufpreis:
600.000 €
Eigenkapital:
600.000 €
Monatliche Rate
0 €
Effektiver Jahreszins
0 %
Sollzinsbindung
10 Jahre
Bausubstanz & Energieausweis
| Baujahr | 2026 |
|---|---|
| Bauphase | Haus in Planung (projektiert) |
Beschreibung des Objekts
Ausstattung
Das Einfamilienhaus überzeugt durch seine energieeffiziente Bauweise mit den Energietypen KFW40 und KFW55. Zu den Highlights gehören die hochwertige Energieeffizienzwand, eine elegante Echtholztreppe, eine moderne Luft-Wasser-Wärmepumpe sowie eine effiziente Fußbodenheizung. Eine Be- und Entlüftungsanlage sorgt für ein angenehmes Raumklima, während die 3-fach verglasten Fenster mit Aluminiumlamellen-Rollläden optimalen Schutz bieten. Die lichte Raumhöhe von 2,75 m und die erhöhten Fenster und Türen schaffen ein großzügiges und helles Wohngefühl. Alle verwendeten Materialien tragen das TOXPROOF Gütesiegel und garantieren schadstoffgeprüfte Qualität.
Lage
Das Einfamilienhaus befindet sich in einem attraktiven Wohngebiet in Nochern. Hier profitieren Sie von einer ausgezeichneten Infrastruktur mit Schulen, Einkaufsmöglichkeiten und Freizeitangeboten in unmittelbarer Nähe. Genießen Sie die ruhige Lage und die Möglichkeit, die Natur in Ihrer Umgebung zu erkunden, während Sie gleichzeitig in der Nähe von städtischen Annehmlichkeiten bleiben.
Sonstige Angaben
allkauf steht für maximale Sicherheit, kurze Lieferzeiten und garantierte Fertigstellung. Bei uns erhalten Sie die Festpreisgarantie, die Ihnen finanzielle Sicherheit bietet. Zu allen Häusern gehört:
- Energieeffizienzwand
- Echtholztreppe
- Luft-Wasser-Wärmepumpe
- Fußbodenheizung
- Be- und Entlüftungsanlage
- 3-fach verglaste Fenster inklusive Rollläden mit Aluminiumlamellen
- Lichte Raumhöhe 2,75 m
- inkl. erhöhten Fenstern und Türen
- TOXPROOF Gütesiegel - schadstoffgeprüfter Materialien
- Just-in-Time-Lieferungen
- Bemustern im eigenen Bemusterungszentrum mit Markenprodukten
Vereinbaren Sie noch heute Ihren Termin zur Planung Ihres allkauf Traumhauses!
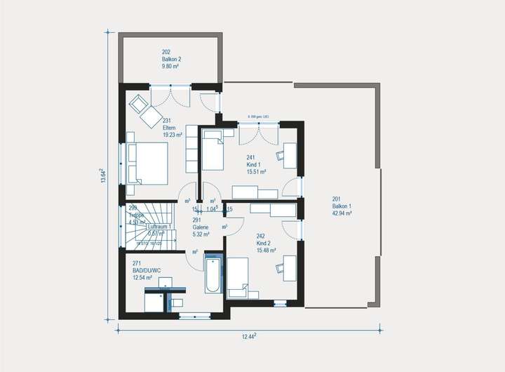
Grundriss
Grundriss
>
>
Grundriss
>
>
Adresse
56357 Reitzenhain
Interessante Orte
Preis- und Lageinformationen
Preistrend für Bestandsimmobilien in Reitzenhain