Dieses wunderschöne Einfamilienhaus in Magdeburg (Kümmelsberg West) erfüllt all deine Wünsche und Vorstellungen. Mit einer großzügigen Wohnfläche von 143 m² und fünf lichtdurchfluteten Zimmern, verteilt auf zwei Etagen, bietet es dir und deiner Familie den perfekten Rückzugsort. Der klassische Satteldachstil mit einer Neigung von 38 Grad verleiht dem Haus einen zeitlosen Charme, während der Erker für zusätzlichen Wohnraum sorgt und die bodentiefen Fenster einladendes Licht in deine Wohnräume bringen.
Mit LivingHaus hast du die Möglichkeit, dein zukünftiges Zuhause nach deinen individuellen Vorstellungen zu gestalten. Von der Traumküche, die exakt auf deinen Grundriss angepasst wird und mit modernster Technik sowie cleveren Stauraumlösungen ausgestattet ist, bis zum Zuhausepaket mit Material in Fachhandelsqualität und einer 18-monatigen Festpreisgarantie, Livinghaus hat die Lösungen.
Zusätzlich profitierst du von I-KON, einer intelligenten Bauweise, die dein Zuhause energieeffizient und umweltfreundlich gestaltet. Mit dem Zuhause-Darlehen erhältst du die Finanzierung, die du brauchst, während das Zuhause-Paket dir eine hochwertige Grundausstattung für dein Haus sichert. Und wenn du selbst Hand anlegen möchtest, steht dir das DIY-Ausbau-Coaching zur Verfügung, bei dem Experten dir zeigen, wie du den Innenausbau deines Hauses selbst meistern kannst.
Mit LivingHaus verwirklichst du nicht nur deine Träume vom Eigenheim, sondern erhältst auch ein durchdachtes Gesamtkonzept, das dir Sicherheit und Unterstützung von der Planung bis zur Ausführung bietet.
Dein individuelles Traumhaus in Magdeburg - Mit LivingHaus zur perfekten Eigenheimlösung
39110 Magdeburg
Die vollständige Adresse der Immobilie erhalten Sie vom Anbieter.
Auf Karte anzeigen
Die vollständige Adresse der Immobilie erhalten Sie vom Anbieter.
Finanzierungszertifikat
In nur zwei Minuten zu Ihrem persönlichen Finanzierungszertifkat.
Infos
| Haustyp | Einfamilienhaus |
|---|---|
| Etagenzahl | 2 |
| Wohnfläche ca. | 143 m2 |
| Nutzfläche | 143 m2 |
| Grundstücksfläche | 600 m2 |
| Bezugsfrei ab | 2026 |
| Zimmer | 5 |
| Schlafzimmer | 1 |
| Badezimmer | 1 |
Kosten
| Kaufpreis |
523.600 € |
|---|---|
| Provision | Nein |
Finanzierungsrechner:
Kaufpreis:
600.000 €
Eigenkapital:
600.000 €
Monatliche Rate
0 €
Effektiver Jahreszins
0 %
Sollzinsbindung
10 Jahre
Bausubstanz & Energieausweis
| Baujahr | unbekannt |
|---|---|
| Bauphase | Haus in Planung (projektiert) |
| Qualität der Austattung | Normal |
| Heizungsart | Wärmepumpe |
| Energieausweis | liegt vor |
| Energieausweistyp | Bedarfsausweis |
| Energieverbrauchskennwert | 18,0 kWh/(m²*a) |
| Energieeffizienzklasse | A+ |
18,0
kWh/(m²*a)
Energieeffizienzklasse A+
- A+
- A
- B
- C
- D
- E
- F
- G
- H
- 0
- 25
- 50
- 75
- 100
- 125
- 150
- 175
- 200
- 225
- >250
Beschreibung des Objekts
Ausstattung
Die Ausstattung deines neuen Hauses ist erstklassig und umfasst alles, was du für ein komfortables Leben benötigst. Die hochwertige Traumküche von Living Haus ist perfekt auf deinen Grundriss abgestimmt und bietet modernste Technik sowie durchdachte Stauraumlösungen. Das Zuhause-Paket beinhaltet edle Türen, moderne Böden und stilvolle Sanitäranlagen, die allesamt optimal aufeinander abgestimmt sind.
Die I-KON-Lösung sorgt für höchste Energieeffizienz und die Möglichkeit, mit einer integrierten PV-Anlage einen Großteil deines Strombedarfs selbst zu decken. Im Rahmen des DIY-Ausbau-Coachings erhältst du praxisnahe Tipps und Unterstützung von Experten, um den Innenausbau selbst in die Hand zu nehmen.
Darüber hinaus profitierst du von umfangreichen Sicherheitsgarantien, einer 30-jährigen Garantie auf die Grundkonstruktion und einer fünfjährigen Gewährleistung auf alle weiteren Bauleistungen. Dein Haus wird mit einem hohen Vorfertigungsgrad gebaut, was den Bauprozess effizient und stressfrei gestaltet.
Lage
Magdeburg bietet dir eine hervorragende Lebensqualität und eine Vielzahl von Freizeitmöglichkeiten. In der Umgebung findest du zahlreiche Schulen und Kindergärten, die eine gute Bildung für deine Kinder gewährleisten. Das Baugebiet Kümmelsberg West bietet beste Möglichkeiten für Famillien.
Einkaufsmöglichkeiten sind in der Nähe ebenfalls reichlich vorhanden. Der Supermarkt "REWE" sowie zahlreiche Discounter und Fachgeschäfte bieten alles, was du für den täglichen Bedarf benötigst. Für medizinische Versorgung sorgen mehrere Arztpraxen und Apotheken, die in kurzer Zeit erreichbar sind.
Freizeitangebote wie der Elbauenpark oder das Magdeburger Domviertel laden zu entspannenden Spaziergängen und sportlichen Aktivitäten ein. Die Anbindung an den öffentlichen Nahverkehr ist optimal, und auch die Autobahn ist nur einen Katzensprung entfernt, was Pendlern eine einfache Anreise in die umliegenden Städte ermöglicht.
Insgesamt ist Magdeburg eine familienfreundliche Stadt, die Naturliebhabern und Aktiven viel zu bieten hat - der perfekte Ort für dein zukünftiges Zuhause!
Sonstige Angaben
zzgl. Baunebenkosten und Anbauteile und Sonderausstattungen
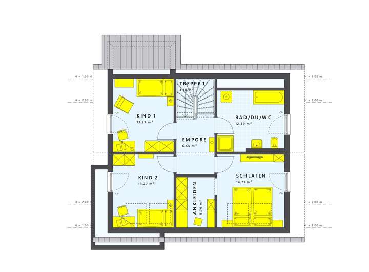
Grundriss
SUN 143 V3 KAT DG
>
>
SUN 143 V3 KAT EG
>
>
Adresse
39110 Magdeburg
Interessante Orte
Preis- und Lageinformationen
Preistrend für Bestandsimmobilien in Diesdorf