Kompromisse waren gestern! Mit diesem Einfamilienhaus in Dessau-Roßlau werden deine Eigenheimträume wahr. Das großzügige Haus mit einer Wohnfläche von 144 m² und einem ansprechenden klassischen Satteldach mit 38 Grad Neigung bietet dir und deiner Familie den Raum, den ihr braucht. Mit fünf Zimmern, darunter ein Schlafzimmer und ein modernes Badezimmer, ist dieses Haus perfekt auf deine Bedürfnisse zugeschnitten. Der besondere Erker sorgt nicht nur für mehr Platz, sondern auch für ein helles und einladendes Ambiente. Bodentiefe Fenster lassen viel Tageslicht hinein und bringen die Natur direkt in dein Zuhause. Der Außenbereich mit einer großzügigen Terrasse lädt zum Entspannen ein und bietet Platz für gesellige Abende mit Familie und Freunden. Bei LivingHaus profitierst du von einer Vielzahl zusätzlicher Leistungen, die dein neues Zuhause zu einem echten Traum machen. Die Traumküche von LivingHaus wird individuell auf deinen Grundriss angepasst und mit modernster Technik sowie durchdachten Stauraumlösungen ausgestattet, sodass du sofort nach dem Einzug loslegen kannst. Mit der Living Haus Bau-App behältst du jederzeit den Überblick über dein Bauprojekt, von Zeitplänen bis zur Dokumentenverwaltung - alles digital und leicht zugänglich. Das innovative I-KON-System sorgt dafür, dass dein Haus nicht nur energieeffizient ist, sondern auch umweltfreundlich und perfekt auf deine Bedürfnisse abgestimmt wird. Das Zuhause-Darlehen ermöglicht dir eine attraktive Finanzierung deines Traumhauses mit exklusiven Vorteilen. Zudem erhältst du mit dem Zuhause-Paket eine hochwertige Grundausstattung, die alles beinhaltet, was du für ein gemütliches Zuhause benötigst. Wenn du gerne selbst Hand anlegst, bietet dir das DIY-Ausbau-Coaching wertvolle Unterstützung, um den Innenausbau eigenständig zu meistern. Bei LivingHaus wird dein Traum vom Eigenheim Wirklichkeit, individuell, nachhaltig und einzigartig!
TRAUMHAUS - Ein Zuhause, so einzigartig wie du es bist
06849 Dessau-Roßlau
Die vollständige Adresse der Immobilie erhalten Sie vom Anbieter.
Auf Karte anzeigen
Die vollständige Adresse der Immobilie erhalten Sie vom Anbieter.
Finanzierungszertifikat
In nur zwei Minuten zu Ihrem persönlichen Finanzierungszertifkat.
Infos
| Haustyp | Einfamilienhaus |
|---|---|
| Etagenzahl | 2 |
| Wohnfläche ca. | 143 m2 |
| Nutzfläche | 143 m2 |
| Grundstücksfläche | 650 m2 |
| Bezugsfrei ab | 2026 |
| Zimmer | 5 |
| Schlafzimmer | 1 |
| Badezimmer | 1 |
Kosten
| Kaufpreis |
407.500 € |
|---|---|
| Provision | Nein |
Finanzierungsrechner:
Kaufpreis:
600.000 €
Eigenkapital:
600.000 €
Monatliche Rate
0 €
Effektiver Jahreszins
0 %
Sollzinsbindung
10 Jahre
Bausubstanz & Energieausweis
| Baujahr | unbekannt |
|---|---|
| Bauphase | Haus in Planung (projektiert) |
| Qualität der Austattung | Normal |
| Heizungsart | Wärmepumpe |
| Energieausweis | liegt vor |
| Energieausweistyp | Bedarfsausweis |
| Energieverbrauchskennwert | 18,0 kWh/(m²*a) |
| Energieeffizienzklasse | A+ |
18,0
kWh/(m²*a)
Energieeffizienzklasse A+
- A+
- A
- B
- C
- D
- E
- F
- G
- H
- 0
- 25
- 50
- 75
- 100
- 125
- 150
- 175
- 200
- 225
- >250
Beschreibung des Objekts
Ausstattung
Deine Ausstattung lässt keine Wünsche offen: Hochwertige Böden, edle Türen und stilvolle Sanitäranlagen sorgen für ein harmonisches Gesamtbild. Die individuellen Küchenlösungen sind perfekt auf deinen Raum abgestimmt und bieten modernste Technik. Bei der Planung legen wir großen Wert auf höchste ökologische Standards, unterstützt durch die DGNB-Serienzertifizierung in Gold. Du kannst dich auf eine 18-monatige Festpreisgarantie freuen, damit du während dieser Zeit keine bösen Überraschungen erlebst. Zudem sind essenzielle Bauversicherungen bereits enthalten, damit du während des gesamten Bauprozesses bestens abgesichert bist. Die hohe Vorfertigungsqualität sorgt für einen schnellen Bauablauf, während die DIY-Coaching-Kurse dir helfen, deinen Innenausbau selbst zu gestalten. Dein Zuhause wird so nicht nur zu einem Ort des Wohnens, sondern zu einem Ort, an dem du deine Träume verwirklichen kannst.
Lage
Dessau-Roßlau ist ein idealer Standort für Familien, Naturliebhaber und Pendler. In der Umgebung findest du zahlreiche Bildungseinrichtungen, darunter mehrere Kindergärten und Schulen, die für ihre hervorragende Betreuung und Ausbildung bekannt sind. Die Grundschule "Hermann-Löns" hat besonders gute Bewertungen erhalten und bietet ein breites Spektrum an Aktivitäten. Supermärkte wie REWE und EDEKA sind gut erreichbar und decken deinen täglichen Bedarf ab. Für medizinische Versorgung sorgen nahegelegene Ärzte und das Krankenhaus "St. Elisabeth" mit einem umfassenden Angebot an Fachärzten. Auch Freizeitmöglichkeiten kommen nicht zu kurz: Der Dessau-Wörlitzer Gartenreich bietet atemberaubende Landschaften und zahlreiche Rad- und Wanderwege, die zur Erholung einladen. Das nahegelegene Bauhaus Dessau ist nicht nur ein kulturelles Highlight, sondern auch ein Ort für Veranstaltungen und Ausstellungen. Die Anbindung an den öffentlichen Nahverkehr und die Autobahn ist hervorragend, sodass du sowohl die Städte Leipzig und Halle als auch die umliegenden ländlichen Gebiete schnell erreichst. In Dessau-Roßlau findest du alles, was du für ein erfülltes Leben benötigst!
Sonstige Angaben
Baunebenkosten und Anbauteile sind nicht im Preis enthalten. Grundstück ist Bestandteil des Preises
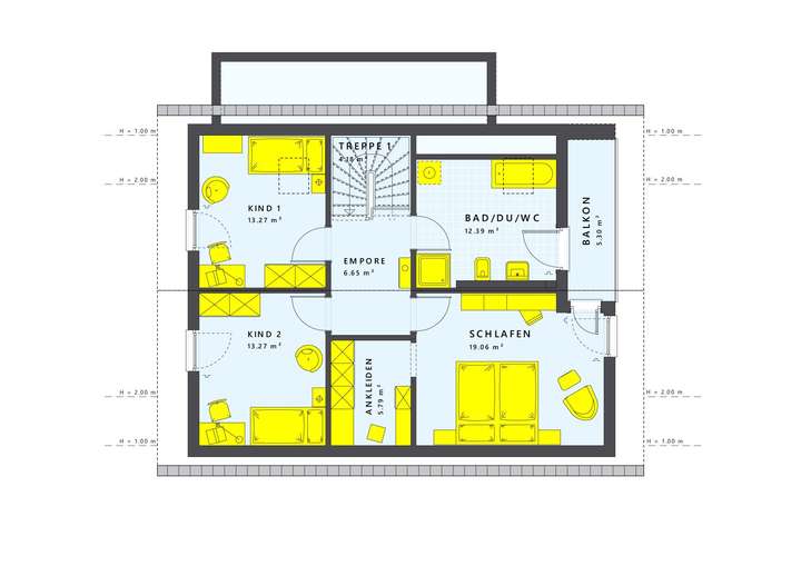
Grundriss
Familienfreundlicher Grundriss
>
>
Livinghaus: Clever Wohnen
>
>
Familienglück zuhause
>
>
Zuhause mit Charme
>
>
Adresse
06849 Dessau-Roßlau
Interessante Orte
Preis- und Lageinformationen
Preistrend für Bestandsimmobilien in Alten